Projekt Stodoła Optimum z garażem

Rodzina Optimum [110 -220 m2]

5600  (z VAT)

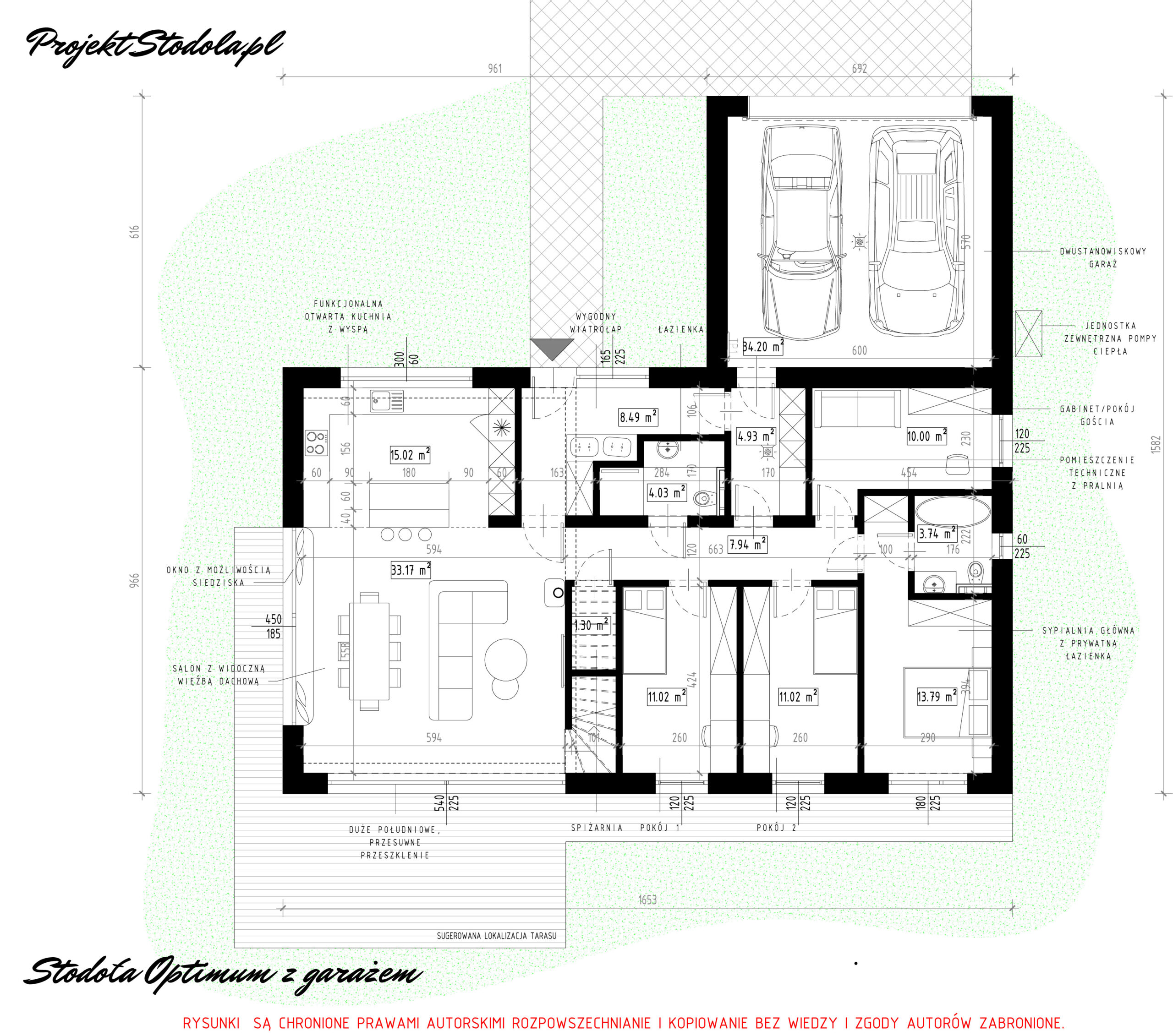
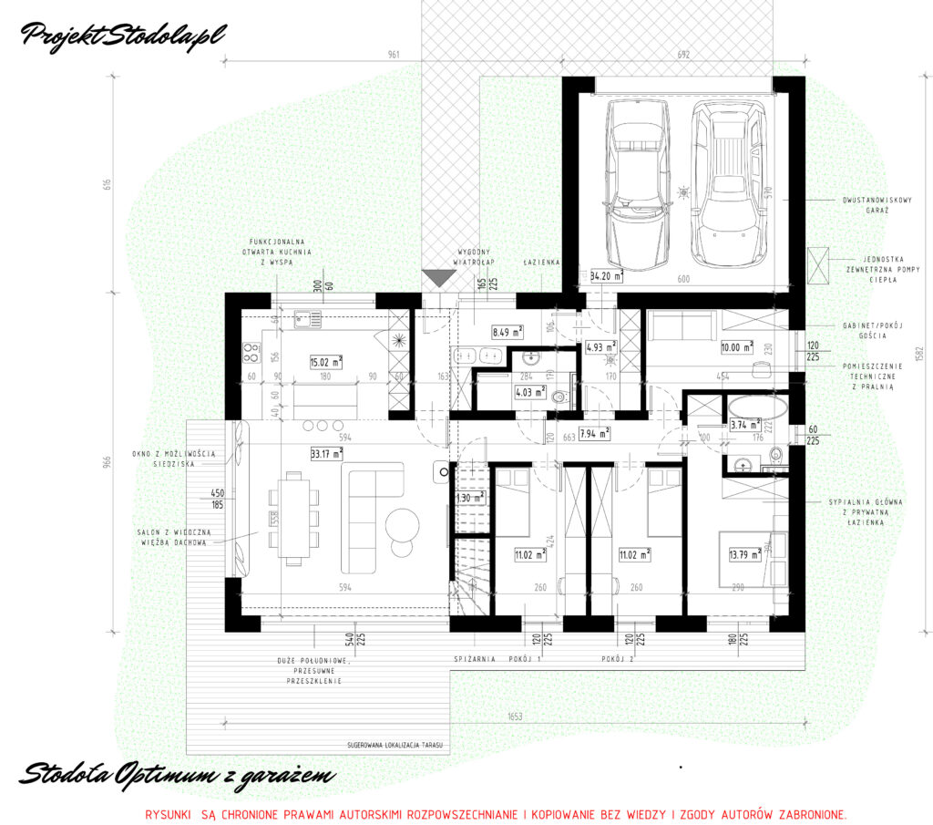
  • Powierzchnia użytkowa:124,47 m²
  • Powierzchnia garażu:34,26 m²
  • Minimalne wymiary działki:24,53 x 24,82 m
  • Powierzchnia zabudowy:202,03 m²
  • Wysokość budynku w kalenicy:6,33 m
  • Kąt nachylenia dachu:30°
Więcej parametrów >
Czas realizacji zamówienia:
ok. 3 dni

Jeśli bardzo zależy Ci na czasie, to po złożeniu zamówienia zadzwoń do nas, by potwierdzić aktualny termin dostarczenia projektu.

Wybierz wersję projektu, która pasuje do Twojej działki. Wszystkie nasze projekty dostępne są w dwóch wersja podstawowej i lustrzanym odbiciu.

Wyczyść

Szukasz podobnego projektu Zobacz -> PROJEKTY PO ZMIANACH, lub skontaktuj sie z nami-> KONTAKT

W cenie projektu zyskujesz:

PROJEKTY ZOPTYMALIZOWANE POD WZGLĘDEM KONSTRUKCJI I ENERGOOSZCZĘDNOŚCI

750 zł0 zł

PROJEKT PRZYSTOSOWANY DO POWIETRZNEJ POMPY CIEPŁA i OGRZEWANIA PODŁOGOWEGO

750 zł0 zł

PROJEKT z wentylacją mechaniczną z rekuperacją

15 zł0 zł

BEZPŁATNA DOSTAWA KURIEREM

RZUTY:


SCHEMATYCZNE PRZEKROJE:


FUNKCJA:

Stodoła Optimum z garażem to dom parterowy, ekonomiczny w budowie, zoptymalizowany pod katem funkcji, konstrukcji i energooszczędności. Posiada prosty, czytelny układ funkcjonalny. W strefie wejściowej znajduje się wygodny wiatrołap z miejscem na dużą szafę z siedziskiem, doświetlony dużym przeszkleniem, połączony z pomieszczeniem technicznym i z garażem.

Z wiatrołapu wchodzimy wprost do serca domu- strefy dziennej. Duże przeszklenia doświetlają  przestrzeń, powiększają ją optycznie i zapewniają połączenie wizualne z działką. W salonie zaprojektowano duże przeszklenie przesuwne typu HS oraz duże okno tzw. “poduszkowe”, z parapetem na wysokości 40cm, przy którym można zaaranżować ciekawie wygodne siedzisko. Z salonu można przejść schodami na poddasze (poddasze jest nieużytkowe, ale można je zaadaptować na cele mieszkalne). W przypadku braku adaptacji poddasza łatwo można zrezygnować ze schodów, zyskując metraż w salonie lub w sypialniach.

Dom rozplanowano na jednej osi komunikacyjnej z jednej strony z salonem z jadalnią oraz  naprawdę dużą kuchnią, a z drugiej z częścią prywatną budynku. Znajdują się tu aż trzy sypialnie, w tym jedna z prywatną łazienką. Do tego wspólna łazienka oraz pokój mogący służyć jako gabinet lub pokój gościnny.

W zależności od Twojej działki garaż można usytuować z boku budynku lub zamienić go na wiatę. Jeśli jesteś jednak zainteresowany tym budynkiem w wersji bez garażu zobacz Stodołę Optimum.

RZUTY:


SCHEMATYCZNE PRZEKROJE:


FUNKCJA:

Stodoła Optimum z garażem to dom parterowy, ekonomiczny w budowie, zoptymalizowany pod katem funkcji, konstrukcji i energooszczędności. Posiada prosty, czytelny układ funkcjonalny. W strefie wejściowej znajduje się wygodny wiatrołap z miejscem na dużą szafę z siedziskiem, doświetlony dużym przeszkleniem, połączony z pomieszczeniem technicznym i z garażem.

Z wiatrołapu wchodzimy wprost do serca domu- strefy dziennej. Duże przeszklenia doświetlają  przestrzeń, powiększają ją optycznie i zapewniają połączenie wizualne z działką. W salonie zaprojektowano duże przeszklenie przesuwne typu HS oraz duże okno tzw. “poduszkowe”, z parapetem na wysokości 40cm, przy którym można zaaranżować ciekawie wygodne siedzisko. Z salonu można przejść schodami na poddasze (poddasze jest nieużytkowe, ale można je zaadaptować na cele mieszkalne). W przypadku braku adaptacji poddasza łatwo można zrezygnować ze schodów, zyskując metraż w salonie lub w sypialniach.

Dom rozplanowano na jednej osi komunikacyjnej z jednej strony z salonem z jadalnią oraz  naprawdę dużą kuchnią, a z drugiej z częścią prywatną budynku. Znajdują się tu aż trzy sypialnie, w tym jedna z prywatną łazienką. Do tego wspólna łazienka oraz pokój mogący służyć jako gabinet lub pokój gościnny.

W zależności od Twojej działki garaż można usytuować z boku budynku lub zamienić go na wiatę. Jeśli jesteś jednak zainteresowany tym budynkiem w wersji bez garażu zobacz Stodołę Optimum.

BRYŁA:

Prosty dom parterowy typu nowoczesna stodoła, na planie prostokąta, przykryty dwuspadowym, symetrycznym dachem, o kącie nachylenia 30°. Budynek utrzymany w jednolitej i minimalistycznej stylistyce. Wyeliminowano akcenty w formie zadaszeń, okapów, by budynek był uniwersalny, ale przede wszystkim nie generował dodatkowych kosztów podczas budowy.

Budynek posiada bardzo prosty układ konstrukcyjny opierający się na czterech osiach, prosty dwuspadowy dach i  drewniany strop. Sprawia to, że dom jest łatwy i ekonomiczny w budowie.

STANDARD BUDYNKU I TECHNOLOGIA BUDOWY

Budynek zaprojektowano w standardzie energooszczędnym zgodnym z Warunkami technicznymi 2021 – ogrzewanie podłogowe, powietrzna pompa ciepła, wentylacja mechaniczna z rekuperacją.

ŚCIANY MUROWANE:   dwuwarstwowe – bloczek z betonu komórkowego + styropian grafitowy, ściany działowe silikatowe
ELEWACJA:  deska opalana drewniana, tynk jasny
STROP:   strop drewniany
SCHODY:  systemowe drewniane
DACH:   dachówka ceramiczna lub betonowa

Dodatkowo prosty, dwuspadowy dach pozwala na bezproblemowy, estetyczny montaż instalacji fotowoltaicznej (najlepiej na połaci południowej lub wsch/zach).

Elewacja budynku z zastosowaniem białego tynku silikonowego oraz ciemnego, opalanego drewna sprawia, że dom jest utrzymany w przyjaznej dla oka kolorystyce. Istnieje możliwość dopasowania materiałów tak, by nawiązać do lokalnego kontekstu lub indywidualnych upodobań inwestora.

MINIMALNE WYMIARY DZIAŁKI:

Najlepszym usytuowaniem jest wjazd od strony północnej działki, ale bardzo dobrze sprawdzi się również wjazd od strony wschodniej i zachodniej. Poniżej przedstawiamy różne warianty usytuowania na działce budynku z garażem.

MINIMALNE WYMIARY DZIAŁKI:

Najlepszym usytuowaniem jest wjazd od strony północnej działki, ale bardzo dobrze sprawdzi się również wjazd od strony wschodniej i zachodniej. Poniżej przedstawiamy różne warianty usytuowania na działce budynku z garażem.

KOSZT BUDOWY

Dobrze wiemy jak w dzisiejszych czasach trudno jest oszacować koszty budowy, szczególnie, że potrafią się one zmieniać z miesiąca na miesiąc. Bardzo dbamy o to, by nasze kosztorysy były jak najbardziej dokładne. Wyceniamy projekty bazując na sprawdzonych technologiach i dobrych materiałach, gdyż one gwarantują trwałość budynku i bezawaryjne funkcjonowanie. Nie zaniżamy cen. Projektując stosujemy proste rozwiązania, bez “ozdobników”, by nasze projekty z założenia nie były drogie w budowie, miały duże możliwości etapowania i wariantowania pracy.

Do stodoły M znajdziesz na blogu całe zestawienie wszystkich materiałów i poniesione przez nas koszty budowy, sprawdź także wpis o kosztach budowy z 2022 lub inne nasze realizacje. Możesz także skontaktować się z innymi inwestorami, którzy często są aktywni na naszej grupie fb- Projekt Stodoła- budowa domu typu stodoła.

 


KOSZTORYS UPROSZCZONY:

STAN ZERO :  103 340 zł
STAN SUROWY ZAMKNIĘTY:   350 570 zł
STAN DEWELOPERSKI: 765 880 zł

  • poziom cen na II kwartał 2024,
  • podano kwoty netto, należy doliczyć podatek VAT w odpowiedniej wysokości
  • stan deweloperski zgodny z projektem, materiały dobrej jakości. W cenie zawarte są: instalacja ogrzewania podłogowego, powietrzna pompa ciepła, wentylacja mechaniczna z rekuperacją, stolarka okienna w dobrym standardzie z oknem HS, posadzki, tynki, wykończenie elewacji wg wizualizacji.
  • przy budowie metodą gospodarczą koszty robocizny można szacować na poziomie ok 70-80 % niższym

 


PREFABRYKOWANA STODOŁA

Zależy Ci na czasie, chciałbyś zbudować Stodołę nawet w 4-5 miesięcy? Jest to możliwe w przypadku budowy domu z prefabrykatu.

Budowa z prefabrykatów jest droższa o ok. 15-25% w stosunku do kompleksowej, tradycyjnej budowy.

Co zyskujesz w zamian? Między innymi:

  • ekologiczny dom z naturalnych materiałów
  • szybką realizację domu nawet w 4-5 miesięcy, a co za tym idzie także odporność na niestabilne ceny na rynku;
  • małe zaangażowanie w budowę- bez ogranizowania ekip i materiałów;
  • większą powierzchnię użytkową budynku dzięki mniejszej grubości ścian;
  • dom posadowiony na płycie fundamentowej
  • opieka i doradztwo doświadczonej kadry

Projekt Stodoła współpracuje z firmami wykonawczymi w technologii ciężkiego prefabrykatu drewnianego (na obszarze całej Polski) oraz prefabrykatu keramzytowego (na obszarze w promieniu 100km od Gdańska, Warszawy i Wrocławia).

Jeśli interesuje Cię ten temat napisz do nas maila z informacją odnośnie lokalizacji inwestycji i technologii, którą jesteś zainteresowany/a na  prefabrykat@projektstodola.pl

 

 

2. Dobierz dodatki do projektu

Dodatki do projektu

Opisy informacyjne dodatków

Wersja elektroniczna

wersja elektroniczna projektu w .pdf Bardzo przydatna na etapie wycen oraz konsultacji. Wersja elektroniczna zawiera wszystkie rysunki projektu w formacie .pdf, nie zawiera części opisowej projektu.

Koszt 300 zł

 

 

Dodatkowy egzemplarz projektu

dodatkowy egzemplarz projektu W standardzie otrzymujesz 3 egzemplarze projektu architektoniczno- budowlanego oraz 2 egzemplarze projektu technicznego. 3 egzemplarze PAB są składane do urzędu. Jeden egzemplarz projektu technicznego musi zostać przekazany kierownikowi budowy przed rozpoczęciem budowy. Drugi egzemplarz zazwyczaj trafia na budowę. Warto więc dodać do koszyka ten produkt, aby mieć zawsze pod ręką swój egzemplarz.

Koszt 300 zł

 

 

Podkład do projektowania wnętrz w .dwg

podkłady do projektowania wnętrz w .dwg To uproszczone rysunki w formacie .dwg (parter, piętro, przekrój, elewacje) przydatne w wielu momentach, ale szczególnie ważne przy projektowaniu wnętrz.

Koszt 300 zł

 

 

Dodatkowe wizualizacje

dodatkowe wizualizacje Jeżeli zastanawiasz się nad innym materiałem na elewacji możesz zamówić alternatywną wersję wizualizacji wg swoich potrzeb. Są to sumarycznie 2 ujęcia- 1 od frontu i 1 od ogrodu z innymi materiałami, w rozszerzeniu .jpg. Dotyczy tylko projektu typowego bez zmian. Czas realizacji do 2,5 tygodnia. W polu Uwagi opisz jakie materiały chciałbyś zobaczyć w swojej wersji elewacji.

Koszt 750 zł

 

 

Model 3d budynku w .skp

model 3d budynku w .skp Chcesz zwiedzić budynek przed jego budową, by wszystko dokładnie rozplanować? Dajemy Ci taką możliwość. Jest to model budynku w rozszerzeniu .skp z podstawowym umeblowaniem. Na pewno przyda się przy projektowaniu wnętrz.

Koszt 1150 zł

 

 

Kosztorys

kosztorys z dokładnym spisem materiałów i przedmiarem, bardzo pomocny na etapie wykonywania ofert i zamawiania materiałów. Format .pdf. (dostępny dla wybranych projektów)

 

Koszt 450 zł

 

 

Dobór i projekt fotowoltaiki

dobór i projekt fotowoltaiki  Wszystkie nasze projekty są przystosowane do montażu instalacji fotowoltaicznej. Jednak sama fotowoltaika to indywidualny temat, bardzo zależny od Twojej lokalizacji oraz zapotrzebowania na energię. Ten projekt uwzględni wszystkie Twoje wytyczne- lokalizacyjne, jak i również założenia dotyczące np. stacji ładowania aut elektrycznych. Czas realizacji ok. 2,5 tygodnia. Po zamówieniu prześlij do nas planowaną lokalizację budynku oraz Twoje zapotrzebowanie na energię.

Koszt 800 zł

Smart Home konsultacja ze specjalistą

Zagadnienia z tematyki Smart Home poruszane na spotkaniu lub spotkaniu online

  • Smart Home a zwykła instalacja – podstawowe różnice
  • Systemy Smart
  • Home – przewodowe i bezprzewodowe – szczerze, bez mitów
  • Sterowanie oświetleniem
  • Zacienianie – rolety, żaluzje, karnisze elektryczne
  • Oszczędność energetyczna – zagadnienia związane ze sterowaniem ogrzewaniem i wentylacją – czy to się opłaca?
  • Systemy audio multiroom
  • Bezpieczeństwo – alarm i monitoring, kontrola dostępu
  • Smart Gardens – inteligentne ogrody
  • Po spotkaniu – sporządzenie wstępnego kosztorysu

Koszt 615 zł

 

Projekt wykonawczy ogrzewania podłogowego z pompą ciepła

Projekty wykonawczy podłogowego z pompą ciepła Wszystkie nasze projekty zawierają ogrzewanie z pompy ciepła powietrznej i instalację ogrzewania podłogowego w standardzie projektu technicznego. Projekt wykonawczy zawiera:

  • dokładnie rozrysowane rozstawy pętli grzewczych.
  • dobór konkretnych materiałów i średnic
  • zestawienie materiałów z kosztorysem

Czas realizacji ok. 2,5 tygodnia. Po zamówieniu prześlij do nas planowaną lokalizację budynku oraz materiał wykończeniowe podłogi.

Koszt 900 zł

Projekt wykonawczy wentylacji mechanicznej z rekuperacją

Projekty wentylacji mechanicznej z rekuperacją Wszystkie nasze projekty wentylacje mechaniczną zawierają w standardzie projektu technicznego na schemacie. Projekt wykonawczy zawiera:

  • dokładnie rozrysowane układ wentylacji
  • dobór konkretnych materiałów i średnic
  • zestawienie materiałów z kosztorysem

Czas realizacji ok. 2,5 tygodnia. .

Koszt 900 zł

Połączenie instalacji z kominkiem z płaszczem wodnym

Połączenie instalacji z kominkiem z płaszczem wodnym 

Czas realizacji ok. 2,5 tygodnia. .

Koszt 400 zł

Wersja elektroniczna

300  (z VAT)

Help Icon
wersja elektroniczna projektu w .pdf Bardzo przydatna na etapie wycen oraz konsultacji. Wersja elektroniczna zawiera wszystkie rysunki projektu w formacie .pdf, nie zawiera części opisowej projektu.

Podkłady do projektowania wnętrz

300  (z VAT)

Help Icon
podkłady do projektowania wnętrz w .dwg To uproszczone rysunki w formacie .dwg (parter, piętro, przekrój, elewacje) przydatne w wielu momentach, ale szczególnie ważne przy projektowaniu wnętrz.

Dodatkowy egzemplarz projektu

300  (z VAT)

Help Icon
W standardzie otrzymujesz 3 egzemplarze projektu architektoniczno- budowlanego oraz 2 egzemplarze projektu technicznego. 3 egzemplarze PAB są składane do urzędu. Jeden egzemplarz projektu technicznego musi zostać przekazany kierownikowi budowy przed rozpoczęciem budowy. Drugi egzemplarz zazwyczaj trafia na budowę. Warto więc dodać do koszyka ten produkt, aby mieć zawsze pod ręką swój egzemplarz.

Dodatkowe wizualizacje

750  (z VAT)

Help Icon
Jeżeli zastanawiasz się nad innym materiałem na elewacji możesz zamówić alternatywną wersję wizualizacji wg swoich potrzeb. Są to sumarycznie 2 ujęcia- 1 od frontu i 1 od ogrodu z innymi materiałami, w rozszerzeniu .jpg. Dotyczy tylko projektu typowego bez zmian. Czas realizacji do 2,5 tygodnia. W polu Uwagi opisz jakie materiały chciałbyś zobaczyć w swojej wersji elewacji.

Ogrzewanie gazowe

1000  (z VAT)

Help Icon
Dodatkowe opracowanie dla projektu z ogrzewaniem gazowym. Czas realizacji ok. 2-3 tyg.

Płyta fundamentowa

1800  (z VAT)

Help Icon
Płyta fundamentowa jest rozwiązaniem podnoszącym energooszczędność projektu, oraz przy wskazaniach gruntowych. Projekt płyty fundamentowej do zamówionego projektu gotowego). Projekt płyty należy adaptować do warunków gruntowych. Czas realizacji ok. 2-3 tyg.

Strop monolityczny- projekt zamienny stropu

1300  (z VAT)

Help Icon
Strop monolityczny jako dodatek do projektu to idealne rozwiązanie, jeśli planujesz w pełni wykorzystać poddasze, na przykład na pokoje dla dzieci Zapewnia lepszą akustykę i większą swobodę aranżacji przestrzeni. W ramach dodatku wprowadzana jest zmiana stropu wraz z modyfikacją podparcia dachu oraz innych elementów konstrukcyjnych, które z niej wynikają. Czas realizacji wynosi około 3–4 tygodnie

Model 3d budynku w .skp

1150  (z VAT)

Help Icon
Chcesz zwiedzić budynek przed jego budową, by wszystko dokładnie rozplanować? Dajemy Ci taką możliwość. Jest to model budynku w rozszerzeniu .skp z podstawowym umeblowaniem. Na pewno przyda się przy projektowaniu wnętrz.

dobór i projekt fotowoltaiki

800  (z VAT)

Help Icon
Wszystkie nasze projekty są przystosowane do montażu instalacji fotowoltaicznej. Jednak sama fotowoltaika to indywidualny temat, bardzo zależny od Twojej lokalizacji oraz zapotrzebowania na energię. Ten projekt uwzględni wszystkie Twoje wytyczne- lokalizacyjne, jak i również założenia dotyczące np. stacji ładowania aut elektrycznych. Czas realizacji ok. 2,5 tygodnia. Po zamówieniu prześlij do nas planowaną lokalizację budynku oraz Twoje zapotrzebowanie na energię.

Projekt wykonawczy wentylacji mechanicznej z rekuperacją

900  (z VAT)

Help Icon
Wszystkie nasze projekty wentylacje mechaniczną zawierają w standardzie projektu technicznego na schemacie. Projekt wykonawczy zawiera: dokładnie rozrysowane układ wentylacji dobór konkretnych materiałów i średnic zestawienie materiałów z kosztorysem Czas realizacji ok. 2,5 tygodnia. .

Połączenie instalacji z kominkiem z płaszczem wodnym

400  (z VAT)

Help Icon
Połączenie instalacji ogrzewania domu z kominkiem z płaszczem wodnym  Czas realizacji ok. 2,5 tygodnia. .

Projekt wykonawczy ogrzewania podłogowego z pompą ciepła

900  (z VAT)

Help Icon
Wszystkie nasze projekty zawierają ogrzewanie z pompy ciepła powietrznej i instalację ogrzewania podłogowego w standardzie projektu technicznego. Projekt wykonawczy zawiera: dokładnie rozrysowane rozstawy pętli grzewczych. dobór konkretnych materiałów i średnic zestawienie materiałów z kosztorysem Czas realizacji ok. 2,5 tygodnia. Po zamówieniu prześlij do nas planowaną lokalizację budynku oraz materiał wykończeniowe podłogi.

Smart Home Konsultacja ze specjalistą

615  (z VAT)

Help Icon
Zagadnienia z tematyki Smart Home poruszane na spotkaniu wraz z kosztorysem Smart Home a zwykła instalacja – podstawowe różnice Systemy Smart Home – przewodowe i bezprzewodowe – szczerze, bez mitów Sterowanie oświetleniem Zacienianie – rolety, żaluzje, karnisze elektryczne Oszczędność energetyczna – zagadnienia związane ze sterowaniem ogrzewaniem i wentylacją – czy to się opłaca? Systemy audio multiroom Bezpieczeństwo – alarm i monitoring, kontrola dostępu Smart Gardens – inteligentne ogrody Po spotkaniu – sporządzenie wstępnego kosztorysu

Projekt w konstrukcji szkieletowej drewnianej

5500  (z VAT)

Help Icon
Projekt budynku w technologi szkieletu drewnianego w standardzie projektu technicznego. Uwaga, niektóre projekty z uwagi na duże rozpiętości konstrukcji mogą wymagać dodatkowych podór lub elementów konstrukcyjnych. Czas realizacji od 5 tygodni, jeśli zależy Ci na czasie, przed zakupem skontaktuj się z nami by potwierdzić aktualny termin realizacji.

Makieta 3d budynku (mała)

550  (z VAT)

Help Icon
Zobacz swój dom na żywo – w miniaturze.  Pozwoli lepiej planować budowę i wnętrze. Wydruk modelu na drukarce 3d. Makieta posiada otwierane wnętrze i zawiera podstawowe meble. Wydruk w jednym kolorze. Dotyczy projektów gotowych. Wydruk mały w skali 1:200 . ok 10-13 cm. Czas realizacji  1 tydzień

Makieta 3d budynku (duża)

950  (z VAT)

Help Icon
Zobacz swój dom na żywo – w miniaturze.  Pozwoli lepiej planować budowę i wnętrze. Wydruk modelu na drukarce 3d. Makieta posiada otwierane wnętrze i zawiera podstawowe meble. Wydruk w jednym kolorze. Dotyczy projektów gotowych. Wydruk duży w skali 1:100 . ok 20-25 cm. Czas realizacji  1 tydzień

Pakiet zawiera:

  • Dodatkowy egzemplarz projektu
  • Wersję elektroniczną

600 520  (z VAT) Oszczędzasz 80 zł

Dodaj
Najczęściej wybierany

Pakiet zawiera:

  • Dodatkowy egzemplarz projektu
  • Wersję elektroniczną
  • Podkłady do projektowania wnętrz

900 690  (z VAT) Oszczędzasz 210 zł

Dodaj

Pakiet zawiera:

  • Dodatkowy egzemplarz projektu
  • Wersję elektroniczną
  • Podkłady do projektowania wnętrz
  • Model 3d budynku w .skp

1900 1330  (z VAT) Oszczędzasz 570 zł

Dodaj
CO ZAWIERA PROJEKT?

W ramach zamówionego Produktu obejmującego Projekt Typowy Kupujący otrzymuje:

  • 3 egzemplarze projektu ARCHITEKTONICZNO-BUDOWALNEGO i 2 egzemplarze projektu TECHNICZNEGO wraz z elementami wykonawczymi konstrukcji.

Szczegółowy opis zawartości projektu wraz z przykładowymi rysunkami możesz zobaczyć tutaj: “co zawiera projekt?”

  • potwierdzenie kwalifikacji zawodowych projektantów i ich przynależności do izby zawodowej w okresie opracowywania dokumentacji.
  • katalog informacyjny ”Projekt Stodoła Rekomenduje„  o zalecanych produktach i technologiach

W zależności od specyfiki i przeznaczenia Obiektu Budowlanego zawartość Projektu Typowego może nieznacznie się różnić, przy czym różnice te wynikają wyłącznie z charakteru Obiektu Budowlanego oraz wymogów Prawa Budowlanego.

Projekt Typowy umożliwia uzyskanie pozwolenia na budowę po adaptacji do warunków lokalnych.

Do Projektu Typowego dokupić możesz dodatki takie m.in. jak:
– wersja elektroniczna części rysunkowej projektu w formacie .pdf
– podkłady do projektowania wnętrz .dwg
– dodatkowe egzemplarze projektu
– dodatkowe fotorealistyczne wizualizacje
– projekt instalacji domu inteligentengo
– dla wybranych projektów także szczegółowy kosztorys

Opis dodatków znajdziesz w zakładce DODATKI na stronie wybranego projektu. Dodatki zakupić możesz także w korzystnych cenowo PAKIETACH. Zapoznaj się z nimi po dodaniu do koszyka wybranego przez siebie Projektu.


ADAPTACJA PROJEKTU

Każdy projekt typowy umożliwia uzyskanie pozwolenia na budowę po adaptacji do warunków lokalnych przez wybranego przez Inwestora architekta adaptującego.

Adaptujący wykonuje projekt zagospodarowania terenu i dostosowuje projekt typowy do ustaleń Miejscowego Planu Zagospodarowania Przestrzennego (lub decyzji o Warunkach Zabudowy w przypadku braku planu), do terenu, do wymiarów działki, usytuowania względem stron świata, ukształtowania terenu, nośności gruntu, strefy klimatycznej i głębokości przemarzania, potrzeb przyszłych mieszkańców oraz aktualnie obowiązujących norm i przepisów. Nawet jeśli nie wprowadza on zmian do projektu typowego, podpisując dokumentację, staje się autorem projektu budowlanego i bierze odpowiedzialność za prawidłowość i kompletność dokumentacji.

Projektant dokonujący Adaptacji oraz sporządzający Projekt Budowlany, który  zostanie wykorzystany w Procesie Budowlanym, jest zobowiązany w szczególności:

  • dokonać analizy zgodności Projektu Standardowego z lokalnymi uwarunkowaniami miejscowego planu zagospodarowania przestrzennego lub warunków zabudowy i zagospodarowania terenu;
  • nanieść na oryginale Projektu Standardowego trwałą techniką graficzną w kolorze czerwonym projektowany zakres zmian w zakresie rysunkowym i tekstowym;
  • wykonać adaptację fundamentów do lokalnych warunków gruntowych;
  • wykonać sprawdzenie konstrukcji całego Obiektu Budowlanego w zakresie jego dostosowania do lokalnych warunków, takich jak: np. gruntowych i obciążeń normatywnych wynikających ze strefy klimatycznej, bez możliwości wprowadzania zmian kształtu i wymiarów zewnętrznych Obiektu Budowlanego, bez zmiany kąta nachylenia połaci dachowej, wysokości ścian i wymiarów okien;
  • dostosować instalację wodno-kanalizacyjną do warunków miejscowych na podstawie uzgodnionego z dostawcą wody projektu przyłączy;
  • dostosować instalację wodno-kanalizacyjną w odniesieniu do instalacji i przyłącza gazu;
  • wykonać adaptację projektowanej charakterystyki energetycznej wraz z analizą alternatywnych/odnawialnych źródeł ciepła dostosowująca do uwarunkowań na działce i wykonanych ewentualnych zmian w Projekcie Standardowym;
  • podpisać Projekt Budowlany jako autor adaptacji Obiektu Budowlanego do konkretnej lokalizacji z podaniem rodzaju i numeru posiadanych uprawnień projektowych;
  • wykonać sprawdzenie i adaptację Projektu Budowlanego oraz projektowanej charakterystyki energetycznej dostosowującą do zmian w obowiązujących przepisach i normach, jakie wprowadzono po dacie wykonania Projektu Standardowego;
  • wykonać analizę obszaru oddziaływania Obiektu Budowlanego na sąsiednie nieruchomości.

Projekt zagospodarowania działki z częścią opisową należy trwale połączyć z Projektem Budowlanym lub zamieścić w osobnej oprawie: tomie (teczce), stanowiącym z zakupionym Projektem Typowym komplet Projektu Budowlanego.

Obecnie pracujemy nad mapą współpracujących z nami pracowni i architektów adaptujących. Ale być może już dziś będziemy mogli Ci pomóc- wyślij zapytanie na e-mail: info@projektstodola.pl tytułem „Polecenie architekta adaptującego”

Bardzo często w naszych projektach stosujemy fragmentarycznie dachy płaskie nad garażami lub elementami dodatkowymi. W momencie jeśli Miejscowy Plan Zagospodarowania terenu lub Warunki zabudowy obowiązujące na Waszej działce, nie dopuszczają dachów płaskich. Rozwiązaniem może być adaptacja-zaprojektowanie tarasu na dachu płaskim z wyjście z pomieszczeń użytkowych (pokoi) lub poprzez schody z gruntu. Wyjście z dachu może być realizowane poprzez okna połaciowe typu tarasowego. Jest to rozwiązanie popularne i powszechnie stosowane.

Praktycznie w każdym naszym projekcie garaż jest dostawiony do głównej bryły budynku i można go bezproblemowo usunąć, lub przesunąć w inne miejsce. Można też zmienić jego wymiary. Wydłużenie garażu jest stosunkowo łatwe, jego poszerzenie wymaga sprawdzenia i ewentualnego wzmocnienia konstrukcji dachu. Taką zmianę można bezproblemowo wprowadzić na etapie adaptacji.

Jeśli jednak nadal nie znalazłeś odpowiadającego swoim potrzebom projektu przeczytaj poniższe informacje i napisz do nas lub sprawdź stronę USŁUGI.

 


 

INDYWIDUALNE ZMIANY

Jeśli jednak chciałbyś wprowadzić indywidualne zmiany w projekcie najszybszą drogą jest wprowadzenie zmian na etapie adaptacji projektu przez architekta adaptującego. Zawsze możemy doradzić Ci jak najlepiej wprowadzić funkcjonalność do projektu na jakiej Ci zależy.

 


Projekt Stodoła może przygotować projekt typowy ze zmianami wg Twoich wytycznych. Projekt jest aktualizowany w zakresie każdej z tej branż, wprowadzamy je na każdym rysunku każdej branży- architekturze, konstrukcji, sanitarnej i elektrycznej. Co za tym idzie, otrzymują Państwo produkt w dostosowany do swoich potrzeb zgodnie z naszym standardem projektu typowego, (tutaj przykład: Co zawiera projekt) do dalszej adaptacji przez lokalnego architekta. (Adaptacja polega na dostosowaniu typowego projektu do konkretnej działki m.in. – jej położenia, ukształtowania czy warunków gruntowych- o adaptacji projektu możesz więcej przeczytać więcej tutaj).


Poniżej znajdziesz odpowiedzi na najczęściej zadawane pytania dotyczące zmian, kosztów ich wprowadzenia oraz przebiegu współpracy:

 

ZMIANY W PROJEKCIE TYPOWYM

Najszybszą drogą jest wprowadzenie zmian na etapie adaptacji przez architekta adaptującego. Zmiany, które można wprowadzić do projektu typowego bez konieczności uzyskiwania zgody Sprzedawcy to:

  • użycie innych materiałów budowlanych na konstrukcję Obiektu Budowlanego (fundamenty, ściany, stropy, schody, więźba dachowa) pod warunkiem zachowania wymagań konstrukcji i ochrony cieplnej Obiektu Budowlanego:
    1. zmiany usytuowania wewnętrznych ścian działowych, a także otworów drzwiowych wewnątrz Obiektu Budowlanego,
    2. zmiany usytuowania i geometrii schodów wewnętrznych,
    3. zmiany wysokości Obiektu Budowlanego (lub rzędnej wysokościowej kalenicy) o 10% (zwiększyć lub zmniejszyć), w szczególności: poziom posadzki parteru nad terenem projektowanym, wysokość kondygnacji parteru, wysokość ścianki kolankowej)
    4. zmiany kąta nachylenia dachu w zakresie 5 stopni (zwiększyć lub zmniejszyć)
    5. wykonania podpiwniczenia całości lub części Obiektu Budowlanego,
    6. zmiany przekroju filarów zewnętrznych i wewnętrznych.
  • Wprowadzenie zmiany materiałów wykończeniowych wewnątrz i na zewnątrz Obiektu Budowlanego, a także zmiana kolorystyki zewnętrznej Obiektu Budowlanego, przy zachowaniu dbałości o estetykę.
  • Pod warunkiem zachowania prawidłowej kompozycji elewacji (zachowanie wspólnej linii usytuowania otworów okiennych i drzwiowych nad sobą lub obok siebie) oraz zasad konstrukcji Kupujący może:
    1. wprowadzić zmiany w układzie okien i drzwi na elewacji: zlikwidować lub zaprojektować dodatkowe,
    2. zmieniać wymiary poziome i pionowe okien i drzwi,
    3. stosować pustaki szklane (luksfery),
    4. doprojektować dodatkowe wejścia do domu lub garażu,
    5. stosować dodatkowe okna połaciowe oraz wyłazy dachowe.
  • Zmienić usytuowanie, zlikwidować, zaprojektować dodatkowe: kominy (dymowe, spalinowe, wentylacyjne) i wywiewki kanalizacyjne, dbając o prawidłowość rozwiązań technicznych i estetycznych.
  • Pod warunkiem zadbania o estetykę Obiektu Budowlanego i zasady konstrukcji Kupujący może doprojektować (lub zlikwidować) dodatkowe elementy zewnętrzne Obiektu Budowlanego takie jak: garaż, tarasy naziemne, ogrody zimowe, a także elementy wewnętrzne, takie jak antresole.
  • Zmienienie funkcji pomieszczeń, w tym także zaadaptowanie garażu lub innego pomieszczenia na cele mieszkalne, pod warunkiem dostosowania ich do stałego pobytu osób.
  • Powiększenie lub zmniejszenie istniejącego w projekcie typowym garażu.
  • Przeprojektowanie instalacji grzewczej, dostosowanie do innego źródła energii.
  • Przeprojektowanie instalacji sanitarnej i elektrycznej.

W przypadku konieczności wprowadzenia zmian, które wykraczają  zakres zmian nieistotnych, jesteś zobowiązany poinformować nas o tym, przedstawiając zakres planowanych zmian (najlepiej e-mail: zmiany@projektstodola.pl, tytułem: Zgoda na zmiany w projekcie). Zapoznamy się z zakresem wprowadzanych zmian, a gdy wyrazimy zgodę na wprowadzenie zmiany w projekcie typowym zgoda zostanie przesłana w formacie PDF.

Zgody wydawane są bezpłatnie.

Jeśli Twoje zmiany wymagają dużej ingerencji w budynek lub są zbyt rozległe, by wprowadził je architekt adaptujący, możesz skonsultować z nami czy są one możliwe do wprowadzenia. Jako autorzy projektu znamy go najlepiej, jesteśmy w stanie wprowadzić praktycznie każdą zmianę w projekcie, zwracamy również uwagę, by zmiana była sensowna z punktu widzenia założeń projektu i jego estetyki. Pochodzimy do tematu kompleksowo, a zmiany wprowadzamy w całej dokumentacji wielobranżowej- na wszystkich rysunkach i w opisie.

Na etapie koncepcji rozwiejmy Twoje wątpliwości, doradzimy, pomożemy dokonać wyboru. W efekcie dostaniesz projekt typowy dopasowany do własnych potrzeb, wymagający jedynie adaptacji do warunków lokalnych przez architekta adaptującego.


Ile kosztuje wprowadzenie zmian do projektu typowego? Zapoznaj się z naszymi pakietami opisanymi w punkcie 4.


W celu potwierdzenia zakresu zmian, pakietu oraz terminu realizacji najlepiej jest przedstawić je drogą mailową, pisząc jakiego projektu dotyczą i (najlepiej w punktach) jakie zmiany w stosunku do projektu bazowego przedstawionego na stronie chcą Państwo wprowadzić. Możesz też zaznaczyć je na szkicu lub rzucie projektu ze sklepu. Jeśli nie jesteś pewien co do wyboru rozwiązania, opisz problem, a my zaproponujemy rozwiązanie. (Najlepiej e-mail: zmiany@projektstodola.pl tytułem Wprowadzenie zmian do projektu).


Niektóre projekty ze zmianami, które wprowadziliśmy możesz zobaczyć tutaj: Stodoły po zmianach. Każdy z tych projektów możesz także zakupić, w tym celu skontaktuj się z nami telefonicznie lub mailowo.

Najszybszą drogą jest wprowadzenie zmian na etapie adaptacji projektu przez architekta adaptującego. Zawsze możemy doradzić Ci jak najlepiej wprowadzić funkcjonalność do projektu na jakiej Ci zależy.


Projekt Stodoła może przygotować projekt typowy ze zmianami wg Twoich wytycznych. Zmiany wprowadzamy we wszystkich elementach projektu (rysunkach, opisach, zestawieniach). Znamy nasze projekty najlepiej, dlatego na etapie wprowadzania zmian, doradzamy jak najlepiej pod względem funkcjonalnym i ekonomicznym wprowadzić daną zmianę.

Koszt wprowadzenia zmian w projekcie podzieliliśmy na 3 pakiety w zależności jak bardzo zmiany ingerują w projekt typowy, a co za tym idzie jak dużo pracy i zaangażowania wymagają. Termin realizacji uzależniony jest od naszej bieżącej pracy i zazwyczaj wynosi ok. 7-10 tygodni.

 


Przykładowe koszty wprowadzenia zmian to:

  • PAKIET MAŁYCH ZMIAN to koszt 2 400 zł

  • PAKIET ŚREDNICH ZMIAN to koszt 5 800 zł

  • PAKIET DUŻYCH ZMIAN to koszt 8 000 zł

Wszystkie zmiany niosą ze sobą ingerencję także w inne branże, czyli konstrukcję, instalacje sanitarne i elektryczne. Projekt jest aktualizowany w zakresie każdej z tej branż, wprowadzamy je na każdym rysunku każdej branży- architekturze, konstrukcji, sanitarnej i elektrycznej. Co za tym idzie, otrzymują Państwo produkt dostosowany do swoich potrzeb zgodnie z naszym standardem projektu typowego, (tutaj przykład: Co zawiera projekt) do dalszej adaptacji przez lokalnego architekta. (Adaptacja polega na dostosowaniu typowego projektu do konkretnej działki m.in. – jej położenia, ukształtowania czy warunków gruntowych- o adaptacji projektu możesz więcej przeczytać więcej tutaj).

Wprowadzanie zmian odbywa się etapowo. Na etapie wprowadzania zmian doradzamy również jak najlepiej wprowadzić zmianę, by układ był funkcjonalny, a budowa optymalna. Najpierw przygotowujemy koncepcję zmian na rysunkach architektonicznych (rzuty) i przesyłamy do akceptacji, wprowadzamy ew. uwagi, następnie po akceptacji nanosimy zmiany na wszystkich rysunkach wszystkich branż i części opisowej.


W celu potwierdzenia zakresu zmian, pakietu oraz terminu realizacji najlepiej jest przedstawić je drogą mailową, pisząc jakiego projektu dotyczą i (najlepiej w punktach) jakie zmiany, w stosunku do projektu bazowego przedstawionego na stronie, chcą Państwo wprowadzić. Możesz też zaznaczyć je na szkicu lub rzucie projektu ze sklepu. Jeśli nie jesteś pewien co do wyboru rozwiązania, opisz problem, a my zaproponujemy rozwiązanie. (Najlepiej e-mail: zmiany@projektstodola.pl tytułem Wprowadzenie zmian do projektu).

W celu potwierdzenia zakresu zmian, pakietu oraz terminu realizacji najlepiej jest przedstawić je drogą mailową, pisząc jakiego projektu dotyczą i (najlepiej w punktach) jakie zmiany w stosunku do projektu bazowego przedstawionego na stronie chcą Państwo wprowadzić. Możesz też zaznaczyć je na szkicu lub rzucie projektu ze sklepu. Jeśli nie jesteś pewien co do wyboru rozwiązania, opisz problem, a my zaproponujemy rozwiązanie. (Najlepiej e-mail: zmiany@projektstodola.pl tytułem Wprowadzenie zmian do projektu).


Po zaakceptowaniu pakietu i terminu wykonania możesz złożyć zamówienie w Sklepie poprzez dodanie do koszyka wybranego Projektu Typowego a następnie Produktu pod nazwą „Indywidualne zmiany w Projekcie Typowym”. Produkt “Indywidualne zmiany w projekcie typowym” można zamówić tylko razem z Projektem Typowym. Dlatego należy dodać do koszyka te dwie pozycje.

W “Indywidualnych zmianach w projekcie typowym” należy wypełnić pola- opis, data wykonania i cenę, zgodnie z ustaleniami we wcześniejszej korespondencji mailowej. Czas realizacji jest liczony od zamówienia wraz z opłatą faktury.

Procedura zakupu jest opisana także w regulaminie.


Jednocześnie przypominamy, że najprostszą drogą jest wprowadzenie zmian na etapie adaptacji przez architekta adaptującego.

Praktycznie w każdym naszym projekcie garaż jest dostawiony do głównej bryły budynku i można go bezproblemowo usunąć lub przesunąć w inne miejsce. Można też zmienić jego wymiary. Wydłużenie garażu jest stosunkowo łatwe, jego poszerzenie wymaga sprawdzenia i ewentualnego wzmocnienia konstrukcji dachu. Taką zmianę można bezproblemowo wprowadzić na etapie adaptacji.

 

Wszystkie realizacje naszych projektów zobaczysz tutaj:

WASZE REALIZACJE

 


Projekt Stodoła to nie tylko blog i projekty gotowe, to sposób myślenia o budowie o wyborach i kompromisach tak, by osiągnąć wymarzony cel w pełnym zadowoleniu. Projekt Stodoła to minimalizm, funkcjonalność prostota, energooszczędność, za którymi podąża ekonomika budowy.

Nasza modelowa Stodoła M jest już od 5 lat zamieszkana. Nie sądziliśmy, że nasze budowlane i aranżacyjne poczynania, które relacjonujemy na blogu i poprzez media społecznościowe stworzą społeczność dookoła tej idei. Można powiedzieć, że Projekt Stodoła to coś więcej niż projekty, to również forum wymiany opinii i doświadczeń. To społeczność, do której możesz należeć również Ty.

 


Dlatego zapraszamy Cię do dzielenia się postępami z budowy Twojej Stodoły, a może masz jakieś pytania i chciałbyś skorzystać z doświadczeń innych? Zachęcamy Cię do zapisania się do naszej grupy na Facebook’u – Projekt Stodoła- budowa domu typu stodoła, gdzie wielu inwestorów dzieli się swoimi doświadczeniami.

 


Sprawdź również profile na mediach społecznościowych inwestorów budujących domy wg naszych projektów:

 

 

RZUTY:


SCHEMATYCZNE PRZEKROJE:


FUNKCJA:

Stodoła Optimum z garażem to dom parterowy, ekonomiczny w budowie, zoptymalizowany pod katem funkcji, konstrukcji i energooszczędności. Posiada prosty, czytelny układ funkcjonalny. W strefie wejściowej znajduje się wygodny wiatrołap z miejscem na dużą szafę z siedziskiem, doświetlony dużym przeszkleniem, połączony z pomieszczeniem technicznym i z garażem.

Z wiatrołapu wchodzimy wprost do serca domu- strefy dziennej. Duże przeszklenia doświetlają  przestrzeń, powiększają ją optycznie i zapewniają połączenie wizualne z działką. W salonie zaprojektowano duże przeszklenie przesuwne typu HS oraz duże okno tzw. “poduszkowe”, z parapetem na wysokości 40cm, przy którym można zaaranżować ciekawie wygodne siedzisko. Z salonu można przejść schodami na poddasze (poddasze jest nieużytkowe, ale można je zaadaptować na cele mieszkalne). W przypadku braku adaptacji poddasza łatwo można zrezygnować ze schodów, zyskując metraż w salonie lub w sypialniach.

Dom rozplanowano na jednej osi komunikacyjnej z jednej strony z salonem z jadalnią oraz  naprawdę dużą kuchnią, a z drugiej z częścią prywatną budynku. Znajdują się tu aż trzy sypialnie, w tym jedna z prywatną łazienką. Do tego wspólna łazienka oraz pokój mogący służyć jako gabinet lub pokój gościnny.

W zależności od Twojej działki garaż można usytuować z boku budynku lub zamienić go na wiatę. Jeśli jesteś jednak zainteresowany tym budynkiem w wersji bez garażu zobacz Stodołę Optimum.

RZUTY:


SCHEMATYCZNE PRZEKROJE:


FUNKCJA:

Stodoła Optimum z garażem to dom parterowy, ekonomiczny w budowie, zoptymalizowany pod katem funkcji, konstrukcji i energooszczędności. Posiada prosty, czytelny układ funkcjonalny. W strefie wejściowej znajduje się wygodny wiatrołap z miejscem na dużą szafę z siedziskiem, doświetlony dużym przeszkleniem, połączony z pomieszczeniem technicznym i z garażem.

Z wiatrołapu wchodzimy wprost do serca domu- strefy dziennej. Duże przeszklenia doświetlają  przestrzeń, powiększają ją optycznie i zapewniają połączenie wizualne z działką. W salonie zaprojektowano duże przeszklenie przesuwne typu HS oraz duże okno tzw. “poduszkowe”, z parapetem na wysokości 40cm, przy którym można zaaranżować ciekawie wygodne siedzisko. Z salonu można przejść schodami na poddasze (poddasze jest nieużytkowe, ale można je zaadaptować na cele mieszkalne). W przypadku braku adaptacji poddasza łatwo można zrezygnować ze schodów, zyskując metraż w salonie lub w sypialniach.

Dom rozplanowano na jednej osi komunikacyjnej z jednej strony z salonem z jadalnią oraz  naprawdę dużą kuchnią, a z drugiej z częścią prywatną budynku. Znajdują się tu aż trzy sypialnie, w tym jedna z prywatną łazienką. Do tego wspólna łazienka oraz pokój mogący służyć jako gabinet lub pokój gościnny.

W zależności od Twojej działki garaż można usytuować z boku budynku lub zamienić go na wiatę. Jeśli jesteś jednak zainteresowany tym budynkiem w wersji bez garażu zobacz Stodołę Optimum.

BRYŁA:

Prosty dom parterowy typu nowoczesna stodoła, na planie prostokąta, przykryty dwuspadowym, symetrycznym dachem, o kącie nachylenia 30°. Budynek utrzymany w jednolitej i minimalistycznej stylistyce. Wyeliminowano akcenty w formie zadaszeń, okapów, by budynek był uniwersalny, ale przede wszystkim nie generował dodatkowych kosztów podczas budowy.

Budynek posiada bardzo prosty układ konstrukcyjny opierający się na czterech osiach, prosty dwuspadowy dach i  drewniany strop. Sprawia to, że dom jest łatwy i ekonomiczny w budowie.

STANDARD BUDYNKU I TECHNOLOGIA BUDOWY

Budynek zaprojektowano w standardzie energooszczędnym zgodnym z Warunkami technicznymi 2021 – ogrzewanie podłogowe, powietrzna pompa ciepła, wentylacja mechaniczna z rekuperacją.

ŚCIANY MUROWANE:   dwuwarstwowe – bloczek z betonu komórkowego + styropian grafitowy, ściany działowe silikatowe
ELEWACJA:  deska opalana drewniana, tynk jasny
STROP:   strop drewniany
SCHODY:  systemowe drewniane
DACH:   dachówka ceramiczna lub betonowa

Dodatkowo prosty, dwuspadowy dach pozwala na bezproblemowy, estetyczny montaż instalacji fotowoltaicznej (najlepiej na połaci południowej lub wsch/zach).

Elewacja budynku z zastosowaniem białego tynku silikonowego oraz ciemnego, opalanego drewna sprawia, że dom jest utrzymany w przyjaznej dla oka kolorystyce. Istnieje możliwość dopasowania materiałów tak, by nawiązać do lokalnego kontekstu lub indywidualnych upodobań inwestora.

MINIMALNE WYMIARY DZIAŁKI:

Najlepszym usytuowaniem jest wjazd od strony północnej działki, ale bardzo dobrze sprawdzi się również wjazd od strony wschodniej i zachodniej. Poniżej przedstawiamy różne warianty usytuowania na działce budynku z garażem.

MINIMALNE WYMIARY DZIAŁKI:

Najlepszym usytuowaniem jest wjazd od strony północnej działki, ale bardzo dobrze sprawdzi się również wjazd od strony wschodniej i zachodniej. Poniżej przedstawiamy różne warianty usytuowania na działce budynku z garażem.

KOSZT BUDOWY

Dobrze wiemy jak w dzisiejszych czasach trudno jest oszacować koszty budowy, szczególnie, że potrafią się one zmieniać z miesiąca na miesiąc. Bardzo dbamy o to, by nasze kosztorysy były jak najbardziej dokładne. Wyceniamy projekty bazując na sprawdzonych technologiach i dobrych materiałach, gdyż one gwarantują trwałość budynku i bezawaryjne funkcjonowanie. Nie zaniżamy cen. Projektując stosujemy proste rozwiązania, bez “ozdobników”, by nasze projekty z założenia nie były drogie w budowie, miały duże możliwości etapowania i wariantowania pracy.

Do stodoły M znajdziesz na blogu całe zestawienie wszystkich materiałów i poniesione przez nas koszty budowy, sprawdź także wpis o kosztach budowy z 2022 lub inne nasze realizacje. Możesz także skontaktować się z innymi inwestorami, którzy często są aktywni na naszej grupie fb- Projekt Stodoła- budowa domu typu stodoła.

 


KOSZTORYS UPROSZCZONY:

STAN ZERO :  103 340 zł
STAN SUROWY ZAMKNIĘTY:   350 570 zł
STAN DEWELOPERSKI: 765 880 zł

  • poziom cen na II kwartał 2024,
  • podano kwoty netto, należy doliczyć podatek VAT w odpowiedniej wysokości
  • stan deweloperski zgodny z projektem, materiały dobrej jakości. W cenie zawarte są: instalacja ogrzewania podłogowego, powietrzna pompa ciepła, wentylacja mechaniczna z rekuperacją, stolarka okienna w dobrym standardzie z oknem HS, posadzki, tynki, wykończenie elewacji wg wizualizacji.
  • przy budowie metodą gospodarczą koszty robocizny można szacować na poziomie ok 70-80 % niższym

 


PREFABRYKOWANA STODOŁA

Zależy Ci na czasie, chciałbyś zbudować Stodołę nawet w 4-5 miesięcy? Jest to możliwe w przypadku budowy domu z prefabrykatu.

Budowa z prefabrykatów jest droższa o ok. 15-25% w stosunku do kompleksowej, tradycyjnej budowy.

Co zyskujesz w zamian? Między innymi:

  • ekologiczny dom z naturalnych materiałów
  • szybką realizację domu nawet w 4-5 miesięcy, a co za tym idzie także odporność na niestabilne ceny na rynku;
  • małe zaangażowanie w budowę- bez ogranizowania ekip i materiałów;
  • większą powierzchnię użytkową budynku dzięki mniejszej grubości ścian;
  • dom posadowiony na płycie fundamentowej
  • opieka i doradztwo doświadczonej kadry

Projekt Stodoła współpracuje z firmami wykonawczymi w technologii ciężkiego prefabrykatu drewnianego (na obszarze całej Polski) oraz prefabrykatu keramzytowego (na obszarze w promieniu 100km od Gdańska, Warszawy i Wrocławia).

Jeśli interesuje Cię ten temat napisz do nas maila z informacją odnośnie lokalizacji inwestycji i technologii, którą jesteś zainteresowany/a na  prefabrykat@projektstodola.pl

 

 

2. Dobierz dodatki do projektu

Dodatki do projektu

Opisy informacyjne dodatków

Wersja elektroniczna

wersja elektroniczna projektu w .pdf Bardzo przydatna na etapie wycen oraz konsultacji. Wersja elektroniczna zawiera wszystkie rysunki projektu w formacie .pdf, nie zawiera części opisowej projektu.

Koszt 300 zł

 

 

Dodatkowy egzemplarz projektu

dodatkowy egzemplarz projektu W standardzie otrzymujesz 3 egzemplarze projektu architektoniczno- budowlanego oraz 2 egzemplarze projektu technicznego. 3 egzemplarze PAB są składane do urzędu. Jeden egzemplarz projektu technicznego musi zostać przekazany kierownikowi budowy przed rozpoczęciem budowy. Drugi egzemplarz zazwyczaj trafia na budowę. Warto więc dodać do koszyka ten produkt, aby mieć zawsze pod ręką swój egzemplarz.

Koszt 300 zł

 

 

Podkład do projektowania wnętrz w .dwg

podkłady do projektowania wnętrz w .dwg To uproszczone rysunki w formacie .dwg (parter, piętro, przekrój, elewacje) przydatne w wielu momentach, ale szczególnie ważne przy projektowaniu wnętrz.

Koszt 300 zł

 

 

Dodatkowe wizualizacje

dodatkowe wizualizacje Jeżeli zastanawiasz się nad innym materiałem na elewacji możesz zamówić alternatywną wersję wizualizacji wg swoich potrzeb. Są to sumarycznie 2 ujęcia- 1 od frontu i 1 od ogrodu z innymi materiałami, w rozszerzeniu .jpg. Dotyczy tylko projektu typowego bez zmian. Czas realizacji do 2,5 tygodnia. W polu Uwagi opisz jakie materiały chciałbyś zobaczyć w swojej wersji elewacji.

Koszt 750 zł

 

 

Model 3d budynku w .skp

model 3d budynku w .skp Chcesz zwiedzić budynek przed jego budową, by wszystko dokładnie rozplanować? Dajemy Ci taką możliwość. Jest to model budynku w rozszerzeniu .skp z podstawowym umeblowaniem. Na pewno przyda się przy projektowaniu wnętrz.

Koszt 1150 zł

 

 

Kosztorys

kosztorys z dokładnym spisem materiałów i przedmiarem, bardzo pomocny na etapie wykonywania ofert i zamawiania materiałów. Format .pdf. (dostępny dla wybranych projektów)

 

Koszt 450 zł

 

 

Dobór i projekt fotowoltaiki

dobór i projekt fotowoltaiki  Wszystkie nasze projekty są przystosowane do montażu instalacji fotowoltaicznej. Jednak sama fotowoltaika to indywidualny temat, bardzo zależny od Twojej lokalizacji oraz zapotrzebowania na energię. Ten projekt uwzględni wszystkie Twoje wytyczne- lokalizacyjne, jak i również założenia dotyczące np. stacji ładowania aut elektrycznych. Czas realizacji ok. 2,5 tygodnia. Po zamówieniu prześlij do nas planowaną lokalizację budynku oraz Twoje zapotrzebowanie na energię.

Koszt 800 zł

Smart Home konsultacja ze specjalistą

Zagadnienia z tematyki Smart Home poruszane na spotkaniu lub spotkaniu online

  • Smart Home a zwykła instalacja – podstawowe różnice
  • Systemy Smart
  • Home – przewodowe i bezprzewodowe – szczerze, bez mitów
  • Sterowanie oświetleniem
  • Zacienianie – rolety, żaluzje, karnisze elektryczne
  • Oszczędność energetyczna – zagadnienia związane ze sterowaniem ogrzewaniem i wentylacją – czy to się opłaca?
  • Systemy audio multiroom
  • Bezpieczeństwo – alarm i monitoring, kontrola dostępu
  • Smart Gardens – inteligentne ogrody
  • Po spotkaniu – sporządzenie wstępnego kosztorysu

Koszt 615 zł

 

Projekt wykonawczy ogrzewania podłogowego z pompą ciepła

Projekty wykonawczy podłogowego z pompą ciepła Wszystkie nasze projekty zawierają ogrzewanie z pompy ciepła powietrznej i instalację ogrzewania podłogowego w standardzie projektu technicznego. Projekt wykonawczy zawiera:

  • dokładnie rozrysowane rozstawy pętli grzewczych.
  • dobór konkretnych materiałów i średnic
  • zestawienie materiałów z kosztorysem

Czas realizacji ok. 2,5 tygodnia. Po zamówieniu prześlij do nas planowaną lokalizację budynku oraz materiał wykończeniowe podłogi.

Koszt 900 zł

Projekt wykonawczy wentylacji mechanicznej z rekuperacją

Projekty wentylacji mechanicznej z rekuperacją Wszystkie nasze projekty wentylacje mechaniczną zawierają w standardzie projektu technicznego na schemacie. Projekt wykonawczy zawiera:

  • dokładnie rozrysowane układ wentylacji
  • dobór konkretnych materiałów i średnic
  • zestawienie materiałów z kosztorysem

Czas realizacji ok. 2,5 tygodnia. .

Koszt 900 zł

Połączenie instalacji z kominkiem z płaszczem wodnym

Połączenie instalacji z kominkiem z płaszczem wodnym 

Czas realizacji ok. 2,5 tygodnia. .

Koszt 400 zł

Wersja elektroniczna

300  (z VAT)

Help Icon
wersja elektroniczna projektu w .pdf Bardzo przydatna na etapie wycen oraz konsultacji. Wersja elektroniczna zawiera wszystkie rysunki projektu w formacie .pdf, nie zawiera części opisowej projektu.

Podkłady do projektowania wnętrz

300  (z VAT)

Help Icon
podkłady do projektowania wnętrz w .dwg To uproszczone rysunki w formacie .dwg (parter, piętro, przekrój, elewacje) przydatne w wielu momentach, ale szczególnie ważne przy projektowaniu wnętrz.

Dodatkowy egzemplarz projektu

300  (z VAT)

Help Icon
W standardzie otrzymujesz 3 egzemplarze projektu architektoniczno- budowlanego oraz 2 egzemplarze projektu technicznego. 3 egzemplarze PAB są składane do urzędu. Jeden egzemplarz projektu technicznego musi zostać przekazany kierownikowi budowy przed rozpoczęciem budowy. Drugi egzemplarz zazwyczaj trafia na budowę. Warto więc dodać do koszyka ten produkt, aby mieć zawsze pod ręką swój egzemplarz.

Dodatkowe wizualizacje

750  (z VAT)

Help Icon
Jeżeli zastanawiasz się nad innym materiałem na elewacji możesz zamówić alternatywną wersję wizualizacji wg swoich potrzeb. Są to sumarycznie 2 ujęcia- 1 od frontu i 1 od ogrodu z innymi materiałami, w rozszerzeniu .jpg. Dotyczy tylko projektu typowego bez zmian. Czas realizacji do 2,5 tygodnia. W polu Uwagi opisz jakie materiały chciałbyś zobaczyć w swojej wersji elewacji.

Ogrzewanie gazowe

1000  (z VAT)

Help Icon
Dodatkowe opracowanie dla projektu z ogrzewaniem gazowym. Czas realizacji ok. 2-3 tyg.

Płyta fundamentowa

1800  (z VAT)

Help Icon
Płyta fundamentowa jest rozwiązaniem podnoszącym energooszczędność projektu, oraz przy wskazaniach gruntowych. Projekt płyty fundamentowej do zamówionego projektu gotowego). Projekt płyty należy adaptować do warunków gruntowych. Czas realizacji ok. 2-3 tyg.

Strop monolityczny- projekt zamienny stropu

1300  (z VAT)

Help Icon
Strop monolityczny jako dodatek do projektu to idealne rozwiązanie, jeśli planujesz w pełni wykorzystać poddasze, na przykład na pokoje dla dzieci Zapewnia lepszą akustykę i większą swobodę aranżacji przestrzeni. W ramach dodatku wprowadzana jest zmiana stropu wraz z modyfikacją podparcia dachu oraz innych elementów konstrukcyjnych, które z niej wynikają. Czas realizacji wynosi około 3–4 tygodnie

Model 3d budynku w .skp

1150  (z VAT)

Help Icon
Chcesz zwiedzić budynek przed jego budową, by wszystko dokładnie rozplanować? Dajemy Ci taką możliwość. Jest to model budynku w rozszerzeniu .skp z podstawowym umeblowaniem. Na pewno przyda się przy projektowaniu wnętrz.

dobór i projekt fotowoltaiki

800  (z VAT)

Help Icon
Wszystkie nasze projekty są przystosowane do montażu instalacji fotowoltaicznej. Jednak sama fotowoltaika to indywidualny temat, bardzo zależny od Twojej lokalizacji oraz zapotrzebowania na energię. Ten projekt uwzględni wszystkie Twoje wytyczne- lokalizacyjne, jak i również założenia dotyczące np. stacji ładowania aut elektrycznych. Czas realizacji ok. 2,5 tygodnia. Po zamówieniu prześlij do nas planowaną lokalizację budynku oraz Twoje zapotrzebowanie na energię.

Projekt wykonawczy wentylacji mechanicznej z rekuperacją

900  (z VAT)

Help Icon
Wszystkie nasze projekty wentylacje mechaniczną zawierają w standardzie projektu technicznego na schemacie. Projekt wykonawczy zawiera: dokładnie rozrysowane układ wentylacji dobór konkretnych materiałów i średnic zestawienie materiałów z kosztorysem Czas realizacji ok. 2,5 tygodnia. .

Połączenie instalacji z kominkiem z płaszczem wodnym

400  (z VAT)

Help Icon
Połączenie instalacji ogrzewania domu z kominkiem z płaszczem wodnym  Czas realizacji ok. 2,5 tygodnia. .

Projekt wykonawczy ogrzewania podłogowego z pompą ciepła

900  (z VAT)

Help Icon
Wszystkie nasze projekty zawierają ogrzewanie z pompy ciepła powietrznej i instalację ogrzewania podłogowego w standardzie projektu technicznego. Projekt wykonawczy zawiera: dokładnie rozrysowane rozstawy pętli grzewczych. dobór konkretnych materiałów i średnic zestawienie materiałów z kosztorysem Czas realizacji ok. 2,5 tygodnia. Po zamówieniu prześlij do nas planowaną lokalizację budynku oraz materiał wykończeniowe podłogi.

Smart Home Konsultacja ze specjalistą

615  (z VAT)

Help Icon
Zagadnienia z tematyki Smart Home poruszane na spotkaniu wraz z kosztorysem Smart Home a zwykła instalacja – podstawowe różnice Systemy Smart Home – przewodowe i bezprzewodowe – szczerze, bez mitów Sterowanie oświetleniem Zacienianie – rolety, żaluzje, karnisze elektryczne Oszczędność energetyczna – zagadnienia związane ze sterowaniem ogrzewaniem i wentylacją – czy to się opłaca? Systemy audio multiroom Bezpieczeństwo – alarm i monitoring, kontrola dostępu Smart Gardens – inteligentne ogrody Po spotkaniu – sporządzenie wstępnego kosztorysu

Projekt w konstrukcji szkieletowej drewnianej

5500  (z VAT)

Help Icon
Projekt budynku w technologi szkieletu drewnianego w standardzie projektu technicznego. Uwaga, niektóre projekty z uwagi na duże rozpiętości konstrukcji mogą wymagać dodatkowych podór lub elementów konstrukcyjnych. Czas realizacji od 5 tygodni, jeśli zależy Ci na czasie, przed zakupem skontaktuj się z nami by potwierdzić aktualny termin realizacji.

Makieta 3d budynku (mała)

550  (z VAT)

Help Icon
Zobacz swój dom na żywo – w miniaturze.  Pozwoli lepiej planować budowę i wnętrze. Wydruk modelu na drukarce 3d. Makieta posiada otwierane wnętrze i zawiera podstawowe meble. Wydruk w jednym kolorze. Dotyczy projektów gotowych. Wydruk mały w skali 1:200 . ok 10-13 cm. Czas realizacji  1 tydzień

Makieta 3d budynku (duża)

950  (z VAT)

Help Icon
Zobacz swój dom na żywo – w miniaturze.  Pozwoli lepiej planować budowę i wnętrze. Wydruk modelu na drukarce 3d. Makieta posiada otwierane wnętrze i zawiera podstawowe meble. Wydruk w jednym kolorze. Dotyczy projektów gotowych. Wydruk duży w skali 1:100 . ok 20-25 cm. Czas realizacji  1 tydzień

Pakiet zawiera:

  • Dodatkowy egzemplarz projektu
  • Wersję elektroniczną

600 520  (z VAT) Oszczędzasz 80 zł

Dodaj
Najczęściej wybierany

Pakiet zawiera:

  • Dodatkowy egzemplarz projektu
  • Wersję elektroniczną
  • Podkłady do projektowania wnętrz

900 690  (z VAT) Oszczędzasz 210 zł

Dodaj

Pakiet zawiera:

  • Dodatkowy egzemplarz projektu
  • Wersję elektroniczną
  • Podkłady do projektowania wnętrz
  • Model 3d budynku w .skp

1900 1330  (z VAT) Oszczędzasz 570 zł

Dodaj
CO ZAWIERA PROJEKT?

W ramach zamówionego Produktu obejmującego Projekt Typowy Kupujący otrzymuje:

  • 3 egzemplarze projektu ARCHITEKTONICZNO-BUDOWALNEGO i 2 egzemplarze projektu TECHNICZNEGO wraz z elementami wykonawczymi konstrukcji.

Szczegółowy opis zawartości projektu wraz z przykładowymi rysunkami możesz zobaczyć tutaj: “co zawiera projekt?”

  • potwierdzenie kwalifikacji zawodowych projektantów i ich przynależności do izby zawodowej w okresie opracowywania dokumentacji.
  • katalog informacyjny ”Projekt Stodoła Rekomenduje„  o zalecanych produktach i technologiach

W zależności od specyfiki i przeznaczenia Obiektu Budowlanego zawartość Projektu Typowego może nieznacznie się różnić, przy czym różnice te wynikają wyłącznie z charakteru Obiektu Budowlanego oraz wymogów Prawa Budowlanego.

Projekt Typowy umożliwia uzyskanie pozwolenia na budowę po adaptacji do warunków lokalnych.

Do Projektu Typowego dokupić możesz dodatki takie m.in. jak:
– wersja elektroniczna części rysunkowej projektu w formacie .pdf
– podkłady do projektowania wnętrz .dwg
– dodatkowe egzemplarze projektu
– dodatkowe fotorealistyczne wizualizacje
– projekt instalacji domu inteligentengo
– dla wybranych projektów także szczegółowy kosztorys

Opis dodatków znajdziesz w zakładce DODATKI na stronie wybranego projektu. Dodatki zakupić możesz także w korzystnych cenowo PAKIETACH. Zapoznaj się z nimi po dodaniu do koszyka wybranego przez siebie Projektu.


ADAPTACJA PROJEKTU

Każdy projekt typowy umożliwia uzyskanie pozwolenia na budowę po adaptacji do warunków lokalnych przez wybranego przez Inwestora architekta adaptującego.

Adaptujący wykonuje projekt zagospodarowania terenu i dostosowuje projekt typowy do ustaleń Miejscowego Planu Zagospodarowania Przestrzennego (lub decyzji o Warunkach Zabudowy w przypadku braku planu), do terenu, do wymiarów działki, usytuowania względem stron świata, ukształtowania terenu, nośności gruntu, strefy klimatycznej i głębokości przemarzania, potrzeb przyszłych mieszkańców oraz aktualnie obowiązujących norm i przepisów. Nawet jeśli nie wprowadza on zmian do projektu typowego, podpisując dokumentację, staje się autorem projektu budowlanego i bierze odpowiedzialność za prawidłowość i kompletność dokumentacji.

Projektant dokonujący Adaptacji oraz sporządzający Projekt Budowlany, który  zostanie wykorzystany w Procesie Budowlanym, jest zobowiązany w szczególności:

  • dokonać analizy zgodności Projektu Standardowego z lokalnymi uwarunkowaniami miejscowego planu zagospodarowania przestrzennego lub warunków zabudowy i zagospodarowania terenu;
  • nanieść na oryginale Projektu Standardowego trwałą techniką graficzną w kolorze czerwonym projektowany zakres zmian w zakresie rysunkowym i tekstowym;
  • wykonać adaptację fundamentów do lokalnych warunków gruntowych;
  • wykonać sprawdzenie konstrukcji całego Obiektu Budowlanego w zakresie jego dostosowania do lokalnych warunków, takich jak: np. gruntowych i obciążeń normatywnych wynikających ze strefy klimatycznej, bez możliwości wprowadzania zmian kształtu i wymiarów zewnętrznych Obiektu Budowlanego, bez zmiany kąta nachylenia połaci dachowej, wysokości ścian i wymiarów okien;
  • dostosować instalację wodno-kanalizacyjną do warunków miejscowych na podstawie uzgodnionego z dostawcą wody projektu przyłączy;
  • dostosować instalację wodno-kanalizacyjną w odniesieniu do instalacji i przyłącza gazu;
  • wykonać adaptację projektowanej charakterystyki energetycznej wraz z analizą alternatywnych/odnawialnych źródeł ciepła dostosowująca do uwarunkowań na działce i wykonanych ewentualnych zmian w Projekcie Standardowym;
  • podpisać Projekt Budowlany jako autor adaptacji Obiektu Budowlanego do konkretnej lokalizacji z podaniem rodzaju i numeru posiadanych uprawnień projektowych;
  • wykonać sprawdzenie i adaptację Projektu Budowlanego oraz projektowanej charakterystyki energetycznej dostosowującą do zmian w obowiązujących przepisach i normach, jakie wprowadzono po dacie wykonania Projektu Standardowego;
  • wykonać analizę obszaru oddziaływania Obiektu Budowlanego na sąsiednie nieruchomości.

Projekt zagospodarowania działki z częścią opisową należy trwale połączyć z Projektem Budowlanym lub zamieścić w osobnej oprawie: tomie (teczce), stanowiącym z zakupionym Projektem Typowym komplet Projektu Budowlanego.

Obecnie pracujemy nad mapą współpracujących z nami pracowni i architektów adaptujących. Ale być może już dziś będziemy mogli Ci pomóc- wyślij zapytanie na e-mail: info@projektstodola.pl tytułem „Polecenie architekta adaptującego”

Bardzo często w naszych projektach stosujemy fragmentarycznie dachy płaskie nad garażami lub elementami dodatkowymi. W momencie jeśli Miejscowy Plan Zagospodarowania terenu lub Warunki zabudowy obowiązujące na Waszej działce, nie dopuszczają dachów płaskich. Rozwiązaniem może być adaptacja-zaprojektowanie tarasu na dachu płaskim z wyjście z pomieszczeń użytkowych (pokoi) lub poprzez schody z gruntu. Wyjście z dachu może być realizowane poprzez okna połaciowe typu tarasowego. Jest to rozwiązanie popularne i powszechnie stosowane.

Praktycznie w każdym naszym projekcie garaż jest dostawiony do głównej bryły budynku i można go bezproblemowo usunąć, lub przesunąć w inne miejsce. Można też zmienić jego wymiary. Wydłużenie garażu jest stosunkowo łatwe, jego poszerzenie wymaga sprawdzenia i ewentualnego wzmocnienia konstrukcji dachu. Taką zmianę można bezproblemowo wprowadzić na etapie adaptacji.

Wszystkie realizacje naszych projektów zobaczysz tutaj:

WASZE REALIZACJE

 


Projekt Stodoła to nie tylko blog i projekty gotowe, to sposób myślenia o budowie o wyborach i kompromisach tak, by osiągnąć wymarzony cel w pełnym zadowoleniu. Projekt Stodoła to minimalizm, funkcjonalność prostota, energooszczędność, za którymi podąża ekonomika budowy.

Nasza modelowa Stodoła M jest już od 5 lat zamieszkana. Nie sądziliśmy, że nasze budowlane i aranżacyjne poczynania, które relacjonujemy na blogu i poprzez media społecznościowe stworzą społeczność dookoła tej idei. Można powiedzieć, że Projekt Stodoła to coś więcej niż projekty, to również forum wymiany opinii i doświadczeń. To społeczność, do której możesz należeć również Ty.

 


Dlatego zapraszamy Cię do dzielenia się postępami z budowy Twojej Stodoły, a może masz jakieś pytania i chciałbyś skorzystać z doświadczeń innych? Zachęcamy Cię do zapisania się do naszej grupy na Facebook’u – Projekt Stodoła- budowa domu typu stodoła, gdzie wielu inwestorów dzieli się swoimi doświadczeniami.

 


Sprawdź również profile na mediach społecznościowych inwestorów budujących domy wg naszych projektów:

 

 

Jeśli jednak nadal nie znalazłeś odpowiadającego swoim potrzebom projektu przeczytaj poniższe informacje i napisz do nas lub sprawdź stronę USŁUGI.

 


 

INDYWIDUALNE ZMIANY

Jeśli jednak chciałbyś wprowadzić indywidualne zmiany w projekcie najszybszą drogą jest wprowadzenie zmian na etapie adaptacji projektu przez architekta adaptującego. Zawsze możemy doradzić Ci jak najlepiej wprowadzić funkcjonalność do projektu na jakiej Ci zależy.

 


Projekt Stodoła może przygotować projekt typowy ze zmianami wg Twoich wytycznych. Projekt jest aktualizowany w zakresie każdej z tej branż, wprowadzamy je na każdym rysunku każdej branży- architekturze, konstrukcji, sanitarnej i elektrycznej. Co za tym idzie, otrzymują Państwo produkt w dostosowany do swoich potrzeb zgodnie z naszym standardem projektu typowego, (tutaj przykład: Co zawiera projekt) do dalszej adaptacji przez lokalnego architekta. (Adaptacja polega na dostosowaniu typowego projektu do konkretnej działki m.in. – jej położenia, ukształtowania czy warunków gruntowych- o adaptacji projektu możesz więcej przeczytać więcej tutaj).


Poniżej znajdziesz odpowiedzi na najczęściej zadawane pytania dotyczące zmian, kosztów ich wprowadzenia oraz przebiegu współpracy:

 

ZMIANY W PROJEKCIE TYPOWYM

Najszybszą drogą jest wprowadzenie zmian na etapie adaptacji przez architekta adaptującego. Zmiany, które można wprowadzić do projektu typowego bez konieczności uzyskiwania zgody Sprzedawcy to:

  • użycie innych materiałów budowlanych na konstrukcję Obiektu Budowlanego (fundamenty, ściany, stropy, schody, więźba dachowa) pod warunkiem zachowania wymagań konstrukcji i ochrony cieplnej Obiektu Budowlanego:
    1. zmiany usytuowania wewnętrznych ścian działowych, a także otworów drzwiowych wewnątrz Obiektu Budowlanego,
    2. zmiany usytuowania i geometrii schodów wewnętrznych,
    3. zmiany wysokości Obiektu Budowlanego (lub rzędnej wysokościowej kalenicy) o 10% (zwiększyć lub zmniejszyć), w szczególności: poziom posadzki parteru nad terenem projektowanym, wysokość kondygnacji parteru, wysokość ścianki kolankowej)
    4. zmiany kąta nachylenia dachu w zakresie 5 stopni (zwiększyć lub zmniejszyć)
    5. wykonania podpiwniczenia całości lub części Obiektu Budowlanego,
    6. zmiany przekroju filarów zewnętrznych i wewnętrznych.
  • Wprowadzenie zmiany materiałów wykończeniowych wewnątrz i na zewnątrz Obiektu Budowlanego, a także zmiana kolorystyki zewnętrznej Obiektu Budowlanego, przy zachowaniu dbałości o estetykę.
  • Pod warunkiem zachowania prawidłowej kompozycji elewacji (zachowanie wspólnej linii usytuowania otworów okiennych i drzwiowych nad sobą lub obok siebie) oraz zasad konstrukcji Kupujący może:
    1. wprowadzić zmiany w układzie okien i drzwi na elewacji: zlikwidować lub zaprojektować dodatkowe,
    2. zmieniać wymiary poziome i pionowe okien i drzwi,
    3. stosować pustaki szklane (luksfery),
    4. doprojektować dodatkowe wejścia do domu lub garażu,
    5. stosować dodatkowe okna połaciowe oraz wyłazy dachowe.
  • Zmienić usytuowanie, zlikwidować, zaprojektować dodatkowe: kominy (dymowe, spalinowe, wentylacyjne) i wywiewki kanalizacyjne, dbając o prawidłowość rozwiązań technicznych i estetycznych.
  • Pod warunkiem zadbania o estetykę Obiektu Budowlanego i zasady konstrukcji Kupujący może doprojektować (lub zlikwidować) dodatkowe elementy zewnętrzne Obiektu Budowlanego takie jak: garaż, tarasy naziemne, ogrody zimowe, a także elementy wewnętrzne, takie jak antresole.
  • Zmienienie funkcji pomieszczeń, w tym także zaadaptowanie garażu lub innego pomieszczenia na cele mieszkalne, pod warunkiem dostosowania ich do stałego pobytu osób.
  • Powiększenie lub zmniejszenie istniejącego w projekcie typowym garażu.
  • Przeprojektowanie instalacji grzewczej, dostosowanie do innego źródła energii.
  • Przeprojektowanie instalacji sanitarnej i elektrycznej.

W przypadku konieczności wprowadzenia zmian, które wykraczają  zakres zmian nieistotnych, jesteś zobowiązany poinformować nas o tym, przedstawiając zakres planowanych zmian (najlepiej e-mail: zmiany@projektstodola.pl, tytułem: Zgoda na zmiany w projekcie). Zapoznamy się z zakresem wprowadzanych zmian, a gdy wyrazimy zgodę na wprowadzenie zmiany w projekcie typowym zgoda zostanie przesłana w formacie PDF.

Zgody wydawane są bezpłatnie.

Jeśli Twoje zmiany wymagają dużej ingerencji w budynek lub są zbyt rozległe, by wprowadził je architekt adaptujący, możesz skonsultować z nami czy są one możliwe do wprowadzenia. Jako autorzy projektu znamy go najlepiej, jesteśmy w stanie wprowadzić praktycznie każdą zmianę w projekcie, zwracamy również uwagę, by zmiana była sensowna z punktu widzenia założeń projektu i jego estetyki. Pochodzimy do tematu kompleksowo, a zmiany wprowadzamy w całej dokumentacji wielobranżowej- na wszystkich rysunkach i w opisie.

Na etapie koncepcji rozwiejmy Twoje wątpliwości, doradzimy, pomożemy dokonać wyboru. W efekcie dostaniesz projekt typowy dopasowany do własnych potrzeb, wymagający jedynie adaptacji do warunków lokalnych przez architekta adaptującego.


Ile kosztuje wprowadzenie zmian do projektu typowego? Zapoznaj się z naszymi pakietami opisanymi w punkcie 4.


W celu potwierdzenia zakresu zmian, pakietu oraz terminu realizacji najlepiej jest przedstawić je drogą mailową, pisząc jakiego projektu dotyczą i (najlepiej w punktach) jakie zmiany w stosunku do projektu bazowego przedstawionego na stronie chcą Państwo wprowadzić. Możesz też zaznaczyć je na szkicu lub rzucie projektu ze sklepu. Jeśli nie jesteś pewien co do wyboru rozwiązania, opisz problem, a my zaproponujemy rozwiązanie. (Najlepiej e-mail: zmiany@projektstodola.pl tytułem Wprowadzenie zmian do projektu).


Niektóre projekty ze zmianami, które wprowadziliśmy możesz zobaczyć tutaj: Stodoły po zmianach. Każdy z tych projektów możesz także zakupić, w tym celu skontaktuj się z nami telefonicznie lub mailowo.

Najszybszą drogą jest wprowadzenie zmian na etapie adaptacji projektu przez architekta adaptującego. Zawsze możemy doradzić Ci jak najlepiej wprowadzić funkcjonalność do projektu na jakiej Ci zależy.


Projekt Stodoła może przygotować projekt typowy ze zmianami wg Twoich wytycznych. Zmiany wprowadzamy we wszystkich elementach projektu (rysunkach, opisach, zestawieniach). Znamy nasze projekty najlepiej, dlatego na etapie wprowadzania zmian, doradzamy jak najlepiej pod względem funkcjonalnym i ekonomicznym wprowadzić daną zmianę.

Koszt wprowadzenia zmian w projekcie podzieliliśmy na 3 pakiety w zależności jak bardzo zmiany ingerują w projekt typowy, a co za tym idzie jak dużo pracy i zaangażowania wymagają. Termin realizacji uzależniony jest od naszej bieżącej pracy i zazwyczaj wynosi ok. 7-10 tygodni.

 


Przykładowe koszty wprowadzenia zmian to:

  • PAKIET MAŁYCH ZMIAN to koszt 2 400 zł

  • PAKIET ŚREDNICH ZMIAN to koszt 5 800 zł

  • PAKIET DUŻYCH ZMIAN to koszt 8 000 zł

Wszystkie zmiany niosą ze sobą ingerencję także w inne branże, czyli konstrukcję, instalacje sanitarne i elektryczne. Projekt jest aktualizowany w zakresie każdej z tej branż, wprowadzamy je na każdym rysunku każdej branży- architekturze, konstrukcji, sanitarnej i elektrycznej. Co za tym idzie, otrzymują Państwo produkt dostosowany do swoich potrzeb zgodnie z naszym standardem projektu typowego, (tutaj przykład: Co zawiera projekt) do dalszej adaptacji przez lokalnego architekta. (Adaptacja polega na dostosowaniu typowego projektu do konkretnej działki m.in. – jej położenia, ukształtowania czy warunków gruntowych- o adaptacji projektu możesz więcej przeczytać więcej tutaj).

Wprowadzanie zmian odbywa się etapowo. Na etapie wprowadzania zmian doradzamy również jak najlepiej wprowadzić zmianę, by układ był funkcjonalny, a budowa optymalna. Najpierw przygotowujemy koncepcję zmian na rysunkach architektonicznych (rzuty) i przesyłamy do akceptacji, wprowadzamy ew. uwagi, następnie po akceptacji nanosimy zmiany na wszystkich rysunkach wszystkich branż i części opisowej.


W celu potwierdzenia zakresu zmian, pakietu oraz terminu realizacji najlepiej jest przedstawić je drogą mailową, pisząc jakiego projektu dotyczą i (najlepiej w punktach) jakie zmiany, w stosunku do projektu bazowego przedstawionego na stronie, chcą Państwo wprowadzić. Możesz też zaznaczyć je na szkicu lub rzucie projektu ze sklepu. Jeśli nie jesteś pewien co do wyboru rozwiązania, opisz problem, a my zaproponujemy rozwiązanie. (Najlepiej e-mail: zmiany@projektstodola.pl tytułem Wprowadzenie zmian do projektu).

W celu potwierdzenia zakresu zmian, pakietu oraz terminu realizacji najlepiej jest przedstawić je drogą mailową, pisząc jakiego projektu dotyczą i (najlepiej w punktach) jakie zmiany w stosunku do projektu bazowego przedstawionego na stronie chcą Państwo wprowadzić. Możesz też zaznaczyć je na szkicu lub rzucie projektu ze sklepu. Jeśli nie jesteś pewien co do wyboru rozwiązania, opisz problem, a my zaproponujemy rozwiązanie. (Najlepiej e-mail: zmiany@projektstodola.pl tytułem Wprowadzenie zmian do projektu).


Po zaakceptowaniu pakietu i terminu wykonania możesz złożyć zamówienie w Sklepie poprzez dodanie do koszyka wybranego Projektu Typowego a następnie Produktu pod nazwą „Indywidualne zmiany w Projekcie Typowym”. Produkt “Indywidualne zmiany w projekcie typowym” można zamówić tylko razem z Projektem Typowym. Dlatego należy dodać do koszyka te dwie pozycje.

W “Indywidualnych zmianach w projekcie typowym” należy wypełnić pola- opis, data wykonania i cenę, zgodnie z ustaleniami we wcześniejszej korespondencji mailowej. Czas realizacji jest liczony od zamówienia wraz z opłatą faktury.

Procedura zakupu jest opisana także w regulaminie.


Jednocześnie przypominamy, że najprostszą drogą jest wprowadzenie zmian na etapie adaptacji przez architekta adaptującego.

Praktycznie w każdym naszym projekcie garaż jest dostawiony do głównej bryły budynku i można go bezproblemowo usunąć lub przesunąć w inne miejsce. Można też zmienić jego wymiary. Wydłużenie garażu jest stosunkowo łatwe, jego poszerzenie wymaga sprawdzenia i ewentualnego wzmocnienia konstrukcji dachu. Taką zmianę można bezproblemowo wprowadzić na etapie adaptacji.

 

Napisz komentarz

This site uses Akismet to reduce spam. Learn how your comment data is processed.