Projekt Stodoła L Compact +
Rodzina L [209-270m2]6100 zł (z VAT)


- Powierzchnia użytkowa:127,88 m²
- Powierzchnia garażu:39,06 m²
- Minimalne wymiary działki:19,74 x 28,615 m
- Powierzchnia zabudowy:159,31 m²
- Wysokość budynku w kalenicy:8,48 m
- Kąt nachylenia dachu:45°
Szukasz podobnego projektu Zobacz -> PROJEKTY PO ZMIANACH, lub skontaktuj sie z nami-> KONTAKT
W cenie projektu zyskujesz:
PROJEKTY ZOPTYMALIZOWANE POD WZGLĘDEM KONSTRUKCJI I ENERGOOSZCZĘDNOŚCI
750 zł0 zł
PROJEKT PRZYSTOSOWANY DO POWIETRZNEJ POMPY CIEPŁA i OGRZEWANIA PODŁOGOWEGO
750 zł0 zł
PROJEKT z wentylacją mechaniczną z rekuperacją
15 zł0 zł
BEZPŁATNA DOSTAWA KURIEREM
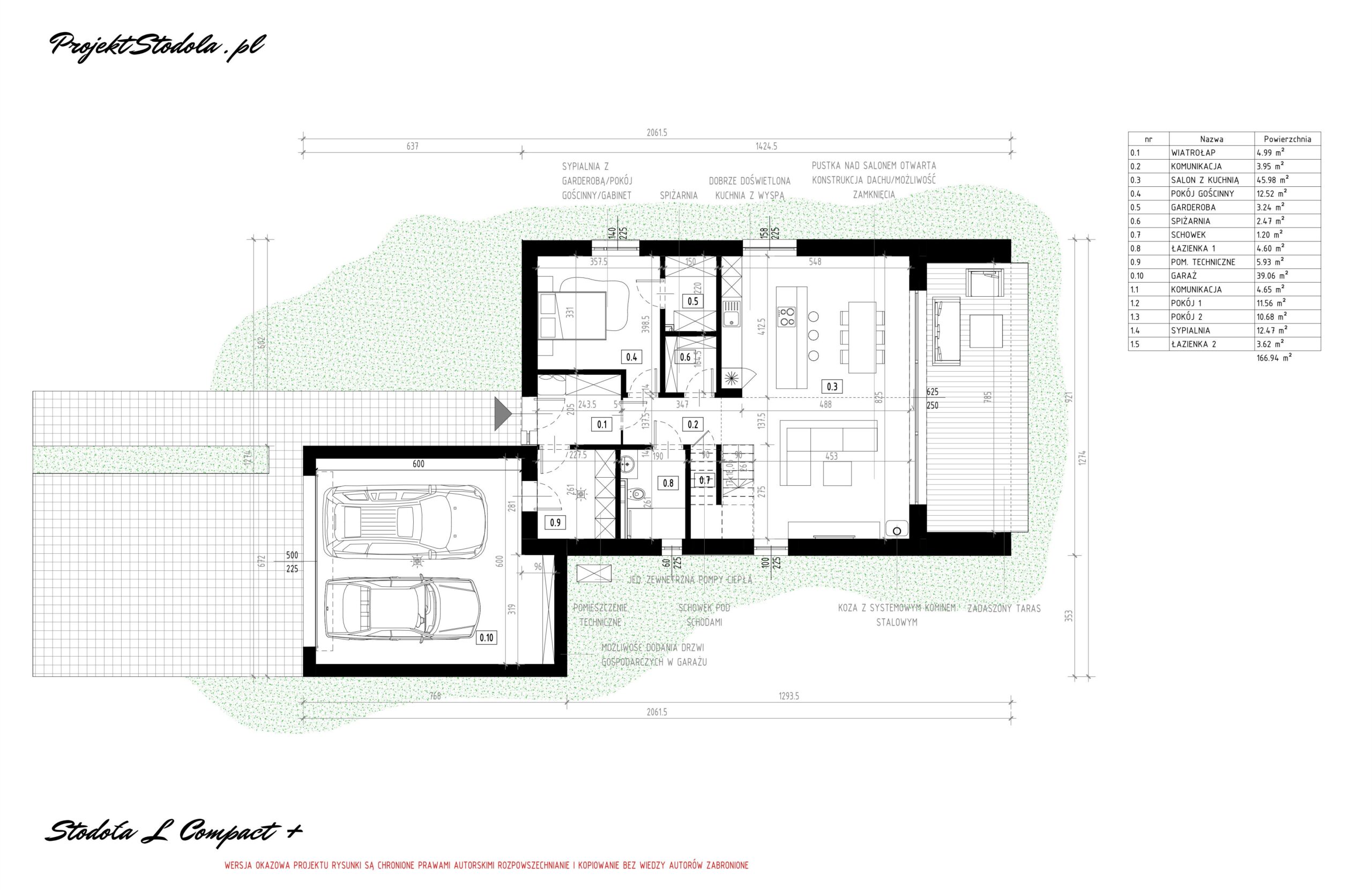
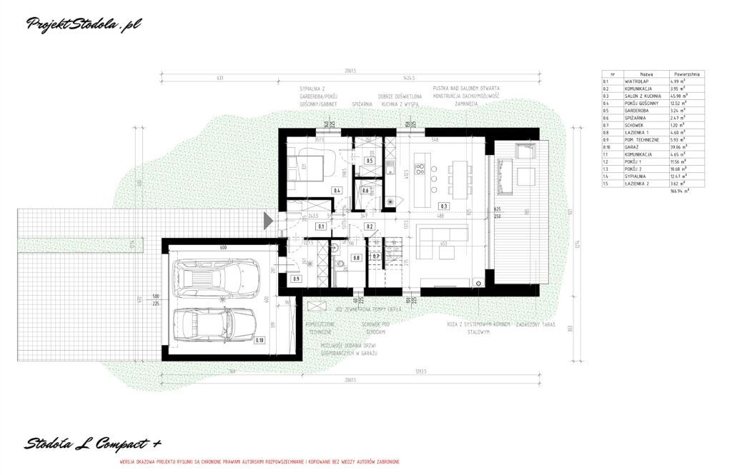
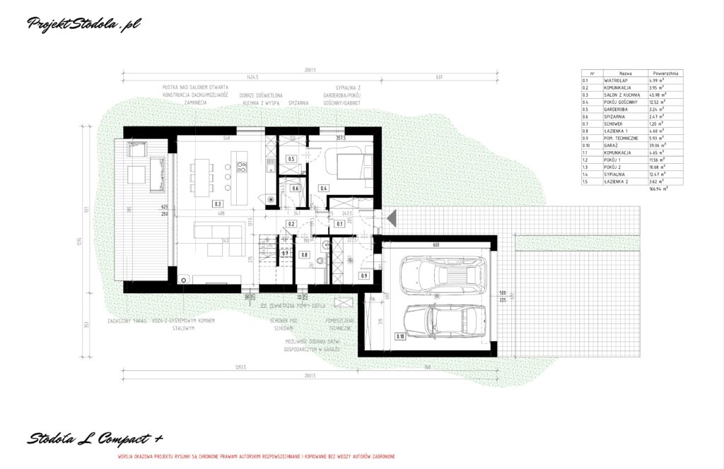
RZUTY:
- PARTER 123,96 m²
- KONDYGNACJA PODZIEMNA 47,16 m²
SCHEMATYCZNE PRZEKROJE:
- STODOŁA L COMPACT PRZEKRÓJ PRZEZ SCHODY
- STODOŁA L COMPACT PRZEKRÓJ PRZEZ SALON
FUNKCJA:
Stodoła L Compact + to alternatywny wariant naszej najmniejsza wersja Stodoły L. W małej formie budynku udało się umieścić bardzo funkcjonalny układ z kilkoma pokojami. Budynek posiada prosty, czytelny układ funkcjonalny z wejściem od strony ściany szczytowej. W strefie wejściowej znajduje się wygodny wiatrołap połączony za pośrednictwem pomieszczenia technicznego z dwustanowiskowym garażem. Całość rozplanowana jest na jednej osi komunikacyjnej zakończonej dużym, przestrzennym salonem z dużym przeszkleniem zapewniającym połączenie z działką i tarasem. W pierwszej części domu zlokalizowano pokój z garderobą. W centralnej części rzutu usytuowano spiżarnię oraz łazienkę. Na końcu budynku znajduje się otwarta kuchnia połączona z jadalnią i salonem w tej przestrzeni znajdują się również wyeksponowane schody na poddasze. Nad strefą wypoczynkową otwarto przestrzeń na pełną wysokość – do konstrukcji dachu. Szklana fasada, otwierająca widok na działkę, podzielona jest na dwie części. Umożliwia to montaż na dolnej jej części żaluzji fasadowych. Nad górną częścią fasady wysunięty dach ogranicza penetrację promieni słonecznych oraz tworzy zadaszenie nad tarasem. Obudowanie tarasu pozwala także na prywatność w przypadku niewielkiej odległości do bocznych granic działki i sąsiedniej zabudowy oraz osłania przed wiatrem.
Z korytarza komunikacyjnego schodami (otwartymi na salon) możemy dostać się na poddasze. Na poddaszu znajduje się 3 pokoje i jedna łazienka. Pokój od strony frontowej posiada okno w ścianie szczytowej budynku, sypialnia na drugim końcu korytarza doświetlona jest częścią szklanej fasady. W łazience znajduje się okno połaciowe. Jest możliwość bezproblemowego zamknięcia pustki w salonie i uzyskania czwartego pokoju.
Funkcjonalnie można zrezygnować z bryły garażu pozostawiając sam budynek w swojej prostej kompaktowej formie. Budynek może pełnić funkcje mieszkalną, lub z powodzeniem być obiektem weekendowym lub na wynajem.
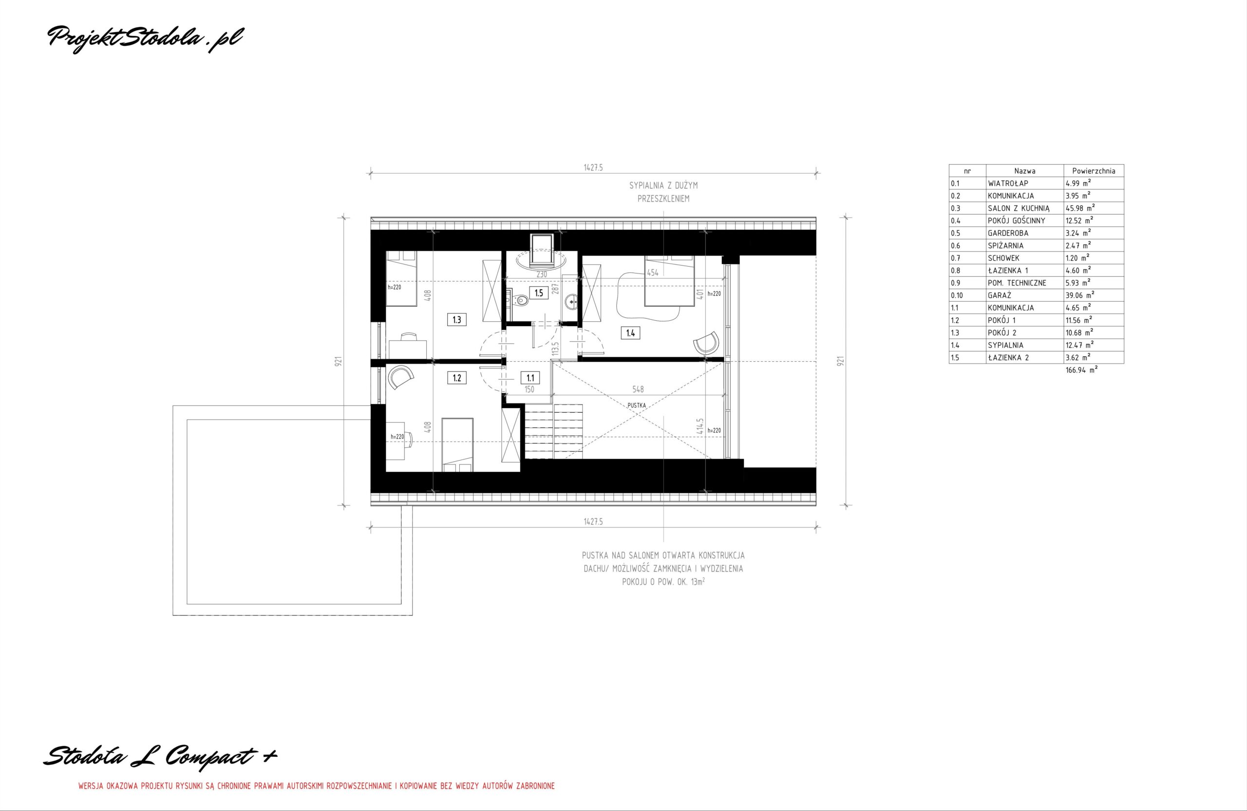
RZUTY:
- PARTER 123,96 m²
- PODDASZE 42,98 m²
SCHEMATYCZNE PRZEKROJE:
- STODOŁA L COMPACT LUSTRO PRZEKRÓJ PRZEZ SCHODY
- STODOŁA L COMPACT LUSTRO PRZEKRÓJ PRZEZ SALON
FUNKCJA:
Stodoła L Compact + to alternatywny wariant naszej najmniejsza wersja Stodoły L. W małej formie budynku udało się umieścić bardzo funkcjonalny układ z kilkoma pokojami. Budynek posiada prosty, czytelny układ funkcjonalny z wejściem od strony ściany szczytowej. W strefie wejściowej znajduje się wygodny wiatrołap połączony za pośrednictwem pomieszczenia technicznego z dwustanowiskowym garażem. Całość rozplanowana jest na jednej osi komunikacyjnej zakończonej dużym, przestrzennym salonem z dużym przeszkleniem zapewniającym połączenie z działką i tarasem. W pierwszej części domu zlokalizowano pokój z garderobą. W centralnej części rzutu usytuowano spiżarnię oraz łazienkę. Na końcu budynku znajduje się otwarta kuchnia połączona z jadalnią i salonem w tej przestrzeni znajdują się również wyeksponowane schody na poddasze. Nad strefą wypoczynkową otwarto przestrzeń na pełną wysokość – do konstrukcji dachu. Szklana fasada, otwierająca widok na działkę, podzielona jest na dwie części. Umożliwia to montaż na dolnej jej części żaluzji fasadowych. Nad górną częścią fasady wysunięty dach ogranicza penetrację promieni słonecznych oraz tworzy zadaszenie nad tarasem. Obudowanie tarasu pozwala także na prywatność w przypadku niewielkiej odległości do bocznych granic działki i sąsiedniej zabudowy oraz osłania przed wiatrem.
Z korytarza komunikacyjnego schodami (otwartymi na salon) możemy dostać się na poddasze. Na poddaszu znajduje się 3 pokoje i jedna łazienka. Pokój od strony frontowej posiada okno w ścianie szczytowej budynku, sypialnia na drugim końcu korytarza doświetlona jest częścią szklanej fasady. W łazience znajduje się okno połaciowe. Jest możliwość bezproblemowego zamknięcia pustki w salonie i uzyskania czwartego pokoju.
Funkcjonalnie można zrezygnować z bryły garażu pozostawiając sam budynek w swojej prostej kompaktowej formie. Budynek może pełnić funkcje mieszkalną, lub z powodzeniem być obiektem weekendowym lub na wynajem.
Alternatywna wersja najmniejszy projekt z rodziny L. W kompaktowym budynku udało się umieścić bardzo funkcjonalny układ. Niewielki, ale niczego mu nie brakuje! W projekcie Stodoła L Compact+ , co do centymetra, umieściliśmy wszystkie niezbędne funkcje. Powstał dom przemyślany w taki sposób, że jego niewielkie gabaryty nie stanowią żadnej przeszkody w komfortowym użytkowaniu. Jego prosta bryła mieści w sobie aż cztery sypialnie ! Do budynku mieszkalnego dostawić można garaż w taki sposób, że możliwe będzie wejście do mieszkania przez przedsionek. W naszym projekcie garaż pomieści dwa auta, jednak niezwykle łatwa jest zmiana garażu na jednostanowiskowy czy na przykład zupełną rezygnację z garażu. Na parterze znajdziemy sypialnie master, łazienkę, spiżarnię i wygodny pokój dzienny z aneksem kuchennym. Otwarty strop nad częścią dzienną sprawia, że staje się optycznie jeszcze większa i daje wrażenie przestronności. Na piętrze trzy sypialnie dzielą wspólną łazienkę. Wchodzi się do nich z antersoli, z której jest świetny widok na salon i efektowne przeszklenia. Jeżeli jednak bardziej niż na efekcie zależy nam na metrażu, to zamiast pustki można zaaranżować miejsce na kolejny pokój!
STANDARD BUDYNKU I TECHNOLOGIA BUDOWY
Budynek zaprojektowano w standardzie energooszczędnym zgodnym z Warunkami technicznymi 2021 – ogrzewanie podłogowe za pośrednictwem powietrznej pompy ciepła, wentylacja mechaniczna z rekuperacją.
ŚCIANY MUROWANE: dwuwarstwowe- bloczek z betonu komórkowego + wełna skalna, ściany działowe silikatowe
ELEWACJA: biały tynk, jasna deska drewniana, blacha, ciemny tynk
STROP: strop monolityczny
SCHODY: żelbetowe
DACH: dachówka betonowa
Dodatkowo prosty, dwuspadowy dach pozwala na montaż instalacji fotowoltaicznej w ilości nawet do 34 paneli na jednej połaci, co generuje moc ok. 11 kW. Na wizualizacjach zaprezentowano 24 panele generujących ok. 8 kW mocy.
BRYŁA:
Kompaktowy, prosty budynek dwukondygnacyjny typu nowoczesna stodoła, na planie prostokąta, przykryty dwuspadowym, symetrycznym dachem o kącie nachylenia 45°. Do bryły głównej budynku, od strony wjazdowej, dostawiono bryłę garażu z płaskim dachem. Konstrukcyjnie można bezproblemowo zrezygnować z garażu. Budynek utrzymany w jednolitej i minimalistycznej stylistyce. Przełamaniem jej jest duża, szklana fasada doświetlająca część dzienną z wysuniętym dachem od strony tylnej ściany szczytowej. Fasada podzielona jest na dwie części umożliwiając montaż w dolnej części żaluzji fasadowych. Nad górną częścią wysunięty dach ogranicza penetrację promieni słonecznych oraz tworzy zadaszenie nad tarasem.
Budynek posiada bardzo prosty układ konstrukcyjny opierający się na trzech osiach, prosty dwuspadowy dach i betonowy strop. Sprawia to, że dom jest łatwy i ekonomiczny w budowie.
Nowoczesna elewacja budynku wykończona biały tynkiem, akcentowo zastosowano elementy drewniane jasne opalane. Technika opalania pozwala ochronić drewno przed zewnętrznymi czynnikami atmosferycznymi. Budnyk również można wykonać w wersji “miejskiej” czyli białym tynku. Istnieje możliwość dopasowania materiałów tak, by nawiązać do lokalnego kontekstu lub indywidualnych upodobań inwestora upodobań inwestora.
Projekt bazowy dopasowany jest do działek z widokiem od strony tylnej ściany szczytowej. Poszczególne warianty zostały przedstawione poniżej. Urbanistycznie budynek najlepiej pasuje do działki z wjazdem od zachodu, wschodu, północy wtedy dłuższa połać budynku skierowana jest w kierunku południowym, dogodnie dla lokalizacji fotowoltaiki.
MINIMALNE WYMIARY DZIAŁKI:
Budynek można usytuować w kilku wariantach. Podstawowy Wariant jest przy wjeździe od strony zachodniej oraz północnej (Wariant 1) . Jest możliwość likwidacji garażu, uzyskując prostą minimalistyczną bryłę (Wariant 2 możliwy do realizacji jako zmiany w wariancie podstawowym). Wariant 3 to zmiana lokalizacji garażu na ścianę boczną budynku dedykowany działkom, które są szerokie, stosunkowo krótkie. W projekcie w zależności od wielkości działki jest możliwość także rezygnacji z garażu lub jego przemieszczenie na boczną ścianę budynku.
- WARIANT 1 Wjazd od zachodu i północy, minimalne wymiary działki 27,835×19,80m*
- WARIANT 2 Wjazd od zachodu i północy, bez garażu minimalne wymiary działki 21,435×17,25m*
- WARIANT 3 Wjazd od zachodu i północy, minimalne wymiary działki 22,335x 22,65m*
*powyższe warianty obrazują minimalne wymiary działki, należy jednak uwzględnić również warunki lokalne- warunki zabudowy lub ograniczenia wynikające z MPZP i lokalnego sąsiedztwa
MINIMALNE WYMIARY DZIAŁKI:
Budynek można usytuować w kilku wariantach. Podstawowy Wariant jest przy wjeździe od strony zachodniej oraz północnej (Wariant 1) . Jest możliwość likwidacji garażu, uzyskując prostą minimalistyczną bryłę (Wariant 2 możliwy do realizacji jako zmiany w wariancie podstawowym). Wariant 3 to zmiana lokalizacji garażu na ścianę boczną budynku dedykowany działkom, które są szerokie, stosunkowo krótkie. W projekcie w zależności od wielkości działki jest możliwość także rezygnacji z garażu lub jego przemieszczenie na boczną ścianę budynku.
- WARIANT 1 Wjazd od wschodu i północy, minimalne wymiary działki 27,835×19,80m*
- WARIANT 2 Wjazd od wschodu i północy, bez garażu minimalne wymiary działki 21,435×17,25m*
- WARIANT 3 Wjazd od wschodu i północy, minimalne wymiary działki 22,335x 22,65m*
*powyższe warianty obrazują minimalne wymiary działki, należy jednak uwzględnić również warunki lokalne- warunki zabudowy lub ograniczenia wynikające z MPZP i lokalnego sąsiedztwa
KOSZT BUDOWY
Dobrze wiemy, jak w dzisiejszych czasach trudno jest oszacować koszty budowy, szczególnie, że potrafią się one zmieniać z miesiąca na miesiąc. Bardzo dbamy o to, by nasze kosztorysy były jak najbardziej dokładne. Wyceniamy projekty bazując na sprawdzonych technologiach i dobrych materiałach, gdyż one gwarantują trwałość budynku i bezawaryjne funkcjonowanie. Nie zaniżamy cen. Projektując stosujemy proste rozwiązania, bez “ozdobników”, by nasze projekty z założenia nie były drogie w budowie, miały duże możliwości etapowania i wariantowania pracy.
Do stodoły M znajdziesz na blogu całe zestawienie wszystkich materiałów i poniesione przez nas koszty budowy, sprawdź także wpis o kosztach budowy z 2022 lub inne nasze realizacje. Możesz także skontaktować się z innymi inwestorami, którzy często są aktywni na naszej grupie fb- Projekt Stodoła- budowa domu typu stodoła.
KOSZTORYS UPROSZCZONY:
STAN ZERO: 93 433 zł średnie koszty | 59 489 zł minimalne koszty
zawiera prace ziemne, fundamenty, płytę denną posadzki.
STAN SUROWY ZAMKNIĘTY: 386 872 zł średnie koszty | 248 679 zł minimalne koszty
zawiera konstrukcję, strop, dach, stolarkę okienną i drzwiową zewnętrzną (oraz powyższy STAN ZERO)
STAN DEWELOPERSKI bez elewacji : 766 916 zł średnie koszty | 417 724 zł minimalne koszty
ELEWACJA: 117 049 zł średnie koszty | 59 340 zł minimalne koszty
zawiera tynki, posadzki, izolację termiczną, elewacje z materiałami wg wizualizacji, instalacje: sanitarne, elektryczne, wentylacji mechanicznej, rekuperator, pompę ciepła (oraz powyższy STAN SUROWY ZAMKNIĘTY)
- kwoty netto, poziom cen- III kwartał 2024 , wykończenie zgodnie z projektem i wizualizacjami. Kosztorys przygotowywany jest metodą wskaźnikową na bazie opracowywanych kosztorysów szczegółowych dla wybranych projektów oraz tabeli SEKOCENBUD
- średnie koszty budowy to koszty systemem zleconym- uwzględniają koszty robocizny; minimalne koszty budowy to koszty system gospodarczym- przy założeniu dużego udziału pracy własnej
- elewacja została wyceniona osobno zgodnie z projektem, materiały zgodnie z wizualizacjami- przy zastosowaniu innych materiałów np. tynku, cena może się znacznie zmniejszyć
BUDOWA DOMU STODOŁA & PREFABRYKOWANA STODOŁA
Zależy Ci na czasie, chciałbyś zbudować Stodołę nawet w 4-5 miesięcy? Jest to możliwe w przypadku budowy domu z prefabrykatu.
Budowa z prefabrykatów jest droższa o ok. 15-25% w stosunku do kompleksowej, tradycyjnej budowy.
Co zyskujesz w zamian? Między innymi:
- ekologiczny dom z naturalnych materiałów
- szybką realizację domu nawet w 4-5 miesięcy, a co za tym idzie także odporność na niestabilne ceny na rynku;
- małe zaangażowanie w budowę- bez ogranizowania ekip i materiałów;
- większą powierzchnię użytkową budynku dzięki mniejszej grubości ścian;
- dom posadowiony na płycie fundamentowej
- opieka i doradztwo doświadczonej kadry
Projekt Stodoła współpracuje z firmami wykonawczymi w technologii prefabrykatu keramzytowego (tylko na obszarze w promieniu 100km od Wrocławia).
Jeśli interesuje Cię ten temat napisz do nas maila z informacją odnośnie lokalizacji inwestycji (tylko z okolic Wrocławia) na: prefabrykat@projektstodola.pl
2. Dobierz dodatki do projektu
Dodatki do projektu
Opisy informacyjne dodatków 
Wersja elektroniczna
wersja elektroniczna projektu w .pdf Bardzo przydatna na etapie wycen oraz konsultacji. Wersja elektroniczna zawiera wszystkie rysunki projektu w formacie .pdf, nie zawiera części opisowej projektu.
Koszt 300 zł
Dodatkowy egzemplarz projektu
dodatkowy egzemplarz projektu W standardzie otrzymujesz 3 egzemplarze projektu architektoniczno- budowlanego oraz 2 egzemplarze projektu technicznego. 3 egzemplarze PAB są składane do urzędu. Jeden egzemplarz projektu technicznego musi zostać przekazany kierownikowi budowy przed rozpoczęciem budowy. Drugi egzemplarz zazwyczaj trafia na budowę. Warto więc dodać do koszyka ten produkt, aby mieć zawsze pod ręką swój egzemplarz.
Koszt 300 zł
Podkład do projektowania wnętrz w .dwg
podkłady do projektowania wnętrz w .dwg To uproszczone rysunki w formacie .dwg (parter, piętro, przekrój, elewacje) przydatne w wielu momentach, ale szczególnie ważne przy projektowaniu wnętrz.
Koszt 300 zł
Dodatkowe wizualizacje
dodatkowe wizualizacje Jeżeli zastanawiasz się nad innym materiałem na elewacji możesz zamówić alternatywną wersję wizualizacji wg swoich potrzeb. Są to sumarycznie 2 ujęcia- 1 od frontu i 1 od ogrodu z innymi materiałami, w rozszerzeniu .jpg. Dotyczy tylko projektu typowego bez zmian. Czas realizacji do 2,5 tygodnia. W polu Uwagi opisz jakie materiały chciałbyś zobaczyć w swojej wersji elewacji.
Koszt 750 zł
Model 3d budynku w .skp
model 3d budynku w .skp Chcesz zwiedzić budynek przed jego budową, by wszystko dokładnie rozplanować? Dajemy Ci taką możliwość. Jest to model budynku w rozszerzeniu .skp z podstawowym umeblowaniem. Na pewno przyda się przy projektowaniu wnętrz.
Koszt 1150 zł
Kosztorys
kosztorys z dokładnym spisem materiałów i przedmiarem, bardzo pomocny na etapie wykonywania ofert i zamawiania materiałów. Format .pdf. (dostępny dla wybranych projektów)
Koszt 450 zł
Dobór i projekt fotowoltaiki
dobór i projekt fotowoltaiki Wszystkie nasze projekty są przystosowane do montażu instalacji fotowoltaicznej. Jednak sama fotowoltaika to indywidualny temat, bardzo zależny od Twojej lokalizacji oraz zapotrzebowania na energię. Ten projekt uwzględni wszystkie Twoje wytyczne- lokalizacyjne, jak i również założenia dotyczące np. stacji ładowania aut elektrycznych. Czas realizacji ok. 2,5 tygodnia. Po zamówieniu prześlij do nas planowaną lokalizację budynku oraz Twoje zapotrzebowanie na energię.
Koszt 800 zł
Smart Home konsultacja ze specjalistą

Zagadnienia z tematyki Smart Home poruszane na spotkaniu lub spotkaniu online
- Smart Home a zwykła instalacja – podstawowe różnice
- Systemy Smart
- Home – przewodowe i bezprzewodowe – szczerze, bez mitów
- Sterowanie oświetleniem
- Zacienianie – rolety, żaluzje, karnisze elektryczne
- Oszczędność energetyczna – zagadnienia związane ze sterowaniem ogrzewaniem i wentylacją – czy to się opłaca?
- Systemy audio multiroom
- Bezpieczeństwo – alarm i monitoring, kontrola dostępu
- Smart Gardens – inteligentne ogrody
- Po spotkaniu – sporządzenie wstępnego kosztorysu
Koszt 615 zł
Projekt wykonawczy ogrzewania podłogowego z pompą ciepła
Projekty wykonawczy podłogowego z pompą ciepła Wszystkie nasze projekty zawierają ogrzewanie z pompy ciepła powietrznej i instalację ogrzewania podłogowego w standardzie projektu technicznego. Projekt wykonawczy zawiera:
- dokładnie rozrysowane rozstawy pętli grzewczych.
- dobór konkretnych materiałów i średnic
- zestawienie materiałów z kosztorysem
Czas realizacji ok. 2,5 tygodnia. Po zamówieniu prześlij do nas planowaną lokalizację budynku oraz materiał wykończeniowe podłogi.
Koszt 900 zł
Projekt wykonawczy wentylacji mechanicznej z rekuperacją
Projekty wentylacji mechanicznej z rekuperacją Wszystkie nasze projekty wentylacje mechaniczną zawierają w standardzie projektu technicznego na schemacie. Projekt wykonawczy zawiera:
- dokładnie rozrysowane układ wentylacji
- dobór konkretnych materiałów i średnic
- zestawienie materiałów z kosztorysem
Czas realizacji ok. 2,5 tygodnia. .
Koszt 900 zł
Połączenie instalacji z kominkiem z płaszczem wodnym
Połączenie instalacji z kominkiem z płaszczem wodnym
Czas realizacji ok. 2,5 tygodnia. .
Koszt 400 zł
Wersja elektroniczna
300 zł (z VAT)
Podkłady do projektowania wnętrz
300 zł (z VAT)
Dodatkowy egzemplarz projektu
300 zł (z VAT)
Dodatkowe wizualizacje
750 zł (z VAT)
Ogrzewanie gazowe
1000 zł (z VAT)
Płyta fundamentowa
1800 zł (z VAT)
Model 3d budynku w .skp
1150 zł (z VAT)
dobór i projekt fotowoltaiki
800 zł (z VAT)
Smart Home Konsultacja ze specjalistą
615 zł (z VAT)
Projekt wykonawczy ogrzewania podłogowego z pompą ciepła
900 zł (z VAT)
Projekt wykonawczy wentylacji mechanicznej z rekuperacją
900 zł (z VAT)
Połączenie instalacji z kominkiem z płaszczem wodnym
400 zł (z VAT)
Makieta 3d budynku (duża)
950 zł (z VAT)
Makieta 3d budynku (mała)
550 zł (z VAT)
Pakiet zawiera:
- Dodatkowy egzemplarz projektu
- Wersję elektroniczną
600 zł520 zł (z VAT) Oszczędzasz 80 zł
Pakiet zawiera:
- Dodatkowy egzemplarz projektu
- Wersję elektroniczną
- Podkłady do projektowania wnętrz
900 zł690 zł (z VAT) Oszczędzasz 210 zł
Pakiet zawiera:
- Dodatkowy egzemplarz projektu
- Wersję elektroniczną
- Podkłady do projektowania wnętrz
- Model 3d budynku w .skp
1900 zł1330 zł (z VAT) Oszczędzasz 570 zł
CO ZAWIERA PROJEKT?
W ramach zamówionego Produktu obejmującego Projekt Typowy Kupujący otrzymuje:
- 3 egzemplarze projektu ARCHITEKTONICZNO-BUDOWALNEGO i 2 egzemplarze projektu TECHNICZNEGO wraz z elementami wykonawczymi konstrukcji.
Szczegółowy opis zawartości projektu wraz z przykładowymi rysunkami możesz zobaczyć tutaj: “co zawiera projekt?”
- potwierdzenie kwalifikacji zawodowych projektantów i ich przynależności do izby zawodowej w okresie opracowywania dokumentacji.
- katalog informacyjny ”Projekt Stodoła Rekomenduje„ o zalecanych produktach i technologiach
W zależności od specyfiki i przeznaczenia Obiektu Budowlanego zawartość Projektu Typowego może nieznacznie się różnić, przy czym różnice te wynikają wyłącznie z charakteru Obiektu Budowlanego oraz wymogów Prawa Budowlanego.
Projekt Typowy umożliwia uzyskanie pozwolenia na budowę po adaptacji do warunków lokalnych.
Do Projektu Typowego dokupić możesz dodatki takie m.in. jak:
– wersja elektroniczna części rysunkowej projektu w formacie .pdf
– podkłady do projektowania wnętrz .dwg
– dodatkowe egzemplarze projektu
– dodatkowe fotorealistyczne wizualizacje
– projekt instalacji domu inteligentengo
– dla wybranych projektów także szczegółowy kosztorys
Opis dodatków znajdziesz w zakładce DODATKI na stronie wybranego projektu. Dodatki zakupić możesz także w korzystnych cenowo PAKIETACH. Zapoznaj się z nimi po dodaniu do koszyka wybranego przez siebie Projektu.
ADAPTACJA PROJEKTU
Każdy projekt typowy umożliwia uzyskanie pozwolenia na budowę po adaptacji do warunków lokalnych przez wybranego przez Inwestora architekta adaptującego.
Adaptujący wykonuje projekt zagospodarowania terenu i dostosowuje projekt typowy do ustaleń Miejscowego Planu Zagospodarowania Przestrzennego (lub decyzji o Warunkach Zabudowy w przypadku braku planu), do terenu, do wymiarów działki, usytuowania względem stron świata, ukształtowania terenu, nośności gruntu, strefy klimatycznej i głębokości przemarzania, potrzeb przyszłych mieszkańców oraz aktualnie obowiązujących norm i przepisów. Nawet jeśli nie wprowadza on zmian do projektu typowego, podpisując dokumentację, staje się autorem projektu budowlanego i bierze odpowiedzialność za prawidłowość i kompletność dokumentacji.
Projektant dokonujący Adaptacji oraz sporządzający Projekt Budowlany, który zostanie wykorzystany w Procesie Budowlanym, jest zobowiązany w szczególności:
- dokonać analizy zgodności Projektu Standardowego z lokalnymi uwarunkowaniami miejscowego planu zagospodarowania przestrzennego lub warunków zabudowy i zagospodarowania terenu;
- nanieść na oryginale Projektu Standardowego trwałą techniką graficzną w kolorze czerwonym projektowany zakres zmian w zakresie rysunkowym i tekstowym;
- wykonać adaptację fundamentów do lokalnych warunków gruntowych;
- wykonać sprawdzenie konstrukcji całego Obiektu Budowlanego w zakresie jego dostosowania do lokalnych warunków, takich jak: np. gruntowych i obciążeń normatywnych wynikających ze strefy klimatycznej, bez możliwości wprowadzania zmian kształtu i wymiarów zewnętrznych Obiektu Budowlanego, bez zmiany kąta nachylenia połaci dachowej, wysokości ścian i wymiarów okien;
- dostosować instalację wodno-kanalizacyjną do warunków miejscowych na podstawie uzgodnionego z dostawcą wody projektu przyłączy;
- dostosować instalację wodno-kanalizacyjną w odniesieniu do instalacji i przyłącza gazu;
- wykonać adaptację projektowanej charakterystyki energetycznej wraz z analizą alternatywnych/odnawialnych źródeł ciepła dostosowująca do uwarunkowań na działce i wykonanych ewentualnych zmian w Projekcie Standardowym;
- podpisać Projekt Budowlany jako autor adaptacji Obiektu Budowlanego do konkretnej lokalizacji z podaniem rodzaju i numeru posiadanych uprawnień projektowych;
- wykonać sprawdzenie i adaptację Projektu Budowlanego oraz projektowanej charakterystyki energetycznej dostosowującą do zmian w obowiązujących przepisach i normach, jakie wprowadzono po dacie wykonania Projektu Standardowego;
- wykonać analizę obszaru oddziaływania Obiektu Budowlanego na sąsiednie nieruchomości.
Projekt zagospodarowania działki z częścią opisową należy trwale połączyć z Projektem Budowlanym lub zamieścić w osobnej oprawie: tomie (teczce), stanowiącym z zakupionym Projektem Typowym komplet Projektu Budowlanego.
Obecnie pracujemy nad mapą współpracujących z nami pracowni i architektów adaptujących. Ale być może już dziś będziemy mogli Ci pomóc- wyślij zapytanie na e-mail: info@projektstodola.pl tytułem „Polecenie architekta adaptującego”
Bardzo często w naszych projektach stosujemy fragmentarycznie dachy płaskie nad garażami lub elementami dodatkowymi. W momencie jeśli Miejscowy Plan Zagospodarowania terenu lub Warunki zabudowy obowiązujące na Waszej działce, nie dopuszczają dachów płaskich. Rozwiązaniem może być adaptacja-zaprojektowanie tarasu na dachu płaskim z wyjście z pomieszczeń użytkowych (pokoi) lub poprzez schody z gruntu. Wyjście z dachu może być realizowane poprzez okna połaciowe typu tarasowego. Jest to rozwiązanie popularne i powszechnie stosowane.
Praktycznie w każdym naszym projekcie garaż jest dostawiony do głównej bryły budynku i można go bezproblemowo usunąć, lub przesunąć w inne miejsce. Można też zmienić jego wymiary. Wydłużenie garażu jest stosunkowo łatwe, jego poszerzenie wymaga sprawdzenia i ewentualnego wzmocnienia konstrukcji dachu. Taką zmianę można bezproblemowo wprowadzić na etapie adaptacji.
Jeśli jednak nadal nie znalazłeś odpowiadającego swoim potrzebom projektu przeczytaj poniższe informacje i napisz do nas lub sprawdź stronę USŁUGI.
INDYWIDUALNE ZMIANY
Jeśli jednak chciałbyś wprowadzić indywidualne zmiany w projekcie najszybszą drogą jest wprowadzenie zmian na etapie adaptacji projektu przez architekta adaptującego. Zawsze możemy doradzić Ci jak najlepiej wprowadzić funkcjonalność do projektu na jakiej Ci zależy.
Projekt Stodoła może przygotować projekt typowy ze zmianami wg Twoich wytycznych. Projekt jest aktualizowany w zakresie każdej z tej branż, wprowadzamy je na każdym rysunku każdej branży- architekturze, konstrukcji, sanitarnej i elektrycznej. Co za tym idzie, otrzymują Państwo produkt w dostosowany do swoich potrzeb zgodnie z naszym standardem projektu typowego, (tutaj przykład: Co zawiera projekt) do dalszej adaptacji przez lokalnego architekta. (Adaptacja polega na dostosowaniu typowego projektu do konkretnej działki m.in. – jej położenia, ukształtowania czy warunków gruntowych- o adaptacji projektu możesz więcej przeczytać więcej tutaj).
Poniżej znajdziesz odpowiedzi na najczęściej zadawane pytania dotyczące zmian, kosztów ich wprowadzenia oraz przebiegu współpracy:
ZMIANY W PROJEKCIE TYPOWYM
Najszybszą drogą jest wprowadzenie zmian na etapie adaptacji przez architekta adaptującego. Zmiany, które można wprowadzić do projektu typowego bez konieczności uzyskiwania zgody Sprzedawcy to:
- użycie innych materiałów budowlanych na konstrukcję Obiektu Budowlanego (fundamenty, ściany, stropy, schody, więźba dachowa) pod warunkiem zachowania wymagań konstrukcji i ochrony cieplnej Obiektu Budowlanego:
- zmiany usytuowania wewnętrznych ścian działowych, a także otworów drzwiowych wewnątrz Obiektu Budowlanego,
- zmiany usytuowania i geometrii schodów wewnętrznych,
- zmiany wysokości Obiektu Budowlanego (lub rzędnej wysokościowej kalenicy) o 10% (zwiększyć lub zmniejszyć), w szczególności: poziom posadzki parteru nad terenem projektowanym, wysokość kondygnacji parteru, wysokość ścianki kolankowej)
- zmiany kąta nachylenia dachu w zakresie 5 stopni (zwiększyć lub zmniejszyć)
- wykonania podpiwniczenia całości lub części Obiektu Budowlanego,
- zmiany przekroju filarów zewnętrznych i wewnętrznych.
- Wprowadzenie zmiany materiałów wykończeniowych wewnątrz i na zewnątrz Obiektu Budowlanego, a także zmiana kolorystyki zewnętrznej Obiektu Budowlanego, przy zachowaniu dbałości o estetykę.
- Pod warunkiem zachowania prawidłowej kompozycji elewacji (zachowanie wspólnej linii usytuowania otworów okiennych i drzwiowych nad sobą lub obok siebie) oraz zasad konstrukcji Kupujący może:
- wprowadzić zmiany w układzie okien i drzwi na elewacji: zlikwidować lub zaprojektować dodatkowe,
- zmieniać wymiary poziome i pionowe okien i drzwi,
- stosować pustaki szklane (luksfery),
- doprojektować dodatkowe wejścia do domu lub garażu,
- stosować dodatkowe okna połaciowe oraz wyłazy dachowe.
- Zmienić usytuowanie, zlikwidować, zaprojektować dodatkowe: kominy (dymowe, spalinowe, wentylacyjne) i wywiewki kanalizacyjne, dbając o prawidłowość rozwiązań technicznych i estetycznych.
- Pod warunkiem zadbania o estetykę Obiektu Budowlanego i zasady konstrukcji Kupujący może doprojektować (lub zlikwidować) dodatkowe elementy zewnętrzne Obiektu Budowlanego takie jak: garaż, tarasy naziemne, ogrody zimowe, a także elementy wewnętrzne, takie jak antresole.
- Zmienienie funkcji pomieszczeń, w tym także zaadaptowanie garażu lub innego pomieszczenia na cele mieszkalne, pod warunkiem dostosowania ich do stałego pobytu osób.
- Powiększenie lub zmniejszenie istniejącego w projekcie typowym garażu.
- Przeprojektowanie instalacji grzewczej, dostosowanie do innego źródła energii.
- Przeprojektowanie instalacji sanitarnej i elektrycznej.
W przypadku konieczności wprowadzenia zmian, które wykraczają zakres zmian nieistotnych, jesteś zobowiązany poinformować nas o tym, przedstawiając zakres planowanych zmian (najlepiej e-mail: zmiany@projektstodola.pl, tytułem: Zgoda na zmiany w projekcie). Zapoznamy się z zakresem wprowadzanych zmian, a gdy wyrazimy zgodę na wprowadzenie zmiany w projekcie typowym zgoda zostanie przesłana w formacie PDF.
Zgody wydawane są bezpłatnie.
Jeśli Twoje zmiany wymagają dużej ingerencji w budynek lub są zbyt rozległe, by wprowadził je architekt adaptujący, możesz skonsultować z nami czy są one możliwe do wprowadzenia. Jako autorzy projektu znamy go najlepiej, jesteśmy w stanie wprowadzić praktycznie każdą zmianę w projekcie, zwracamy również uwagę, by zmiana była sensowna z punktu widzenia założeń projektu i jego estetyki. Pochodzimy do tematu kompleksowo, a zmiany wprowadzamy w całej dokumentacji wielobranżowej- na wszystkich rysunkach i w opisie.
Na etapie koncepcji rozwiejmy Twoje wątpliwości, doradzimy, pomożemy dokonać wyboru. W efekcie dostaniesz projekt typowy dopasowany do własnych potrzeb, wymagający jedynie adaptacji do warunków lokalnych przez architekta adaptującego.
Ile kosztuje wprowadzenie zmian do projektu typowego? Zapoznaj się z naszymi pakietami opisanymi w punkcie 4.
W celu potwierdzenia zakresu zmian, pakietu oraz terminu realizacji najlepiej jest przedstawić je drogą mailową, pisząc jakiego projektu dotyczą i (najlepiej w punktach) jakie zmiany w stosunku do projektu bazowego przedstawionego na stronie chcą Państwo wprowadzić. Możesz też zaznaczyć je na szkicu lub rzucie projektu ze sklepu. Jeśli nie jesteś pewien co do wyboru rozwiązania, opisz problem, a my zaproponujemy rozwiązanie. (Najlepiej e-mail: zmiany@projektstodola.pl tytułem Wprowadzenie zmian do projektu).
Niektóre projekty ze zmianami, które wprowadziliśmy możesz zobaczyć tutaj: Stodoły po zmianach. Każdy z tych projektów możesz także zakupić, w tym celu skontaktuj się z nami telefonicznie lub mailowo.
Najszybszą drogą jest wprowadzenie zmian na etapie adaptacji projektu przez architekta adaptującego. Zawsze możemy doradzić Ci jak najlepiej wprowadzić funkcjonalność do projektu na jakiej Ci zależy.
Projekt Stodoła może przygotować projekt typowy ze zmianami wg Twoich wytycznych. Zmiany wprowadzamy we wszystkich elementach projektu (rysunkach, opisach, zestawieniach). Znamy nasze projekty najlepiej, dlatego na etapie wprowadzania zmian, doradzamy jak najlepiej pod względem funkcjonalnym i ekonomicznym wprowadzić daną zmianę.
Koszt wprowadzenia zmian w projekcie podzieliliśmy na 3 pakiety w zależności jak bardzo zmiany ingerują w projekt typowy, a co za tym idzie jak dużo pracy i zaangażowania wymagają. Termin realizacji uzależniony jest od naszej bieżącej pracy i zazwyczaj wynosi ok. 7-10 tygodni.
Przykładowe koszty wprowadzenia zmian to:
- PAKIET MAŁYCH ZMIAN to koszt 2 400 zł
- PAKIET ŚREDNICH ZMIAN to koszt 5 800 zł
- PAKIET DUŻYCH ZMIAN to koszt 8 000 zł
Wszystkie zmiany niosą ze sobą ingerencję także w inne branże, czyli konstrukcję, instalacje sanitarne i elektryczne. Projekt jest aktualizowany w zakresie każdej z tej branż, wprowadzamy je na każdym rysunku każdej branży- architekturze, konstrukcji, sanitarnej i elektrycznej. Co za tym idzie, otrzymują Państwo produkt dostosowany do swoich potrzeb zgodnie z naszym standardem projektu typowego, (tutaj przykład: Co zawiera projekt) do dalszej adaptacji przez lokalnego architekta. (Adaptacja polega na dostosowaniu typowego projektu do konkretnej działki m.in. – jej położenia, ukształtowania czy warunków gruntowych- o adaptacji projektu możesz więcej przeczytać więcej tutaj).
Wprowadzanie zmian odbywa się etapowo. Na etapie wprowadzania zmian doradzamy również jak najlepiej wprowadzić zmianę, by układ był funkcjonalny, a budowa optymalna. Najpierw przygotowujemy koncepcję zmian na rysunkach architektonicznych (rzuty) i przesyłamy do akceptacji, wprowadzamy ew. uwagi, następnie po akceptacji nanosimy zmiany na wszystkich rysunkach wszystkich branż i części opisowej.
W celu potwierdzenia zakresu zmian, pakietu oraz terminu realizacji najlepiej jest przedstawić je drogą mailową, pisząc jakiego projektu dotyczą i (najlepiej w punktach) jakie zmiany, w stosunku do projektu bazowego przedstawionego na stronie, chcą Państwo wprowadzić. Możesz też zaznaczyć je na szkicu lub rzucie projektu ze sklepu. Jeśli nie jesteś pewien co do wyboru rozwiązania, opisz problem, a my zaproponujemy rozwiązanie. (Najlepiej e-mail: zmiany@projektstodola.pl tytułem Wprowadzenie zmian do projektu).
W celu potwierdzenia zakresu zmian, pakietu oraz terminu realizacji najlepiej jest przedstawić je drogą mailową, pisząc jakiego projektu dotyczą i (najlepiej w punktach) jakie zmiany w stosunku do projektu bazowego przedstawionego na stronie chcą Państwo wprowadzić. Możesz też zaznaczyć je na szkicu lub rzucie projektu ze sklepu. Jeśli nie jesteś pewien co do wyboru rozwiązania, opisz problem, a my zaproponujemy rozwiązanie. (Najlepiej e-mail: zmiany@projektstodola.pl tytułem Wprowadzenie zmian do projektu).
Po zaakceptowaniu pakietu i terminu wykonania możesz złożyć zamówienie w Sklepie poprzez dodanie do koszyka wybranego Projektu Typowego a następnie Produktu pod nazwą „Indywidualne zmiany w Projekcie Typowym”. Produkt “Indywidualne zmiany w projekcie typowym” można zamówić tylko razem z Projektem Typowym. Dlatego należy dodać do koszyka te dwie pozycje.
W “Indywidualnych zmianach w projekcie typowym” należy wypełnić pola- opis, data wykonania i cenę, zgodnie z ustaleniami we wcześniejszej korespondencji mailowej. Czas realizacji jest liczony od zamówienia wraz z opłatą faktury.
Procedura zakupu jest opisana także w regulaminie.
Jednocześnie przypominamy, że najprostszą drogą jest wprowadzenie zmian na etapie adaptacji przez architekta adaptującego.
Praktycznie w każdym naszym projekcie garaż jest dostawiony do głównej bryły budynku i można go bezproblemowo usunąć lub przesunąć w inne miejsce. Można też zmienić jego wymiary. Wydłużenie garażu jest stosunkowo łatwe, jego poszerzenie wymaga sprawdzenia i ewentualnego wzmocnienia konstrukcji dachu. Taką zmianę można bezproblemowo wprowadzić na etapie adaptacji.
Wszystkie realizacje naszych projektów zobaczysz tutaj:
Projekt Stodoła to nie tylko blog i projekty gotowe, to sposób myślenia o budowie o wyborach i kompromisach tak, by osiągnąć wymarzony cel w pełnym zadowoleniu. Projekt Stodoła to minimalizm, funkcjonalność prostota, energooszczędność, za którymi podąża ekonomika budowy.
Nasza modelowa Stodoła M jest już od 5 lat zamieszkana. Nie sądziliśmy, że nasze budowlane i aranżacyjne poczynania, które relacjonujemy na blogu i poprzez media społecznościowe stworzą społeczność dookoła tej idei. Można powiedzieć, że Projekt Stodoła to coś więcej niż projekty, to również forum wymiany opinii i doświadczeń. To społeczność, do której możesz należeć również Ty.
Dlatego zapraszamy Cię do dzielenia się postępami z budowy Twojej Stodoły, a może masz jakieś pytania i chciałbyś skorzystać z doświadczeń innych? Zachęcamy Cię do zapisania się do naszej grupy na Facebook’u – Projekt Stodoła- budowa domu typu stodoła, gdzie wielu inwestorów dzieli się swoimi doświadczeniami.
Sprawdź również profile na mediach społecznościowych inwestorów budujących domy wg naszych projektów:
-
- Projekt Stodoła S @jak_możesz_to_sie_nie_buduj
- Projekt Stodoła S+ @stodola_kolo_kamienia
- Projekt Stodoła S+@nasza_splus
- Projekt Stodoła S+ @stodola_clt
- Projekt Stodoła S+ Premium po zmianach 2 @kolejna_stodola
- Projekt Stodoła S+ Premium @s_premium_stodola
- Projekt Stodoła S + Premium @troche.inna.stodola
- Projekt Stodoła S+ Premium@stodola_splus_premium
- Projekt Stodoła S+ Premium@nasza_polna_stodola
- Projekt Stodoła S+ Premium @stodola_premium
- Projekt Stodoła S+ Premium@budowajakzakare
- Projekt Stodoła S+ Premium@stodola_premium_podlasem
- Projekt Stodoła S+ Premium @stodolaspluspremiumnawsi
- Projekt Stodoła S+ long @stodola_wzg
- Projekt Stodoła S+ long @stodola.ulipy
- Projekt Stodoła S+ long@spluslong
- Projekt Stodoła S+ long@naszalongbarn
- Projekt Stodoła M @nad_morze.m_stodola
- Projekt Stodoła M parterowa @m_parterowa
- Projekt Stodoła M-L @naszeklepisko
- Projekt Stodoła M-L po zmianach 2 @stodola_dziennik_budowy
- Projekt Stodoła z Atrium @sosnowe_atrium
- Projekt Stodoła z Atrium @projekt_stodola_z_atrium
- Projekt Stodoła Optimum @iznowustodola
- Projekt Stodoła Podwójna Stodoła @projektpodwojnastodola
- Projekt Stodoła S+ Exclusive po zmianach @w_mojej_parterowce_
- Projekt Stodoła Smart + @moja_smart_stodola
- Projekt Stodoła S+ Premium @stodolaspluspremiumnawsi
- Projekt Stodoła L Compact @nasza_stodola_l_compact
- Projekt Stodoła L+ @oursecretbarn
RZUTY:
- PARTER 123,96 m²
- KONDYGNACJA PODZIEMNA 47,16 m²
SCHEMATYCZNE PRZEKROJE:
- STODOŁA L COMPACT PRZEKRÓJ PRZEZ SCHODY
- STODOŁA L COMPACT PRZEKRÓJ PRZEZ SALON
FUNKCJA:
Stodoła L Compact + to alternatywny wariant naszej najmniejsza wersja Stodoły L. W małej formie budynku udało się umieścić bardzo funkcjonalny układ z kilkoma pokojami. Budynek posiada prosty, czytelny układ funkcjonalny z wejściem od strony ściany szczytowej. W strefie wejściowej znajduje się wygodny wiatrołap połączony za pośrednictwem pomieszczenia technicznego z dwustanowiskowym garażem. Całość rozplanowana jest na jednej osi komunikacyjnej zakończonej dużym, przestrzennym salonem z dużym przeszkleniem zapewniającym połączenie z działką i tarasem. W pierwszej części domu zlokalizowano pokój z garderobą. W centralnej części rzutu usytuowano spiżarnię oraz łazienkę. Na końcu budynku znajduje się otwarta kuchnia połączona z jadalnią i salonem w tej przestrzeni znajdują się również wyeksponowane schody na poddasze. Nad strefą wypoczynkową otwarto przestrzeń na pełną wysokość – do konstrukcji dachu. Szklana fasada, otwierająca widok na działkę, podzielona jest na dwie części. Umożliwia to montaż na dolnej jej części żaluzji fasadowych. Nad górną częścią fasady wysunięty dach ogranicza penetrację promieni słonecznych oraz tworzy zadaszenie nad tarasem. Obudowanie tarasu pozwala także na prywatność w przypadku niewielkiej odległości do bocznych granic działki i sąsiedniej zabudowy oraz osłania przed wiatrem.
Z korytarza komunikacyjnego schodami (otwartymi na salon) możemy dostać się na poddasze. Na poddaszu znajduje się 3 pokoje i jedna łazienka. Pokój od strony frontowej posiada okno w ścianie szczytowej budynku, sypialnia na drugim końcu korytarza doświetlona jest częścią szklanej fasady. W łazience znajduje się okno połaciowe. Jest możliwość bezproblemowego zamknięcia pustki w salonie i uzyskania czwartego pokoju.
Funkcjonalnie można zrezygnować z bryły garażu pozostawiając sam budynek w swojej prostej kompaktowej formie. Budynek może pełnić funkcje mieszkalną, lub z powodzeniem być obiektem weekendowym lub na wynajem.
RZUTY:
- PARTER 123,96 m²
- PODDASZE 42,98 m²
SCHEMATYCZNE PRZEKROJE:
- STODOŁA L COMPACT LUSTRO PRZEKRÓJ PRZEZ SCHODY
- STODOŁA L COMPACT LUSTRO PRZEKRÓJ PRZEZ SALON
FUNKCJA:
Stodoła L Compact + to alternatywny wariant naszej najmniejsza wersja Stodoły L. W małej formie budynku udało się umieścić bardzo funkcjonalny układ z kilkoma pokojami. Budynek posiada prosty, czytelny układ funkcjonalny z wejściem od strony ściany szczytowej. W strefie wejściowej znajduje się wygodny wiatrołap połączony za pośrednictwem pomieszczenia technicznego z dwustanowiskowym garażem. Całość rozplanowana jest na jednej osi komunikacyjnej zakończonej dużym, przestrzennym salonem z dużym przeszkleniem zapewniającym połączenie z działką i tarasem. W pierwszej części domu zlokalizowano pokój z garderobą. W centralnej części rzutu usytuowano spiżarnię oraz łazienkę. Na końcu budynku znajduje się otwarta kuchnia połączona z jadalnią i salonem w tej przestrzeni znajdują się również wyeksponowane schody na poddasze. Nad strefą wypoczynkową otwarto przestrzeń na pełną wysokość – do konstrukcji dachu. Szklana fasada, otwierająca widok na działkę, podzielona jest na dwie części. Umożliwia to montaż na dolnej jej części żaluzji fasadowych. Nad górną częścią fasady wysunięty dach ogranicza penetrację promieni słonecznych oraz tworzy zadaszenie nad tarasem. Obudowanie tarasu pozwala także na prywatność w przypadku niewielkiej odległości do bocznych granic działki i sąsiedniej zabudowy oraz osłania przed wiatrem.
Z korytarza komunikacyjnego schodami (otwartymi na salon) możemy dostać się na poddasze. Na poddaszu znajduje się 3 pokoje i jedna łazienka. Pokój od strony frontowej posiada okno w ścianie szczytowej budynku, sypialnia na drugim końcu korytarza doświetlona jest częścią szklanej fasady. W łazience znajduje się okno połaciowe. Jest możliwość bezproblemowego zamknięcia pustki w salonie i uzyskania czwartego pokoju.
Funkcjonalnie można zrezygnować z bryły garażu pozostawiając sam budynek w swojej prostej kompaktowej formie. Budynek może pełnić funkcje mieszkalną, lub z powodzeniem być obiektem weekendowym lub na wynajem.
Alternatywna wersja najmniejszy projekt z rodziny L. W kompaktowym budynku udało się umieścić bardzo funkcjonalny układ. Niewielki, ale niczego mu nie brakuje! W projekcie Stodoła L Compact+ , co do centymetra, umieściliśmy wszystkie niezbędne funkcje. Powstał dom przemyślany w taki sposób, że jego niewielkie gabaryty nie stanowią żadnej przeszkody w komfortowym użytkowaniu. Jego prosta bryła mieści w sobie aż cztery sypialnie ! Do budynku mieszkalnego dostawić można garaż w taki sposób, że możliwe będzie wejście do mieszkania przez przedsionek. W naszym projekcie garaż pomieści dwa auta, jednak niezwykle łatwa jest zmiana garażu na jednostanowiskowy czy na przykład zupełną rezygnację z garażu. Na parterze znajdziemy sypialnie master, łazienkę, spiżarnię i wygodny pokój dzienny z aneksem kuchennym. Otwarty strop nad częścią dzienną sprawia, że staje się optycznie jeszcze większa i daje wrażenie przestronności. Na piętrze trzy sypialnie dzielą wspólną łazienkę. Wchodzi się do nich z antersoli, z której jest świetny widok na salon i efektowne przeszklenia. Jeżeli jednak bardziej niż na efekcie zależy nam na metrażu, to zamiast pustki można zaaranżować miejsce na kolejny pokój!
STANDARD BUDYNKU I TECHNOLOGIA BUDOWY
Budynek zaprojektowano w standardzie energooszczędnym zgodnym z Warunkami technicznymi 2021 – ogrzewanie podłogowe za pośrednictwem powietrznej pompy ciepła, wentylacja mechaniczna z rekuperacją.
ŚCIANY MUROWANE: dwuwarstwowe- bloczek z betonu komórkowego + wełna skalna, ściany działowe silikatowe
ELEWACJA: biały tynk, jasna deska drewniana, blacha, ciemny tynk
STROP: strop monolityczny
SCHODY: żelbetowe
DACH: dachówka betonowa
Dodatkowo prosty, dwuspadowy dach pozwala na montaż instalacji fotowoltaicznej w ilości nawet do 34 paneli na jednej połaci, co generuje moc ok. 11 kW. Na wizualizacjach zaprezentowano 24 panele generujących ok. 8 kW mocy.
BRYŁA:
Kompaktowy, prosty budynek dwukondygnacyjny typu nowoczesna stodoła, na planie prostokąta, przykryty dwuspadowym, symetrycznym dachem o kącie nachylenia 45°. Do bryły głównej budynku, od strony wjazdowej, dostawiono bryłę garażu z płaskim dachem. Konstrukcyjnie można bezproblemowo zrezygnować z garażu. Budynek utrzymany w jednolitej i minimalistycznej stylistyce. Przełamaniem jej jest duża, szklana fasada doświetlająca część dzienną z wysuniętym dachem od strony tylnej ściany szczytowej. Fasada podzielona jest na dwie części umożliwiając montaż w dolnej części żaluzji fasadowych. Nad górną częścią wysunięty dach ogranicza penetrację promieni słonecznych oraz tworzy zadaszenie nad tarasem.
Budynek posiada bardzo prosty układ konstrukcyjny opierający się na trzech osiach, prosty dwuspadowy dach i betonowy strop. Sprawia to, że dom jest łatwy i ekonomiczny w budowie.
Nowoczesna elewacja budynku wykończona biały tynkiem, akcentowo zastosowano elementy drewniane jasne opalane. Technika opalania pozwala ochronić drewno przed zewnętrznymi czynnikami atmosferycznymi. Budnyk również można wykonać w wersji “miejskiej” czyli białym tynku. Istnieje możliwość dopasowania materiałów tak, by nawiązać do lokalnego kontekstu lub indywidualnych upodobań inwestora upodobań inwestora.
Projekt bazowy dopasowany jest do działek z widokiem od strony tylnej ściany szczytowej. Poszczególne warianty zostały przedstawione poniżej. Urbanistycznie budynek najlepiej pasuje do działki z wjazdem od zachodu, wschodu, północy wtedy dłuższa połać budynku skierowana jest w kierunku południowym, dogodnie dla lokalizacji fotowoltaiki.
MINIMALNE WYMIARY DZIAŁKI:
Budynek można usytuować w kilku wariantach. Podstawowy Wariant jest przy wjeździe od strony zachodniej oraz północnej (Wariant 1) . Jest możliwość likwidacji garażu, uzyskując prostą minimalistyczną bryłę (Wariant 2 możliwy do realizacji jako zmiany w wariancie podstawowym). Wariant 3 to zmiana lokalizacji garażu na ścianę boczną budynku dedykowany działkom, które są szerokie, stosunkowo krótkie. W projekcie w zależności od wielkości działki jest możliwość także rezygnacji z garażu lub jego przemieszczenie na boczną ścianę budynku.
- WARIANT 1 Wjazd od zachodu i północy, minimalne wymiary działki 27,835×19,80m*
- WARIANT 2 Wjazd od zachodu i północy, bez garażu minimalne wymiary działki 21,435×17,25m*
- WARIANT 3 Wjazd od zachodu i północy, minimalne wymiary działki 22,335x 22,65m*
*powyższe warianty obrazują minimalne wymiary działki, należy jednak uwzględnić również warunki lokalne- warunki zabudowy lub ograniczenia wynikające z MPZP i lokalnego sąsiedztwa
MINIMALNE WYMIARY DZIAŁKI:
Budynek można usytuować w kilku wariantach. Podstawowy Wariant jest przy wjeździe od strony zachodniej oraz północnej (Wariant 1) . Jest możliwość likwidacji garażu, uzyskując prostą minimalistyczną bryłę (Wariant 2 możliwy do realizacji jako zmiany w wariancie podstawowym). Wariant 3 to zmiana lokalizacji garażu na ścianę boczną budynku dedykowany działkom, które są szerokie, stosunkowo krótkie. W projekcie w zależności od wielkości działki jest możliwość także rezygnacji z garażu lub jego przemieszczenie na boczną ścianę budynku.
- WARIANT 1 Wjazd od wschodu i północy, minimalne wymiary działki 27,835×19,80m*
- WARIANT 2 Wjazd od wschodu i północy, bez garażu minimalne wymiary działki 21,435×17,25m*
- WARIANT 3 Wjazd od wschodu i północy, minimalne wymiary działki 22,335x 22,65m*
*powyższe warianty obrazują minimalne wymiary działki, należy jednak uwzględnić również warunki lokalne- warunki zabudowy lub ograniczenia wynikające z MPZP i lokalnego sąsiedztwa
KOSZT BUDOWY
Dobrze wiemy, jak w dzisiejszych czasach trudno jest oszacować koszty budowy, szczególnie, że potrafią się one zmieniać z miesiąca na miesiąc. Bardzo dbamy o to, by nasze kosztorysy były jak najbardziej dokładne. Wyceniamy projekty bazując na sprawdzonych technologiach i dobrych materiałach, gdyż one gwarantują trwałość budynku i bezawaryjne funkcjonowanie. Nie zaniżamy cen. Projektując stosujemy proste rozwiązania, bez “ozdobników”, by nasze projekty z założenia nie były drogie w budowie, miały duże możliwości etapowania i wariantowania pracy.
Do stodoły M znajdziesz na blogu całe zestawienie wszystkich materiałów i poniesione przez nas koszty budowy, sprawdź także wpis o kosztach budowy z 2022 lub inne nasze realizacje. Możesz także skontaktować się z innymi inwestorami, którzy często są aktywni na naszej grupie fb- Projekt Stodoła- budowa domu typu stodoła.
KOSZTORYS UPROSZCZONY:
STAN ZERO: 93 433 zł średnie koszty | 59 489 zł minimalne koszty
zawiera prace ziemne, fundamenty, płytę denną posadzki.
STAN SUROWY ZAMKNIĘTY: 386 872 zł średnie koszty | 248 679 zł minimalne koszty
zawiera konstrukcję, strop, dach, stolarkę okienną i drzwiową zewnętrzną (oraz powyższy STAN ZERO)
STAN DEWELOPERSKI bez elewacji : 766 916 zł średnie koszty | 417 724 zł minimalne koszty
ELEWACJA: 117 049 zł średnie koszty | 59 340 zł minimalne koszty
zawiera tynki, posadzki, izolację termiczną, elewacje z materiałami wg wizualizacji, instalacje: sanitarne, elektryczne, wentylacji mechanicznej, rekuperator, pompę ciepła (oraz powyższy STAN SUROWY ZAMKNIĘTY)
- kwoty netto, poziom cen- III kwartał 2024 , wykończenie zgodnie z projektem i wizualizacjami. Kosztorys przygotowywany jest metodą wskaźnikową na bazie opracowywanych kosztorysów szczegółowych dla wybranych projektów oraz tabeli SEKOCENBUD
- średnie koszty budowy to koszty systemem zleconym- uwzględniają koszty robocizny; minimalne koszty budowy to koszty system gospodarczym- przy założeniu dużego udziału pracy własnej
- elewacja została wyceniona osobno zgodnie z projektem, materiały zgodnie z wizualizacjami- przy zastosowaniu innych materiałów np. tynku, cena może się znacznie zmniejszyć
BUDOWA DOMU STODOŁA & PREFABRYKOWANA STODOŁA
Zależy Ci na czasie, chciałbyś zbudować Stodołę nawet w 4-5 miesięcy? Jest to możliwe w przypadku budowy domu z prefabrykatu.
Budowa z prefabrykatów jest droższa o ok. 15-25% w stosunku do kompleksowej, tradycyjnej budowy.
Co zyskujesz w zamian? Między innymi:
- ekologiczny dom z naturalnych materiałów
- szybką realizację domu nawet w 4-5 miesięcy, a co za tym idzie także odporność na niestabilne ceny na rynku;
- małe zaangażowanie w budowę- bez ogranizowania ekip i materiałów;
- większą powierzchnię użytkową budynku dzięki mniejszej grubości ścian;
- dom posadowiony na płycie fundamentowej
- opieka i doradztwo doświadczonej kadry
Projekt Stodoła współpracuje z firmami wykonawczymi w technologii prefabrykatu keramzytowego (tylko na obszarze w promieniu 100km od Wrocławia).
Jeśli interesuje Cię ten temat napisz do nas maila z informacją odnośnie lokalizacji inwestycji (tylko z okolic Wrocławia) na: prefabrykat@projektstodola.pl
2. Dobierz dodatki do projektu
Dodatki do projektu
Opisy informacyjne dodatków 
Wersja elektroniczna
wersja elektroniczna projektu w .pdf Bardzo przydatna na etapie wycen oraz konsultacji. Wersja elektroniczna zawiera wszystkie rysunki projektu w formacie .pdf, nie zawiera części opisowej projektu.
Koszt 300 zł
Dodatkowy egzemplarz projektu
dodatkowy egzemplarz projektu W standardzie otrzymujesz 3 egzemplarze projektu architektoniczno- budowlanego oraz 2 egzemplarze projektu technicznego. 3 egzemplarze PAB są składane do urzędu. Jeden egzemplarz projektu technicznego musi zostać przekazany kierownikowi budowy przed rozpoczęciem budowy. Drugi egzemplarz zazwyczaj trafia na budowę. Warto więc dodać do koszyka ten produkt, aby mieć zawsze pod ręką swój egzemplarz.
Koszt 300 zł
Podkład do projektowania wnętrz w .dwg
podkłady do projektowania wnętrz w .dwg To uproszczone rysunki w formacie .dwg (parter, piętro, przekrój, elewacje) przydatne w wielu momentach, ale szczególnie ważne przy projektowaniu wnętrz.
Koszt 300 zł
Dodatkowe wizualizacje
dodatkowe wizualizacje Jeżeli zastanawiasz się nad innym materiałem na elewacji możesz zamówić alternatywną wersję wizualizacji wg swoich potrzeb. Są to sumarycznie 2 ujęcia- 1 od frontu i 1 od ogrodu z innymi materiałami, w rozszerzeniu .jpg. Dotyczy tylko projektu typowego bez zmian. Czas realizacji do 2,5 tygodnia. W polu Uwagi opisz jakie materiały chciałbyś zobaczyć w swojej wersji elewacji.
Koszt 750 zł
Model 3d budynku w .skp
model 3d budynku w .skp Chcesz zwiedzić budynek przed jego budową, by wszystko dokładnie rozplanować? Dajemy Ci taką możliwość. Jest to model budynku w rozszerzeniu .skp z podstawowym umeblowaniem. Na pewno przyda się przy projektowaniu wnętrz.
Koszt 1150 zł
Kosztorys
kosztorys z dokładnym spisem materiałów i przedmiarem, bardzo pomocny na etapie wykonywania ofert i zamawiania materiałów. Format .pdf. (dostępny dla wybranych projektów)
Koszt 450 zł
Dobór i projekt fotowoltaiki
dobór i projekt fotowoltaiki Wszystkie nasze projekty są przystosowane do montażu instalacji fotowoltaicznej. Jednak sama fotowoltaika to indywidualny temat, bardzo zależny od Twojej lokalizacji oraz zapotrzebowania na energię. Ten projekt uwzględni wszystkie Twoje wytyczne- lokalizacyjne, jak i również założenia dotyczące np. stacji ładowania aut elektrycznych. Czas realizacji ok. 2,5 tygodnia. Po zamówieniu prześlij do nas planowaną lokalizację budynku oraz Twoje zapotrzebowanie na energię.
Koszt 800 zł
Smart Home konsultacja ze specjalistą

Zagadnienia z tematyki Smart Home poruszane na spotkaniu lub spotkaniu online
- Smart Home a zwykła instalacja – podstawowe różnice
- Systemy Smart
- Home – przewodowe i bezprzewodowe – szczerze, bez mitów
- Sterowanie oświetleniem
- Zacienianie – rolety, żaluzje, karnisze elektryczne
- Oszczędność energetyczna – zagadnienia związane ze sterowaniem ogrzewaniem i wentylacją – czy to się opłaca?
- Systemy audio multiroom
- Bezpieczeństwo – alarm i monitoring, kontrola dostępu
- Smart Gardens – inteligentne ogrody
- Po spotkaniu – sporządzenie wstępnego kosztorysu
Koszt 615 zł
Projekt wykonawczy ogrzewania podłogowego z pompą ciepła
Projekty wykonawczy podłogowego z pompą ciepła Wszystkie nasze projekty zawierają ogrzewanie z pompy ciepła powietrznej i instalację ogrzewania podłogowego w standardzie projektu technicznego. Projekt wykonawczy zawiera:
- dokładnie rozrysowane rozstawy pętli grzewczych.
- dobór konkretnych materiałów i średnic
- zestawienie materiałów z kosztorysem
Czas realizacji ok. 2,5 tygodnia. Po zamówieniu prześlij do nas planowaną lokalizację budynku oraz materiał wykończeniowe podłogi.
Koszt 900 zł
Projekt wykonawczy wentylacji mechanicznej z rekuperacją
Projekty wentylacji mechanicznej z rekuperacją Wszystkie nasze projekty wentylacje mechaniczną zawierają w standardzie projektu technicznego na schemacie. Projekt wykonawczy zawiera:
- dokładnie rozrysowane układ wentylacji
- dobór konkretnych materiałów i średnic
- zestawienie materiałów z kosztorysem
Czas realizacji ok. 2,5 tygodnia. .
Koszt 900 zł
Połączenie instalacji z kominkiem z płaszczem wodnym
Połączenie instalacji z kominkiem z płaszczem wodnym
Czas realizacji ok. 2,5 tygodnia. .
Koszt 400 zł
Wersja elektroniczna
300 zł (z VAT)
Podkłady do projektowania wnętrz
300 zł (z VAT)
Dodatkowy egzemplarz projektu
300 zł (z VAT)
Dodatkowe wizualizacje
750 zł (z VAT)
Ogrzewanie gazowe
1000 zł (z VAT)
Płyta fundamentowa
1800 zł (z VAT)
Model 3d budynku w .skp
1150 zł (z VAT)
dobór i projekt fotowoltaiki
800 zł (z VAT)
Smart Home Konsultacja ze specjalistą
615 zł (z VAT)
Projekt wykonawczy ogrzewania podłogowego z pompą ciepła
900 zł (z VAT)
Projekt wykonawczy wentylacji mechanicznej z rekuperacją
900 zł (z VAT)
Połączenie instalacji z kominkiem z płaszczem wodnym
400 zł (z VAT)
Makieta 3d budynku (duża)
950 zł (z VAT)
Makieta 3d budynku (mała)
550 zł (z VAT)
Pakiet zawiera:
- Dodatkowy egzemplarz projektu
- Wersję elektroniczną
600 zł520 zł (z VAT) Oszczędzasz 80 zł
Pakiet zawiera:
- Dodatkowy egzemplarz projektu
- Wersję elektroniczną
- Podkłady do projektowania wnętrz
900 zł690 zł (z VAT) Oszczędzasz 210 zł
Pakiet zawiera:
- Dodatkowy egzemplarz projektu
- Wersję elektroniczną
- Podkłady do projektowania wnętrz
- Model 3d budynku w .skp
1900 zł1330 zł (z VAT) Oszczędzasz 570 zł
CO ZAWIERA PROJEKT?
W ramach zamówionego Produktu obejmującego Projekt Typowy Kupujący otrzymuje:
- 3 egzemplarze projektu ARCHITEKTONICZNO-BUDOWALNEGO i 2 egzemplarze projektu TECHNICZNEGO wraz z elementami wykonawczymi konstrukcji.
Szczegółowy opis zawartości projektu wraz z przykładowymi rysunkami możesz zobaczyć tutaj: “co zawiera projekt?”
- potwierdzenie kwalifikacji zawodowych projektantów i ich przynależności do izby zawodowej w okresie opracowywania dokumentacji.
- katalog informacyjny ”Projekt Stodoła Rekomenduje„ o zalecanych produktach i technologiach
W zależności od specyfiki i przeznaczenia Obiektu Budowlanego zawartość Projektu Typowego może nieznacznie się różnić, przy czym różnice te wynikają wyłącznie z charakteru Obiektu Budowlanego oraz wymogów Prawa Budowlanego.
Projekt Typowy umożliwia uzyskanie pozwolenia na budowę po adaptacji do warunków lokalnych.
Do Projektu Typowego dokupić możesz dodatki takie m.in. jak:
– wersja elektroniczna części rysunkowej projektu w formacie .pdf
– podkłady do projektowania wnętrz .dwg
– dodatkowe egzemplarze projektu
– dodatkowe fotorealistyczne wizualizacje
– projekt instalacji domu inteligentengo
– dla wybranych projektów także szczegółowy kosztorys
Opis dodatków znajdziesz w zakładce DODATKI na stronie wybranego projektu. Dodatki zakupić możesz także w korzystnych cenowo PAKIETACH. Zapoznaj się z nimi po dodaniu do koszyka wybranego przez siebie Projektu.
ADAPTACJA PROJEKTU
Każdy projekt typowy umożliwia uzyskanie pozwolenia na budowę po adaptacji do warunków lokalnych przez wybranego przez Inwestora architekta adaptującego.
Adaptujący wykonuje projekt zagospodarowania terenu i dostosowuje projekt typowy do ustaleń Miejscowego Planu Zagospodarowania Przestrzennego (lub decyzji o Warunkach Zabudowy w przypadku braku planu), do terenu, do wymiarów działki, usytuowania względem stron świata, ukształtowania terenu, nośności gruntu, strefy klimatycznej i głębokości przemarzania, potrzeb przyszłych mieszkańców oraz aktualnie obowiązujących norm i przepisów. Nawet jeśli nie wprowadza on zmian do projektu typowego, podpisując dokumentację, staje się autorem projektu budowlanego i bierze odpowiedzialność za prawidłowość i kompletność dokumentacji.
Projektant dokonujący Adaptacji oraz sporządzający Projekt Budowlany, który zostanie wykorzystany w Procesie Budowlanym, jest zobowiązany w szczególności:
- dokonać analizy zgodności Projektu Standardowego z lokalnymi uwarunkowaniami miejscowego planu zagospodarowania przestrzennego lub warunków zabudowy i zagospodarowania terenu;
- nanieść na oryginale Projektu Standardowego trwałą techniką graficzną w kolorze czerwonym projektowany zakres zmian w zakresie rysunkowym i tekstowym;
- wykonać adaptację fundamentów do lokalnych warunków gruntowych;
- wykonać sprawdzenie konstrukcji całego Obiektu Budowlanego w zakresie jego dostosowania do lokalnych warunków, takich jak: np. gruntowych i obciążeń normatywnych wynikających ze strefy klimatycznej, bez możliwości wprowadzania zmian kształtu i wymiarów zewnętrznych Obiektu Budowlanego, bez zmiany kąta nachylenia połaci dachowej, wysokości ścian i wymiarów okien;
- dostosować instalację wodno-kanalizacyjną do warunków miejscowych na podstawie uzgodnionego z dostawcą wody projektu przyłączy;
- dostosować instalację wodno-kanalizacyjną w odniesieniu do instalacji i przyłącza gazu;
- wykonać adaptację projektowanej charakterystyki energetycznej wraz z analizą alternatywnych/odnawialnych źródeł ciepła dostosowująca do uwarunkowań na działce i wykonanych ewentualnych zmian w Projekcie Standardowym;
- podpisać Projekt Budowlany jako autor adaptacji Obiektu Budowlanego do konkretnej lokalizacji z podaniem rodzaju i numeru posiadanych uprawnień projektowych;
- wykonać sprawdzenie i adaptację Projektu Budowlanego oraz projektowanej charakterystyki energetycznej dostosowującą do zmian w obowiązujących przepisach i normach, jakie wprowadzono po dacie wykonania Projektu Standardowego;
- wykonać analizę obszaru oddziaływania Obiektu Budowlanego na sąsiednie nieruchomości.
Projekt zagospodarowania działki z częścią opisową należy trwale połączyć z Projektem Budowlanym lub zamieścić w osobnej oprawie: tomie (teczce), stanowiącym z zakupionym Projektem Typowym komplet Projektu Budowlanego.
Obecnie pracujemy nad mapą współpracujących z nami pracowni i architektów adaptujących. Ale być może już dziś będziemy mogli Ci pomóc- wyślij zapytanie na e-mail: info@projektstodola.pl tytułem „Polecenie architekta adaptującego”
Bardzo często w naszych projektach stosujemy fragmentarycznie dachy płaskie nad garażami lub elementami dodatkowymi. W momencie jeśli Miejscowy Plan Zagospodarowania terenu lub Warunki zabudowy obowiązujące na Waszej działce, nie dopuszczają dachów płaskich. Rozwiązaniem może być adaptacja-zaprojektowanie tarasu na dachu płaskim z wyjście z pomieszczeń użytkowych (pokoi) lub poprzez schody z gruntu. Wyjście z dachu może być realizowane poprzez okna połaciowe typu tarasowego. Jest to rozwiązanie popularne i powszechnie stosowane.
Praktycznie w każdym naszym projekcie garaż jest dostawiony do głównej bryły budynku i można go bezproblemowo usunąć, lub przesunąć w inne miejsce. Można też zmienić jego wymiary. Wydłużenie garażu jest stosunkowo łatwe, jego poszerzenie wymaga sprawdzenia i ewentualnego wzmocnienia konstrukcji dachu. Taką zmianę można bezproblemowo wprowadzić na etapie adaptacji.
Wszystkie realizacje naszych projektów zobaczysz tutaj:
Projekt Stodoła to nie tylko blog i projekty gotowe, to sposób myślenia o budowie o wyborach i kompromisach tak, by osiągnąć wymarzony cel w pełnym zadowoleniu. Projekt Stodoła to minimalizm, funkcjonalność prostota, energooszczędność, za którymi podąża ekonomika budowy.
Nasza modelowa Stodoła M jest już od 5 lat zamieszkana. Nie sądziliśmy, że nasze budowlane i aranżacyjne poczynania, które relacjonujemy na blogu i poprzez media społecznościowe stworzą społeczność dookoła tej idei. Można powiedzieć, że Projekt Stodoła to coś więcej niż projekty, to również forum wymiany opinii i doświadczeń. To społeczność, do której możesz należeć również Ty.
Dlatego zapraszamy Cię do dzielenia się postępami z budowy Twojej Stodoły, a może masz jakieś pytania i chciałbyś skorzystać z doświadczeń innych? Zachęcamy Cię do zapisania się do naszej grupy na Facebook’u – Projekt Stodoła- budowa domu typu stodoła, gdzie wielu inwestorów dzieli się swoimi doświadczeniami.
Sprawdź również profile na mediach społecznościowych inwestorów budujących domy wg naszych projektów:
-
- Projekt Stodoła S @jak_możesz_to_sie_nie_buduj
- Projekt Stodoła S+ @stodola_kolo_kamienia
- Projekt Stodoła S+@nasza_splus
- Projekt Stodoła S+ @stodola_clt
- Projekt Stodoła S+ Premium po zmianach 2 @kolejna_stodola
- Projekt Stodoła S+ Premium @s_premium_stodola
- Projekt Stodoła S + Premium @troche.inna.stodola
- Projekt Stodoła S+ Premium@stodola_splus_premium
- Projekt Stodoła S+ Premium@nasza_polna_stodola
- Projekt Stodoła S+ Premium @stodola_premium
- Projekt Stodoła S+ Premium@budowajakzakare
- Projekt Stodoła S+ Premium@stodola_premium_podlasem
- Projekt Stodoła S+ Premium @stodolaspluspremiumnawsi
- Projekt Stodoła S+ long @stodola_wzg
- Projekt Stodoła S+ long @stodola.ulipy
- Projekt Stodoła S+ long@spluslong
- Projekt Stodoła S+ long@naszalongbarn
- Projekt Stodoła M @nad_morze.m_stodola
- Projekt Stodoła M parterowa @m_parterowa
- Projekt Stodoła M-L @naszeklepisko
- Projekt Stodoła M-L po zmianach 2 @stodola_dziennik_budowy
- Projekt Stodoła z Atrium @sosnowe_atrium
- Projekt Stodoła z Atrium @projekt_stodola_z_atrium
- Projekt Stodoła Optimum @iznowustodola
- Projekt Stodoła Podwójna Stodoła @projektpodwojnastodola
- Projekt Stodoła S+ Exclusive po zmianach @w_mojej_parterowce_
- Projekt Stodoła Smart + @moja_smart_stodola
- Projekt Stodoła S+ Premium @stodolaspluspremiumnawsi
- Projekt Stodoła L Compact @nasza_stodola_l_compact
- Projekt Stodoła L+ @oursecretbarn
Projekty po zmianach - czyli warianty naszych typowych projektów. Wiele naszych projektów Stodół została zmieniona i dostosowana do mocno sprecyzowanych Waszych wymagań. Powstało wiele projektów, które chcemy tu zaprezentować. Oto najciekawsze modyfikacje projektów, którymi chcemy Was zainspirować, ale też każdą z tych opcji możesz zakupić.
Warianty naszych pozostałych projektów znajdziesz na stronie:
Stodoły po zmianachJeśli jednak nadal nie znalazłeś odpowiadającego swoim potrzebom projektu przeczytaj poniższe informacje i napisz do nas lub sprawdź stronę USŁUGI.
INDYWIDUALNE ZMIANY
Jeśli jednak chciałbyś wprowadzić indywidualne zmiany w projekcie najszybszą drogą jest wprowadzenie zmian na etapie adaptacji projektu przez architekta adaptującego. Zawsze możemy doradzić Ci jak najlepiej wprowadzić funkcjonalność do projektu na jakiej Ci zależy.
Projekt Stodoła może przygotować projekt typowy ze zmianami wg Twoich wytycznych. Projekt jest aktualizowany w zakresie każdej z tej branż, wprowadzamy je na każdym rysunku każdej branży- architekturze, konstrukcji, sanitarnej i elektrycznej. Co za tym idzie, otrzymują Państwo produkt w dostosowany do swoich potrzeb zgodnie z naszym standardem projektu typowego, (tutaj przykład: Co zawiera projekt) do dalszej adaptacji przez lokalnego architekta. (Adaptacja polega na dostosowaniu typowego projektu do konkretnej działki m.in. – jej położenia, ukształtowania czy warunków gruntowych- o adaptacji projektu możesz więcej przeczytać więcej tutaj).
Poniżej znajdziesz odpowiedzi na najczęściej zadawane pytania dotyczące zmian, kosztów ich wprowadzenia oraz przebiegu współpracy:
ZMIANY W PROJEKCIE TYPOWYM
Najszybszą drogą jest wprowadzenie zmian na etapie adaptacji przez architekta adaptującego. Zmiany, które można wprowadzić do projektu typowego bez konieczności uzyskiwania zgody Sprzedawcy to:
- użycie innych materiałów budowlanych na konstrukcję Obiektu Budowlanego (fundamenty, ściany, stropy, schody, więźba dachowa) pod warunkiem zachowania wymagań konstrukcji i ochrony cieplnej Obiektu Budowlanego:
- zmiany usytuowania wewnętrznych ścian działowych, a także otworów drzwiowych wewnątrz Obiektu Budowlanego,
- zmiany usytuowania i geometrii schodów wewnętrznych,
- zmiany wysokości Obiektu Budowlanego (lub rzędnej wysokościowej kalenicy) o 10% (zwiększyć lub zmniejszyć), w szczególności: poziom posadzki parteru nad terenem projektowanym, wysokość kondygnacji parteru, wysokość ścianki kolankowej)
- zmiany kąta nachylenia dachu w zakresie 5 stopni (zwiększyć lub zmniejszyć)
- wykonania podpiwniczenia całości lub części Obiektu Budowlanego,
- zmiany przekroju filarów zewnętrznych i wewnętrznych.
- Wprowadzenie zmiany materiałów wykończeniowych wewnątrz i na zewnątrz Obiektu Budowlanego, a także zmiana kolorystyki zewnętrznej Obiektu Budowlanego, przy zachowaniu dbałości o estetykę.
- Pod warunkiem zachowania prawidłowej kompozycji elewacji (zachowanie wspólnej linii usytuowania otworów okiennych i drzwiowych nad sobą lub obok siebie) oraz zasad konstrukcji Kupujący może:
- wprowadzić zmiany w układzie okien i drzwi na elewacji: zlikwidować lub zaprojektować dodatkowe,
- zmieniać wymiary poziome i pionowe okien i drzwi,
- stosować pustaki szklane (luksfery),
- doprojektować dodatkowe wejścia do domu lub garażu,
- stosować dodatkowe okna połaciowe oraz wyłazy dachowe.
- Zmienić usytuowanie, zlikwidować, zaprojektować dodatkowe: kominy (dymowe, spalinowe, wentylacyjne) i wywiewki kanalizacyjne, dbając o prawidłowość rozwiązań technicznych i estetycznych.
- Pod warunkiem zadbania o estetykę Obiektu Budowlanego i zasady konstrukcji Kupujący może doprojektować (lub zlikwidować) dodatkowe elementy zewnętrzne Obiektu Budowlanego takie jak: garaż, tarasy naziemne, ogrody zimowe, a także elementy wewnętrzne, takie jak antresole.
- Zmienienie funkcji pomieszczeń, w tym także zaadaptowanie garażu lub innego pomieszczenia na cele mieszkalne, pod warunkiem dostosowania ich do stałego pobytu osób.
- Powiększenie lub zmniejszenie istniejącego w projekcie typowym garażu.
- Przeprojektowanie instalacji grzewczej, dostosowanie do innego źródła energii.
- Przeprojektowanie instalacji sanitarnej i elektrycznej.
W przypadku konieczności wprowadzenia zmian, które wykraczają zakres zmian nieistotnych, jesteś zobowiązany poinformować nas o tym, przedstawiając zakres planowanych zmian (najlepiej e-mail: zmiany@projektstodola.pl, tytułem: Zgoda na zmiany w projekcie). Zapoznamy się z zakresem wprowadzanych zmian, a gdy wyrazimy zgodę na wprowadzenie zmiany w projekcie typowym zgoda zostanie przesłana w formacie PDF.
Zgody wydawane są bezpłatnie.
Jeśli Twoje zmiany wymagają dużej ingerencji w budynek lub są zbyt rozległe, by wprowadził je architekt adaptujący, możesz skonsultować z nami czy są one możliwe do wprowadzenia. Jako autorzy projektu znamy go najlepiej, jesteśmy w stanie wprowadzić praktycznie każdą zmianę w projekcie, zwracamy również uwagę, by zmiana była sensowna z punktu widzenia założeń projektu i jego estetyki. Pochodzimy do tematu kompleksowo, a zmiany wprowadzamy w całej dokumentacji wielobranżowej- na wszystkich rysunkach i w opisie.
Na etapie koncepcji rozwiejmy Twoje wątpliwości, doradzimy, pomożemy dokonać wyboru. W efekcie dostaniesz projekt typowy dopasowany do własnych potrzeb, wymagający jedynie adaptacji do warunków lokalnych przez architekta adaptującego.
Ile kosztuje wprowadzenie zmian do projektu typowego? Zapoznaj się z naszymi pakietami opisanymi w punkcie 4.
W celu potwierdzenia zakresu zmian, pakietu oraz terminu realizacji najlepiej jest przedstawić je drogą mailową, pisząc jakiego projektu dotyczą i (najlepiej w punktach) jakie zmiany w stosunku do projektu bazowego przedstawionego na stronie chcą Państwo wprowadzić. Możesz też zaznaczyć je na szkicu lub rzucie projektu ze sklepu. Jeśli nie jesteś pewien co do wyboru rozwiązania, opisz problem, a my zaproponujemy rozwiązanie. (Najlepiej e-mail: zmiany@projektstodola.pl tytułem Wprowadzenie zmian do projektu).
Niektóre projekty ze zmianami, które wprowadziliśmy możesz zobaczyć tutaj: Stodoły po zmianach. Każdy z tych projektów możesz także zakupić, w tym celu skontaktuj się z nami telefonicznie lub mailowo.
Najszybszą drogą jest wprowadzenie zmian na etapie adaptacji projektu przez architekta adaptującego. Zawsze możemy doradzić Ci jak najlepiej wprowadzić funkcjonalność do projektu na jakiej Ci zależy.
Projekt Stodoła może przygotować projekt typowy ze zmianami wg Twoich wytycznych. Zmiany wprowadzamy we wszystkich elementach projektu (rysunkach, opisach, zestawieniach). Znamy nasze projekty najlepiej, dlatego na etapie wprowadzania zmian, doradzamy jak najlepiej pod względem funkcjonalnym i ekonomicznym wprowadzić daną zmianę.
Koszt wprowadzenia zmian w projekcie podzieliliśmy na 3 pakiety w zależności jak bardzo zmiany ingerują w projekt typowy, a co za tym idzie jak dużo pracy i zaangażowania wymagają. Termin realizacji uzależniony jest od naszej bieżącej pracy i zazwyczaj wynosi ok. 7-10 tygodni.
Przykładowe koszty wprowadzenia zmian to:
- PAKIET MAŁYCH ZMIAN to koszt 2 400 zł
- PAKIET ŚREDNICH ZMIAN to koszt 5 800 zł
- PAKIET DUŻYCH ZMIAN to koszt 8 000 zł
Wszystkie zmiany niosą ze sobą ingerencję także w inne branże, czyli konstrukcję, instalacje sanitarne i elektryczne. Projekt jest aktualizowany w zakresie każdej z tej branż, wprowadzamy je na każdym rysunku każdej branży- architekturze, konstrukcji, sanitarnej i elektrycznej. Co za tym idzie, otrzymują Państwo produkt dostosowany do swoich potrzeb zgodnie z naszym standardem projektu typowego, (tutaj przykład: Co zawiera projekt) do dalszej adaptacji przez lokalnego architekta. (Adaptacja polega na dostosowaniu typowego projektu do konkretnej działki m.in. – jej położenia, ukształtowania czy warunków gruntowych- o adaptacji projektu możesz więcej przeczytać więcej tutaj).
Wprowadzanie zmian odbywa się etapowo. Na etapie wprowadzania zmian doradzamy również jak najlepiej wprowadzić zmianę, by układ był funkcjonalny, a budowa optymalna. Najpierw przygotowujemy koncepcję zmian na rysunkach architektonicznych (rzuty) i przesyłamy do akceptacji, wprowadzamy ew. uwagi, następnie po akceptacji nanosimy zmiany na wszystkich rysunkach wszystkich branż i części opisowej.
W celu potwierdzenia zakresu zmian, pakietu oraz terminu realizacji najlepiej jest przedstawić je drogą mailową, pisząc jakiego projektu dotyczą i (najlepiej w punktach) jakie zmiany, w stosunku do projektu bazowego przedstawionego na stronie, chcą Państwo wprowadzić. Możesz też zaznaczyć je na szkicu lub rzucie projektu ze sklepu. Jeśli nie jesteś pewien co do wyboru rozwiązania, opisz problem, a my zaproponujemy rozwiązanie. (Najlepiej e-mail: zmiany@projektstodola.pl tytułem Wprowadzenie zmian do projektu).
W celu potwierdzenia zakresu zmian, pakietu oraz terminu realizacji najlepiej jest przedstawić je drogą mailową, pisząc jakiego projektu dotyczą i (najlepiej w punktach) jakie zmiany w stosunku do projektu bazowego przedstawionego na stronie chcą Państwo wprowadzić. Możesz też zaznaczyć je na szkicu lub rzucie projektu ze sklepu. Jeśli nie jesteś pewien co do wyboru rozwiązania, opisz problem, a my zaproponujemy rozwiązanie. (Najlepiej e-mail: zmiany@projektstodola.pl tytułem Wprowadzenie zmian do projektu).
Po zaakceptowaniu pakietu i terminu wykonania możesz złożyć zamówienie w Sklepie poprzez dodanie do koszyka wybranego Projektu Typowego a następnie Produktu pod nazwą „Indywidualne zmiany w Projekcie Typowym”. Produkt “Indywidualne zmiany w projekcie typowym” można zamówić tylko razem z Projektem Typowym. Dlatego należy dodać do koszyka te dwie pozycje.
W “Indywidualnych zmianach w projekcie typowym” należy wypełnić pola- opis, data wykonania i cenę, zgodnie z ustaleniami we wcześniejszej korespondencji mailowej. Czas realizacji jest liczony od zamówienia wraz z opłatą faktury.
Procedura zakupu jest opisana także w regulaminie.
Jednocześnie przypominamy, że najprostszą drogą jest wprowadzenie zmian na etapie adaptacji przez architekta adaptującego.
Praktycznie w każdym naszym projekcie garaż jest dostawiony do głównej bryły budynku i można go bezproblemowo usunąć lub przesunąć w inne miejsce. Można też zmienić jego wymiary. Wydłużenie garażu jest stosunkowo łatwe, jego poszerzenie wymaga sprawdzenia i ewentualnego wzmocnienia konstrukcji dachu. Taką zmianę można bezproblemowo wprowadzić na etapie adaptacji.















































2
3
2