Stodoła L  lustrzane odbicie po zminach 1 to projekt z dużymi zmianami rzutu poddasza, nie wpływającymi znacznie na wygląd bryły.

Zobacz nasz oryginalny projekt Stodoły L 

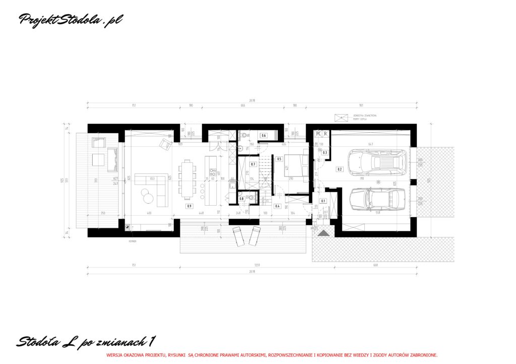
Projekt Stodoła L

Główne zmiany w projekcie w stosunku do oryginalnego projektu to:

  •  powiększenie garażu poprzez zmianę ułożenia i wejścia do wiatrołapu
  •  powiększenie piętra – zamknięcie pustki w salonie i utworzenie w tym miejscu dwóch pokoi z oddzielnymi garderobami
  •  powiększenie sypialni kosztem jednego pokoju, aby otrzymać sypialni master z łazienka oraz garderobą oraz powiększenie okna
  •  zmiana drzwi garażowych na dwie pary oddzielnych węższych

Główne parametry budynku:

Powierzchnia zabudowy budynku:  228,29 m2
Powierzchnia netto (użytkowa) budynku: 230,82 m2
Powierzchnia netto (użytkowa) garażu:  53,33 m2
Kubatura budynku:  903,08m3
Wysokość budynku projektowanego: 8,38 m
Szerokość budynku: 9,25 m
Długość budynku: 26,78 m

Przekroje:

Elewacje: 

 

MINIMALNE WYMIARY DZIAŁKI:

Wjazd do Stodoły L lustrzane odbicie po zmianach 1 usytuowano od północy. Minimalne wymiary działki 34,78 x 15,25 m*


Każdy z projektów po zmianach możesz zakupić, także w wersji lustrzanej. Jeśli jesteś zainteresowany/a tym projektem, chciałbyś/łabyś poznać więcej szczegółów, prosimy o kontakt na info@projektstodola.pl lub pod nr telefonu +48 730 195 275 .


  Co zrobić więc, gdy ,,projekt jest idealny, ale…”?

Podstawowe zmiany do projektu typowego można wprowadzić na etapie adaptacji projektu do działki przez architekta adaptującego. Jakiego typu są to zmiany opisaliśmy w sekcji Częste pytania. Jeśli Twoje zmiany wykraczają poza ten zakres napisz do nas, możemy wydać na nie bezpłatną zgodę.

Jeśli Twoje zmiany wymagają dużej ingerencji w budynek lub są zbyt rozległe, by wprowadził je architekt adaptujący, możesz skonsultować z nami czy są one możliwe do wprowadzenia. Jako autorzy projektu jesteśmy w stanie wprowadzić praktycznie każdą zmianę w projekcie, zwracamy również uwagę, by zmiana była sensowna z punktu widzenia założeń projektu i jego estetyki. Pochodzimy do tematu kompleksowo, a zmiany wprowadzamy w całej dokumentacji wielobranżowej- na wszystkich rysunkach i w opisie.

Dodaj komentarz

Twój adres e-mail nie zostanie opublikowany. Wymagane pola są oznaczone *

This site uses Akismet to reduce spam. Learn how your comment data is processed.

Mogą Cię również zainteresować:

Pozostańmy w kontakcie

Jeśli nie chcesz przegapić żadnego wpisu. Zapisz się do naszego newslettera, przesyłamy tylko konkrety i aktualne promocje.

Przy zapisie otrzymasz prezent darmowego e-book’a

Klucz do domu No.1 czyli 7 elementów, na które warto zwrócić uwagę projektując dom lub wybierając projekt typowy

Co słychać w Stodole