Projekt Stodola M po zmianach to zmodyfikowana wersja kultowego dwukondygnacyjnego projektu Stodoły M.
Sprawdź oryginalny projekt:
Projekt Stodoła M
Główne zmiany w projekcie w stosunku do oryginalnego projektu to:
- Usunięcie kominka
- Wyrównanie północnego okna na parterze równo z licem ściany
- Przeprojektowanie garderoby w sypialni na parterze
- Rezygnacja z pustki nad parterem
- Dodanie trzeciego pokoju na poddaszu oraz dodanie do każdego z pokoi garderoby
- Wydłużenie budynku powodujące zmianę schodów na kształt litery L
- Podwyższenie parteru
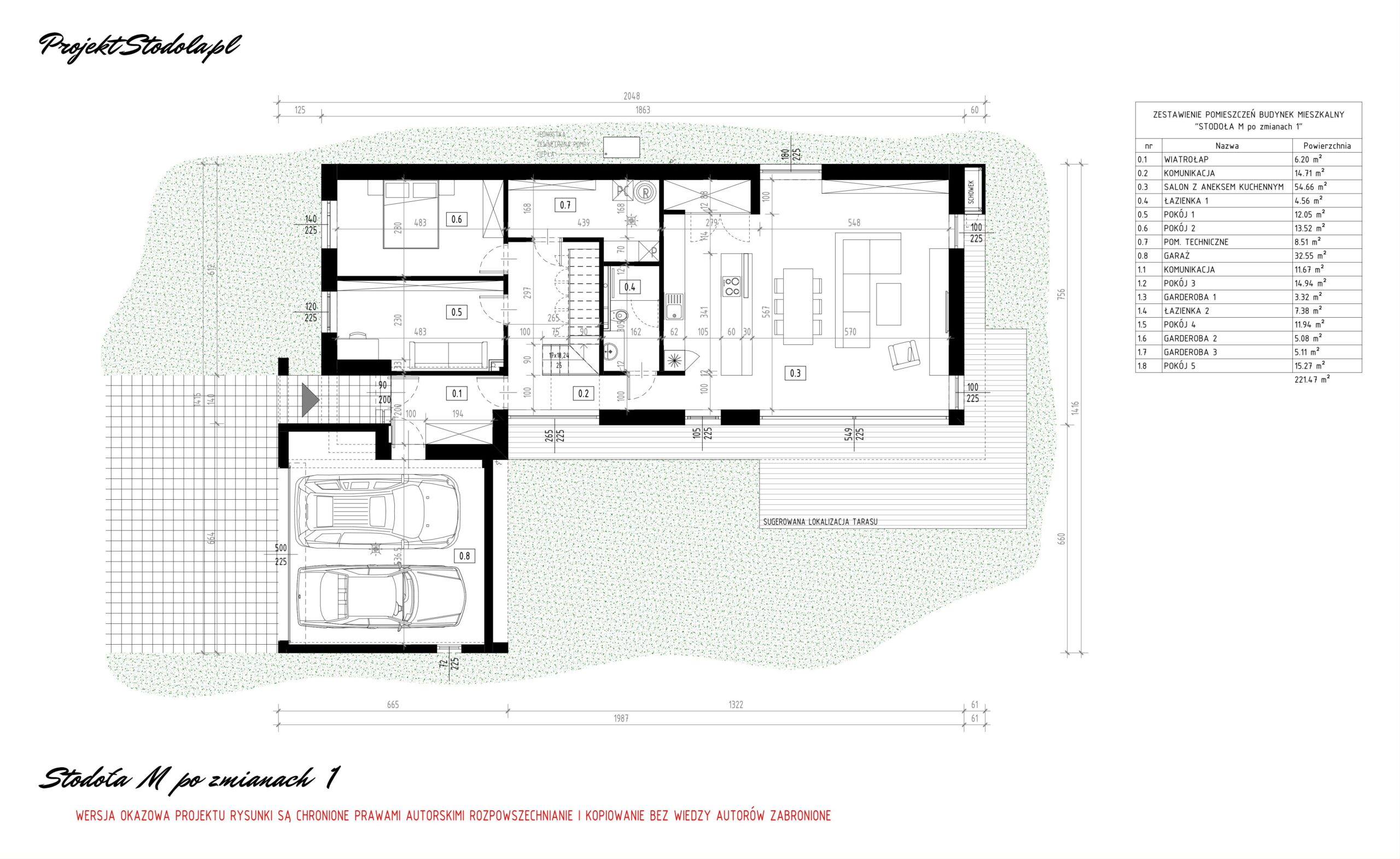
- Rzut parteru
- Rzut piętra
Główne parametry budynku:
| Powierzchnia zabudowy budynku: | 182,52 m2 |
| Powierzchnia netto (użytkowa) budynku: | 188,92 m2 |
| Powierzchnia netto (użytkowa) garażu: | 32,55 m2 |
| Kubatura budynku: | 1064 m3 |
| Wysokość budynku projektowanego: | 7,80 m |
| Szerokość budynku (z garażem): | 14,16 m |
| Długość budynku (bez okapu): | 19,88 m |
Przekroje:
- Przekrój przez schody
- Przekrój przez kalenice
Elewacje:
- Elewacja frontowa
- Elewacja boczna 1
- Elewacja boczna 2
- Elewacja ogrodowa
MINIMALNE WYMIARY DZIAŁKI:
Nowoczesna Stodoła M po zmianach 2 pasuje do działek z wjazdem od północy lub zachodu. Minimalne wymiary działki 28,48x 20,16 m*
*powyższe warianty obrazują minimalne wymiary działki, należy jednak uwzględnić również warunki lokalne- warunki zabudowy lub ograniczenia wynikające z MPZP i lokalnego sąsiedztwa
Każdy z projektów po zmianach możesz zakupić, także w wersji lustrzanej. Jeśli jesteś zainteresowany/a tym projektem, chciałbyś/łabyś poznać więcej szczegółów, prosimy o kontakt na info@projektstodola.pl lub pod nr telefonu +48 730 195 275 .
Co zrobić więc, gdy ,,projekt jest idealny, ale…”?
Podstawowe zmiany do projektu typowego można wprowadzić na etapie adaptacji projektu do działki przez architekta adaptującego. Jakiego typu są to zmiany opisaliśmy w sekcji Częste pytania. Jeśli Twoje zmiany wykraczają poza ten zakres napisz do nas, możemy wydać na nie bezpłatną zgodę.
Jeśli Twoje zmiany wymagają dużej ingerencji w budynek lub są zbyt rozległe, by wprowadził je architekt adaptujący, możesz skonsultować z nami czy są one możliwe do wprowadzenia. Jako autorzy projektu jesteśmy w stanie wprowadzić praktycznie każdą zmianę w projekcie, zwracamy również uwagę, by zmiana była sensowna z punktu widzenia założeń projektu i jego estetyki. Pochodzimy do tematu kompleksowo, a zmiany wprowadzamy w całej dokumentacji wielobranżowej- na wszystkich rysunkach i w opisie.










Dodaj komentarz