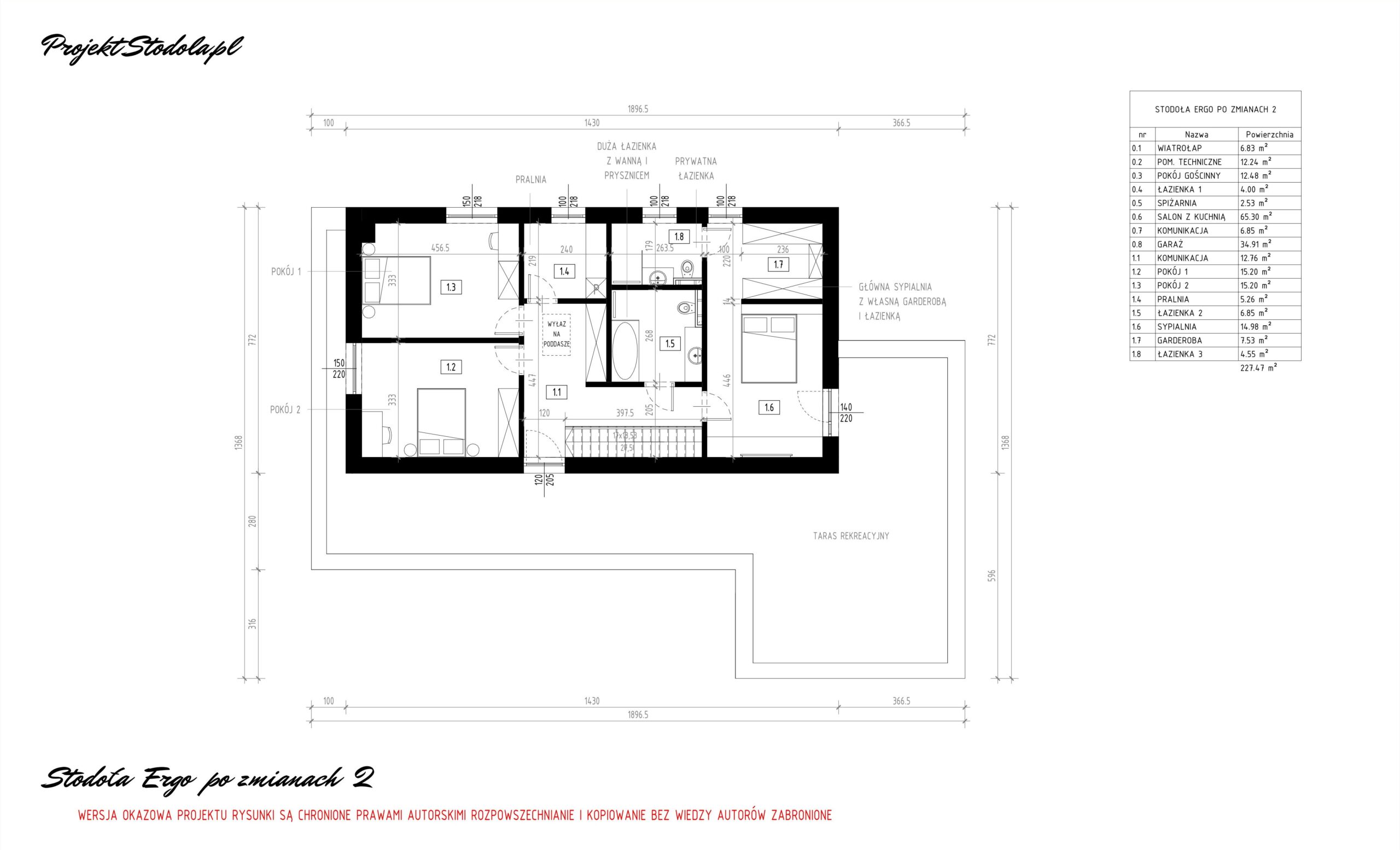
Stodoła Ergo po zmianach 2 to dom dwukondygnacyjny z garażem. Główne zmiany w projekcie w stosunku do oryginalnego projektu to:

  • zmiana wiaty na garaż
  • dodanie pomieszczenia gospodarczego za garażem z wejściem do domu
  • poszerzenie bryły budynku mieszkalnego o 1m
  • zaprojektowanie kominka
  • zamiana dwóch ścian od strony południowej i zachodniej na ściany przeszklone ( drzwi przesuwne )
  • wydzielenie prywatnej łazienki na piętrze

 

 -> Zobacz kronikę z budowy Stodoły Ergo po zmianach. 

https://projektstodola.pl/2024/07/18/stodola-ergo-po-zmianach-w-trakcie-budowy/

 

Główne parametry budynku:

Powierzchnia zabudowy budynku: 181,02 m2
Powierzchnia netto (użytkowa) budynku: 227,47 m2
Kubatura budynku: 971,19m3
Ilość kondygnacji 2
Wysokość budynku projektowanego: 8,66 m
Szerokość budynku: 13,68 m
Długość budynku: 18,97m

 

Rzuty:

Przekroje:

Elewacje:

 

MINIMALNE WYMIARY DZIAŁKI:

Wjazd do Stodoły Ergo po zmianach 2 najlepiej usytuować od północy, zachodu lub wschodu. W przypadku projektu Stodoła T2 po zmianach 1 wjazd usytuowano od północy. Minimalne wymiary działki 26,97 x 19.67 m*


Każdy z projektów po zmianach możesz zakupić, także w wersji lustrzanej. Jeśli jesteś zainteresowany/a tym projektem, chciałbyś/łabyś poznać więcej szczegółów, prosimy o kontakt na info@projektstodola.pl lub pod nr telefonu +48 730 195 275 .

Co zrobić więc, gdy ,,projekt jest idealny, ale…”?

Podstawowe zmiany do projektu typowego można wprowadzić na etapie adaptacji projektu do działki przez architekta adaptującego. Jakiego typu są to zmiany opisaliśmy w sekcji Częste pytania. Jeśli Twoje zmiany wykraczają poza ten zakres napisz do nas, możemy wydać na nie bezpłatną zgodę.

Jeśli Twoje zmiany wymagają dużej ingerencji w budynek lub są zbyt rozległe, by wprowadził je architekt adaptujący, możesz skonsultować z nami czy są one możliwe do wprowadzenia. Jako autorzy projektu jesteśmy w stanie wprowadzić praktycznie każdą zmianę w projekcie, zwracamy również uwagę, by zmiana była sensowna z punktu widzenia założeń projektu i jego estetyki. Pochodzimy do tematu kompleksowo, a zmiany wprowadzamy w całej dokumentacji wielobranżowej- na wszystkich rysunkach i w opisie.

Dodaj komentarz

Twój adres e-mail nie zostanie opublikowany. Wymagane pola są oznaczone *

This site uses Akismet to reduce spam. Learn how your comment data is processed.

Mogą Cię również zainteresować:

Pozostańmy w kontakcie

Jeśli nie chcesz przegapić żadnego wpisu. Zapisz się do naszego newslettera, przesyłamy tylko konkrety i aktualne promocje.

Przy zapisie otrzymasz prezent darmowego e-book’a

Klucz do domu No.1 czyli 7 elementów, na które warto zwrócić uwagę projektując dom lub wybierając projekt typowy

Co słychać w Stodole