Obecnie coraz bardziej popularne są projekty domów parterowych. Brak schodów i wyjście na ogród z każdego pomieszczenia jest bardzo kuszącą perspektywą. Dla nas osobiście, wymarzony dom to właśnie dom parterowy.
Niestety w momencie projektowania nie dysponowaliśmy odpowiednio dużą działką, co jest wymogiem przy tego typu projektach. Projekty domów parterowych, gdzie funkcja jest na jednej kondygnacji, są trudniejsze w wydzieleniu osobnych, dobrze odizolowanych stref funkcjonalnych: strefy dziennej ogólnodostępnej i nocnej -prywatnej. W domu piętrowym dużo łatwiej o ten podział. Zazwyczaj na parterze znajduje się strefa ogólnodostępna: pokój dzienny, kuchnia, jadalnia oraz dodatkowo domowe biuro lub pokój gościa i łazienka dla tej strefy. Na piętrze znajduje się część prywatna – sypialniana czyli pokoje domowników.
Koszty budowy – porównanie
Domy parterowe są bardziej rozłożyste, przez co mają większą powierzchnię prac fundamentowych oraz większą powierzchnię dachu. Możemy jednak zaoszczędzić na konstrukcji dachu i stropu np. wykorzystując prefabrykowane więzary będące dachem i stropem jednocześnie. Projekty domów parterowych, które projektujemy, zazwyczaj zakładają możliwość częściowego wykorzystania poddasza w przyszłości na przestrzeń dodatkową, tzw. możliwość adaptacji poddasza. Budowę takiego domu można w ten sposób łatwo rozbić na etapy. Poniżej przedstawiamy kilka naszych inspiracji na projekty domów parterowych, sprawdźcie również realizacje oraz Stodoły po zmianach, gdzie dostosowywaliśmy poszczególne projekty do indywidualnych wymagań. Możecie również sprawdzić koszt budowy domu parterowego z tego roku Stodoła S+ Premium koszt budowy 2022
Parterowe Stodoły – Projekty domów parterowych
- Perspektywa ogrodowa wersja podstawowa
- Perspektywa ogrodowa
- Perspektywa ogrodowa
Jeśli połączymy zalety domu typu nowoczesna stodoła z domem parterowym, powstanie duet idealny 🙂 Zalety domu stodoły to prosta w budowie bryła, intuicyjny rozkład funkcji, dwuspadowy dach. Przekłada się to na koszt budowy i energooszczędność. Ale to także duże przeszklenia pozwalające cieszyć się ogrodem każdego dnia. Każdy z naszych projektów posiada ogrzewanie podłogowe, instalacje pompy ciepła, jest wyposażony w rekuperację, a prosty dach sprzyja zyskom z fotowoltaiki. O każdym z tych projektów znajdziesz więcej informacji, wizualizacji wnętrz, kosztorysów na dedykowanych stronach, linki znajdują się w tytule.
Legendarna “parterówka” czyli Stodoła S+ Premium
- Perspektywa frontowa wersja podstawowa
- Projekt Stodoła S+ Premium elewacja ogrodowa
- Aksonometria wersja podstawowa
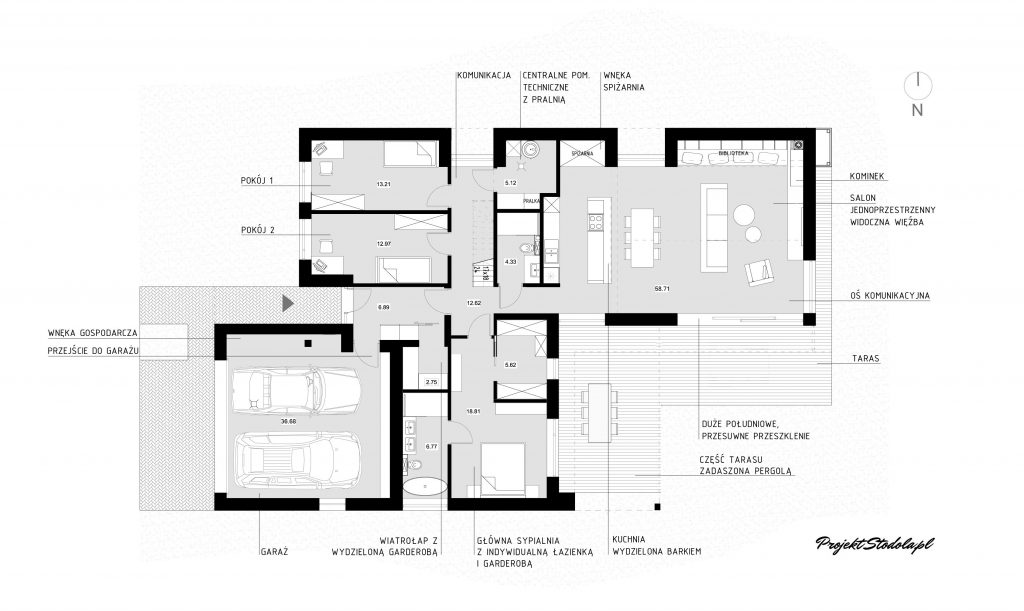
Projekty domów parterowych z rodziny S czyli Stodoła S, S+ oraz S+ Premium (od najmniejszej do największej) to nasze najpopularniejsze projekty domów parterowych. Wszystkie te projekty oparte są na tym samym schemacie, by wszystkie pomieszczenia dzienne były zlokalizowane od strony ogrodowej, z możliwym wyjściem na taras. To jest właśnie esencja mieszkania w domu parterowym, kontakt z ogrodem czyż nie?
Od strony wjazdowej znajdują się pomieszczenia dodatkowe łazienki, pomieszczenie techniczne połączone z pralnią. Do głównej bryły od strony frontowej dodany jest garaż, który połączony jest z wiatrołapem przejściem przez pomieszczenie techniczne. W każdym z naszych projektów możemy bezproblemowo zrezygnować z garażu lub zastąpić go wiatą.
Podział stref- prywatna i ogólnodostępna- rozwiązany jest na zasadzie lewo/ prawo z jednej strony salon z jadalnią i kuchnią, a z drugiej pokoje i łazienki prywatne.
- Widok wysoki salon
- Widok na kuchnię
Warto również wspomnieć, że budynek ma od strony ogrodowej wysunięty okap, który jest elementem charakterystycznym naszych projektów, ale również pełni funkcję regulacji ochrony pomieszczeń przed przegrzewaniem, zachowując możliwość pasywnego ogrzewania latem.
Maksymalna prostota czyli Stodoła Optimum
- Perspektywa frontowa
- Perspektywa frontowa
- Perspektywa boczna
Stodoła Optimum to dom parterowy maksymalnie zoptymalizowany, by był możliwie tani w budowie, ale też pod kątem energooszczędności. Na stosunkowo niewielkiej powierzchni, może zamieszkać 4 osobowa rodzina, a nawet większa, gdyż mamy możliwość dodatkowo adaptacji poddasza. Dlatego w projekcie pokazana jest lokalizacja schodów. Rezygnując całkowicie z adaptacji poddasza, a tym samym ze schodów, zyskujemy jeszcze większą powierzchnię salonu lub pokoi. Układ funkcjonalny budynku bazuje na układzie projektów S z widocznym rozdziałem strefy ogólnodostępnej i prywatnej. Projektując zwracaliśmy uwagę na to, by późniejsze koszty eksploatacji były jak najniższe, a na prostym dachu możemy zainstalować fotowoltaikę w łatwy i estetyczny sposób.
Stodoła Smart czyli jak podejść do budowy mądrze
- Perpektywa ogrodowa
- Perspektywa frontowa
- Aksonometria ogród
Projekt Stodola Smart to budynek przemyślany w każdym detalu, by był optymalny w budowie oraz by umożliwić etapowanie budowy. Na początku możemy wybudować tylko budynek mieszkalny, a w drugim etapie wybudować garaż lub wiatę. Smart ma bardzo dużo możliwości zmiany. Prosty plan, jednoprzestrzenny, dwukondygnacyjny salon z dużym przeszkleniem, możliwość adaptacji poddasza czy zadaszony taras za garażem.
- Parter 160,19 m²
- Parter 118,31m²
Stodoła M Parterowa czyli modelowy projekt w wersji parterowej
- Elewacja frontowa
- Elewacja aksonometria lustro
- Elewacja boczna
Projekt Stodoła M Parterowa to parterowa wersja naszej modelowej Stodoły M. Wszystkie główne założenia oraz układ funkcjonalny bazuje na tym projekcie. Główna oś komunikacyjna w budynku prowadzi od wejścia wzdłuż południowej przeszklonej ściany, aż do salonu i zakończona jest oknem. W pierwszej części domu znajduje się strefa prywatna- 2 pokoje, łazienka i część techniczna. Za garażem znajduje się sypialnia główna z łazienką i garderobą. Sypialnia główna oraz salon otwiera się na część ogrodową działki. Salon jest wysoki, otwarty aż do samej konstrukcji dachu z widoczną antresolą nad kuchnią.
Dom idealny czyli Stodoła z Atrium
- Perspektywa frontowa
- Aksonometria od strony frontu
Projekt parterowy Stodoła z Atrium posiada wszystkie zalety wymarzonego domu. Znajdziesz tutaj dwustanowiskowy garaż, gabinet, obszerną kuchnię ze spiżarnią, jadalnię i salon z dużymi przeszkleniami praktycznie z każdej strony. W części prywatnej 3 duże pokoje oraz master bedroom. Wszystko to usytuowane dookoła zielonego atrium- centrum założenia. Atrium pełni funkcję doświetlającą oraz zapewniającą stały kontakt z zielenią wewnątrz budynku. Budynek jest na planie idealnego kwadratu, dlatego dach i rzut jest w pełni powtarzalny. Zresztą sami zobaczcie na rzut 🙂
Gdy jedna stodoła to za mało. Stodoła Podwójna
- Aksonometria front
- Elewacja frontowa lustro
- Elewacja boczna
Podwójna stodoła to dwie stodoły połączone łącznikiem komunikacyjnym. Każda część- stodoła pełni odrębną funkcję. W jednej znajduje się część prywatna- sypialniana, w drugiej ogólnodostępna- dzienna zakończona dużym przeszkleniem. Oba budynki mają ten sam moduł, identyczny dach i rozstaw konstrukcji, co bardzo upraszcza budowę. Pomiędzy dwoma bryłami powstaje małe atrium z zielenią, i tarasem. Taras pomiędzy budynkami zapewnia prywatność, jak również osłonę przed deszczem ponieważ możemy go zadaszyć.
Nowoczesna Parterowa Stodoła L
- Elewacja frontowa
- Elewacja boczna
- Aksonometria
Rodzina Projektów L bazuje na prostokątnej bryle, typowym kształcie archetypu Stodoły, z dużym, dwukondygnacyjnym salonem zakończonym przeszkloną ścianą. Wersja parterowa tego projektu, w części frontowej, posiada 3 pokoje (w tym master bedroom), a zakończona jest przestronną częścią dzienną. Budynek ma bardzo charakterystyczny, nadwieszony wspornikowo dach.
Który z tych projektów, najbardziej odpowiada Twoim potrzebom, a może jesteś zwolennikiem domów piętrowych ?
Zachęcamy do komentowania lub kontaktu z nami .
Podoba Ci się ten wpis? Jeśli jesteś na etapie poszukiwania projektu lub działki. Zapisz sie do naszego newslettera, otrzymasz bezpłatny e-book Klucz do domu czyli 7 elementów na które warto zwrócić uwagę projektując dom lub wybierając projekt gotowy. Bazuje on na naszym ponad 12 letnim doświadczeniu w projektowaniu oraz budowie domów.












































Dodaj komentarz